Vânzări
Închirieri
Vânzare Apartament 3 camere, Astra

Apartament 3 camere Saturn

109.000 eur
ID 4113877
Apartamente | 64 m² | 3 camere
Brasov, Brasov / Astra
Zona Astra
Număr camere 3
Suprafața utilă 64 m²
Compartimentare Semidecomandat
Confort 1
Etaj 2
An finalizare construcție 1970
Tip imobil Bloc de apartamente
Stare proprietate De renovat
Număr niveluri imobil 4
Număr Băi 1
Comision cumpărător 2%

Se oferă la vânzare apartament 3 camere, etaj 2/4, Astra – Brașov, cu 2 balcoane și compartimentare practică
Apartament luminos și bine compartimentat, situat la etajul 2 din 4, într-un bloc reabilitat termic și fonic, ideal pentru o familie sau pentru investiție.
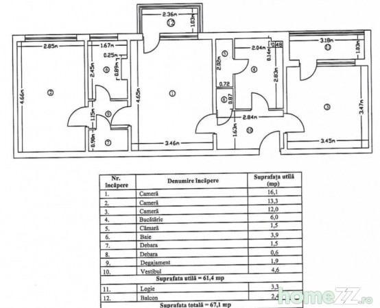
Suprafețe (conform schiței):
3 camere: 16,1 mp + 13,3 mp + 12,0 mp
Bucătărie: 6,0 mp
Baie: 3,9 mp
Spații utile: vestibul 4,6 mp, hol 1,9 mp, cămara 1,5 mp, 2 debarale (1,5 mp + 0,6 mp)
2 balcoane: logie 3,3 mp + balcon 2,4 mp
Suprafață utilă: 61,4 mp (+ balcoane, total 67,1 mp conform releveului)
Dotări și avantaje:
Centrală proprie
Geamuri termopan
Bloc reabilitat (costuri mai mici la încălzire)
Liber la vânzare (disponibil imediat)
Localizare excelentă – Astra, Brașov: În apropiere ai supermarketuri și magazine, piață, parcuri și zone verzi, transport în comun, școli/grădinițe, plus farmacii și centre medicale. Zonă echilibrată: liniște, dar cu tot ce ai nevoie la câteva minute

Solicită vizionarea proprietății

Apartament 3 camere Saturn

Vizionare
Alege o dată disponibilă:
Miercuri
04 Martie
Joi
05 Martie
Vineri
06 Martie
Sâmbătă
07 Martie
Anulează
success
Solicitarea ta a fost trimisă cu succes!
Vei fi contactat de către proprietar în cel mai scurt timp posibil.
  • Staţii de autobuz Distanţă
  • Staţie autobuz 136 metri
  • Staţie autobuz 219 metri
  • Staţie autobuz 382 metri
  • Staţie autobuz 392 metri
  • Staţii de tren Distanţă
  • Gara Brașov 2.2 kilometri
  • Bartolomeu 4.4 kilometri
Contactează utilizatorul
Apartament 3 camere Saturn
Legend imobiliare Consultant imobiliar LEGEND IMPEX
07xx - AFIŞEAZĂ
ID 4113877
Vrei sa vinzi simplu si rapid?
Termenii și condițiile de pe site au fost actualizate. Detaliile complete sunt disponibile aici