Vânzări
Închirieri
Vânzare Casă - Vilă 5+ camere, Aparatorii Patriei

Vila 7camere/(348util,500teren,119ampr.)mp/5min.metrouAp....

478.999 eur
ID 4148786
Case - Vile | 348 m² | 5+ camere
Bucuresti, Bucuresti-Ilfov / Aparatorii Patriei
Număr camere 100
Suprafața utilă 348 m²
Suprafață teren 500 m²
An finalizare construcție 2002
Stare proprietate Bună
Număr niveluri imobil 1
Număr Băi 3
Clasă energetică A
Posibilitate parcare Da
Nr. locuri parcare 4
Utilități Curent,    Apă,    Canalizare,    Gaz,    Sistem irigaţie,    Încălzire,    Climă
 Subsol

Proprietar

Vand vila(construita in regie proprie) individuala dispusa pe parter, etaj si pod mansardat, situata la 5-7min de mers pe jos pana la statia de metrou Ap. Patriei, avand dubla deschidere, cu posibilitatea parcarii a 5 masini(2 in curte si 3 pe zona de proprietate).

Se vinde fie mobilata si utilata, cel putin cum se vede in fotografii, fie goala, dupa cum se doreste.

Arata exact ca in fotografii; este certificata energetic casa A.

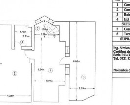
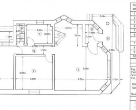
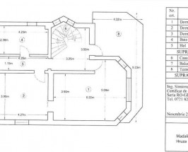
Va rog sa regasiti in informatiile atasate, fotografiile si releveul corespunzator pe fiecare nivel in parte.

Mai multe detalii, pentru potentialii clienti interesati de achizitie in mod real, la tel: 0749122233

Toate actele sunt pregatite pentru vanzare.

Dispune atat de loc de joaca(amenajat deasupra piscinei exterioare) pentru copii, cat si de piscina.

Beneficiaza atat de toate utilitatile publice(apa, energie electrica, gaz, internet-cablu TV) cat si de put propriu cu hidrofor pentru alimentarea cu apa a piscinei si intretinerea spatiului verde.

Solicită vizionarea proprietății

Vila 7camere/(348util,500teren,119ampr.)mp/5min.metrouAp....

Vizionare
Alege o dată disponibilă:
Miercuri
25 Martie
Joi
26 Martie
Vineri
27 Martie
Sâmbătă
28 Martie
Anulează
success
Solicitarea ta a fost trimisă cu succes!
Vei fi contactat de către proprietar în cel mai scurt timp posibil.
Contactează utilizatorul
Vila 7camere/(348util,500teren,119ampr.)mp/5min.metrouAp....
Viorel Nica Consultant imobiliar Marvis Rezidential
07xx - AFIŞEAZĂ
ID 4148786
Vrei sa vinzi simplu si rapid?
Termenii și condițiile de pe site au fost actualizate. Detaliile complete sunt disponibile aici