Giulia Pivoda

Consultant imobiliar

Vânzare

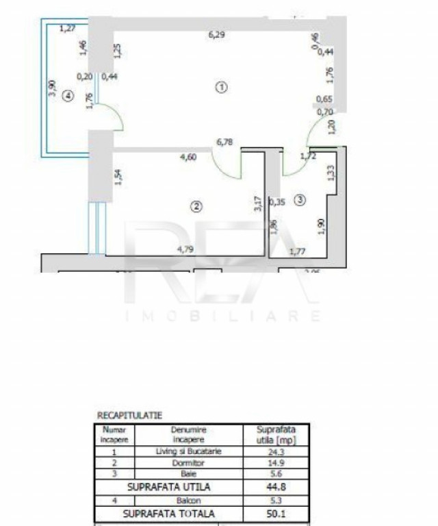
2 camere | 44 m²

2 Camere Cortina North Pipera

Bucuresti-Ilfov / Bucuresti
133.000 €

Rată estimată

2.914 Lei/lună

Avans (15%)

99.152 lei

Perioada împrumutului

30 ani

Specificații

Număr camere 2

Suprafața utilă 44 m²

Compartimentare Semidecomandat

Confort 1

An finalizare construcție 2025

Niveluri imobil 10

Număr Băi 1

Nu include TVA Da

Etaj 5

Mobilat și Utilat Nemobilat

Tip imobil Bloc apartamente

Stare proprietate Bună

Tip tranzacție Vânzare

Tip vânzător Companie

R.E.A imobiliare 

Apartament 2 camere – Cortina North Pipera | 45 m² utili | Etaj 5/10 | Stil de viață premium
Descoperă un apartament modern de 2 camere, semidecomandat, situat în ansamblul rezidențial Cortina North – Pipera, un complex ce redefinește conceptul de locuire urbană prin confort, eleganță și facilități de top.
 Suprafață utilă: 45 m²
 Suprafață totală (cu balcon): 50 m²
 Etaj: 5 din 10
 Încălzire: centrală termică proprie Ariston + calorifere
Aer condiționat: LG Multisplit
 Facilități premium ale ansamblului:
Centru fitness și wellness cu bazin de înot
Pistă de alergare de 1,5 km
Peste 10.000 mp de spații verzi
Galerii comerciale, cafenele și restaurante
Parcări private și acces controlat pentru siguranță sporită
Ansamblul promovează un stil de viață activ și sănătos, într-un cadru elegant și modern.
 Finisaje și dotări de înaltă calitate:
Fațadă ventilată SwissPearl
Pardoseală flotantă pe balcon
Tavane Barissol cu iluminare LED
Tâmplărie din aluminiu Schüco
Ascensoare Otis
Ușă de intrare securizată Pinum Piacentini
Obiecte sanitare Daniel Rubinetterie
Uși interioare Filomuro
Parchet Balterio
Plăci ceramice Keratile
 Locație ideală:
Parcul Herăstrău și Promenada Mall la doar 3–5 minute cu mașina
Stația de metrou Aurel Vlaicu și stația de autobuz – în imediata apropiere
Acces rapid către Pipera Plaza, Lidl, Kaufland, școli, grădinițe și restaurante
 Preț:
Persoană juridică: 133.000 € (fără TVA)
Persoană fizică: 133.000 € + TVA 21% = 160.930 €
Un apartament perfect pentru rezidență personală sau investiție premium, într-unul dintre cele mai căutate ansambluri din nordul capitalei.

Opțiuni Suplimentare: Se accepta toate modalitatile de plata. Informatiile tehnice au caracter orientativ, acestea fiind preluate de la proprietari. În concluzie, acest apartament reprezintă o oportunitate excelentă pentru cei care caută confort, modernitate și accesibilitate într-o zonă bine cotată din București. Vă invităm să programați o vizionare și să explorați toate beneficiile acestui spațiu, ne puteti contacta telefonic, specificand codul de identificare : P9200
Id intern: P9200

Solicită vizionarea proprietății

Alege o zi disponibilă

07 Decembrie
08 Decembrie
09 Decembrie
10 Decembrie

Alege un interval orar

8:00 - 12:00
12:00 - 15:00
15:00 - 18:00
18:00 - 21:00

Următoarele date de contact oferite de tine vor fi accesibile proprietarului:

Locație

Despre zona "Pipera"

păreri exprimate de 48 de utilizatori, pe o scară de la 1 la 10

Află clasamentul acestui cartier
Sănătate și Siguranță

Sănătate și Siguranță

7.0

Sănătate 6.5

Siguranță 7.8

Calitate aer 7.3

Curățenie 7.0

Zone verzi 6.4

Cultură și Educație

Cultură și Educație

6.1

Cultură 5.0

Educație 7.0

Sport 6.4

Ambianță și Lifestyle

Ambianță și Lifestyle

6.8

Nivel de trai 7.2

Magazine 6.6

Localuri 6.4

Parcări 6.4

Zgomot 7.4

Transport în comun

Transport în comun

5.4

Autobuz 5.5

Tramvai 5.1

Metrou 5.6

Contactează utilizatorul

ID: 4083828

2 Camere Cortina North Pipera

2 camere | 44 m² | Bucuresti-Ilfov / Bucuresti

133.000 €