Cristian Nistor

Consultant imobiliar

Vânzare

2 camere | 56 m²

2 Camere- Open-Space-Marriott

Bucuresti-Ilfov / Bucuresti
220.000 €

Rată estimată

4.638 Lei/lună

Avans (15%)

164.010 lei

Perioada împrumutului

30 ani

Specificații

Număr camere 2

Suprafața utilă 56 m²

Compartimentare 10

Confort 1

An finalizare construcție 2025

Tip imobil Bloc apartamente

Niveluri imobil 7

Număr Băi 1

Etaj 6

Stare proprietate Bună

Mobilat și Utilat Complet

Tip tranzacție Vânzare

Tip vânzător Companie

R.E.A Imobiliare va ofera spre vanzare un apartament cu 2 camere, open-space, situat intr-un bloc nou constructie 2025, intr-o zona premium din 13 Septembrie, la doar cativa pasi de JW Marriott Bucharest Grand Hotel(400m), Catedrala Mantuirii Neamului la 750m si Palatul Parlamentului la 1,2km

Incalzirea se realizeaza prin centrala proprie, incalzire in pardoseala si doua aere conditionate.
Apartamentul este mobilat si utilat, se vinde la cheie.

Apartamentul beneficiază de finisaje de lux, realizate cu materiale premium, atenție deosebită la detalii și un design modern, elegant. Compartimentarea este eficientă, oferind un spațiu aerisit și confortabil, ideal atât pentru locuință proprie, cât și pentru investiție.

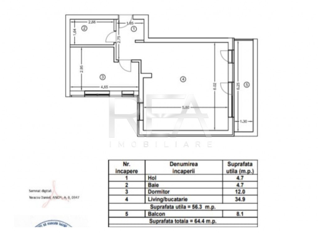
Compartimentare Open-space:
Camera+Bucatarie- 34,9mp
Dormitor- 12,0 mp
Baie- 4,7 mp
Hol- 4,7 mp
Suprafata totala utila de 64,4mp care include si balconul de 8,1 mp

Locația excelentă asigură acces rapid către puncte de interes importante, Scoli, gradinite, licee, instituții, zone verzi, restaurante și mijloace de transport, oferind un stil de viață exclusivist în inima capitalei.
Mijloace de transport in comun:
Soseaua Panduri la 500m, Piata arsenalului la 350m, Gheorghieni la 650m.

Disponibilitate imediata, un apartament ideal atat pentru locuit cat si pentru investitie.
Informatiile sunt preluate de la propietar si au scop orientativ.

Posibilitatea de loc de parcare 25.000 EURO + TVA

Pentru detalii si vizionari va rugam sa ne contactati specificand codul de identificare P9752.






Id intern: P9752

Solicită vizionarea proprietății

Alege o zi disponibilă

18 Martie
19 Martie
20 Martie
21 Martie

Alege un interval orar

8:00 - 12:00
12:00 - 15:00
15:00 - 18:00
18:00 - 21:00

Următoarele date de contact oferite de tine vor fi accesibile proprietarului:

Locație

Despre zona "13 Septembrie"

păreri exprimate de 307 de utilizatori, pe o scară de la 1 la 10

Află clasamentul acestui cartier
Sănătate și Siguranță

Sănătate și Siguranță

6.6

Sănătate 6.7

Siguranță 7.5

Calitate aer 6.2

Curățenie 6.5

Zone verzi 6.2

Cultură și Educație

Cultură și Educație

6.6

Cultură 5.7

Educație 7.4

Sport 6.8

Ambianță și Lifestyle

Ambianță și Lifestyle

6.7

Nivel de trai 7.1

Magazine 7.7

Localuri 6.8

Parcări 5.4

Zgomot 6.5

Transport în comun

Transport în comun

6.9

Autobuz 7.8

Tramvai 7.3

Metrou 5.6

Contactează utilizatorul

ID: 4108624

2 Camere- Open-Space-Marriott

2 camere | 56 m² | Bucuresti-Ilfov / Bucuresti

220.000 €