Vladislav Chirev

Consultant imobiliar

Vânzare

3 camere | 68 m²

3 camere cu vedere pe spate in Banu Manta | bloc 1978

Bucuresti-Ilfov / Bucuresti
172.000 €

Rată estimată

3.768 Lei/lună

Avans (15%)

128.226 lei

Perioada împrumutului

30 ani

Specificații

Număr camere 3

Suprafața utilă 68 m²

Compartimentare Decomandat

Confort 1

An finalizare construcție 1978

Tip imobil Bloc apartamente

Niveluri imobil 9

Număr Băi 1

Etaj 1

Stare proprietate Bună

Mobilat și Utilat Nemobilat

Tip tranzacție Vânzare

Tip vânzător Companie

R.E.A. Imobiliare
Apartament cu 3 camere, decomandat, cu vedere completă pe spate, situat la etajul 1/9, într-un bloc solid, anvelopat, construit în 1978. Poziționat într-una dintre cele mai căutate zone din nordul Capitalei – Banu Manta, la doar câțiva pași de: Primaria Sectorului 1, Școala Gimnazială Pia Brătianu si Parcul Kiseleff

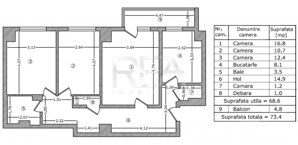
- Suprafață totală 73,4 mp: 68,6 mp utili+ 4,8 mp balcon.
- Compartimentare practică: 2 dormitoare, living, bucătărie, hol, debara, camara, baie și balcon.
- Necesită renovare, ideal pentru personalizare sau investiție.
- Încălzire prin sistem de termoficare. Posibilitate montare centrală proprie

- Acces rapid la transport în comun: 2 minute până la stațiile STB, 5 minute până la metrou Basarab, 16 minute până la metrou Piața Victoriei
Programează o vizionare! Cod proprietate: P8295


Id intern: P8295

Solicită vizionarea proprietății

Alege o zi disponibilă

27 Decembrie
28 Decembrie
29 Decembrie
30 Decembrie

Alege un interval orar

8:00 - 12:00
12:00 - 15:00
15:00 - 18:00
18:00 - 21:00

Următoarele date de contact oferite de tine vor fi accesibile proprietarului:

Locație

Despre zona "Banu Manta"

păreri exprimate de 26 de utilizatori, pe o scară de la 1 la 10

Află clasamentul acestui cartier
Sănătate și Siguranță

Sănătate și Siguranță

7.7

Sănătate 8.6

Siguranță 8.5

Calitate aer 6.0

Curățenie 7.5

Zone verzi 7.7

Cultură și Educație

Cultură și Educație

7.3

Cultură 6.3

Educație 8.0

Sport 7.7

Ambianță și Lifestyle

Ambianță și Lifestyle

6.9

Nivel de trai 7.9

Magazine 7.9

Localuri 7.7

Parcări 5.2

Zgomot 5.6

Transport în comun

Transport în comun

9.1

Autobuz 9.3

Tramvai 9.4

Metrou 8.7

Contactează utilizatorul

ID: 4033110

3 camere cu vedere pe spate in Banu Manta | bloc 1978

3 camere | 68 m² | Bucuresti-Ilfov / Bucuresti

172.000 €