Cristian Nistor

Consultant imobiliar

Vânzare

3 camere | 61 m²

3 Camere-Bloc anvelopat -Petre Ispirescu/Salaj

Bucuresti-Ilfov / Bucuresti
109.000 €

Rată estimată

2.347 Lei/lună

Avans (15%)

81.260 lei

Perioada împrumutului

30 ani

Specificații

Număr camere 3

Suprafața utilă 61 m²

Compartimentare Decomandat

Confort 1

An finalizare construcție 1978

Tip imobil Bloc apartamente

Niveluri imobil 10

Număr Băi 1

Etaj 3

Stare proprietate Bună

Tip tranzacție Vânzare

Tip vânzător Companie

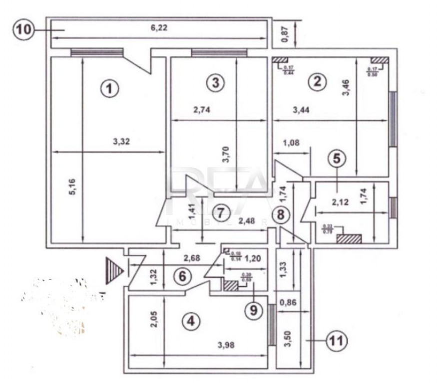
REA Imobiliare va propune spre vanzare un apartament cu 3 camere decomandat situat la etajul 3 din 10 intr-un bloc reabilitat construit in anul 1978 la doar cativa pasi de Liceul Teoretic Dimitrie Bolintineanu, Policlinica Rahova si Statia de trnavai Petre Ispirescu.
Inclazirea se realizeaza prin termoficare si calorifere.
Compartimentare eficienta-decomandat- suprafata utila: 61 mp fara balcoane.
2 balcoane, Cel mare de 5,41 mp si cel mic de 3,01 mp.
Instalatia electrica este NOUA.
Geam la baie.
Apartament curat si bine intretinut.
Posibilitate de montare centrala
Localizare eficienta:
Mijloace de transport in comun: Statia de tranvai Petre Ispirescu la 450m, Statia Ratb Sebastian la 700m
Liceul Teoretic Bolintineanu la 550m, Kauflad la 650m.

In zona sunt toate facilitatiile: Scoli, magazine, restaurante, zone verzi, mijloace de transport in comun
Pentru mai multe detalii dar si pentru a programa o vizionare ne puteti contacta specificand codul de identificare P10058 
Id intern: P10058

Solicită vizionarea proprietății

Alege o zi disponibilă

22 Aprilie
23 Aprilie
24 Aprilie
25 Aprilie

Alege un interval orar

8:00 - 12:00
12:00 - 15:00
15:00 - 18:00
18:00 - 21:00

Următoarele date de contact oferite de tine vor fi accesibile proprietarului:

Locație

Despre zona "Rahova"

păreri exprimate de 707 de utilizatori, pe o scară de la 1 la 10

Află clasamentul acestui cartier
Sănătate și Siguranță

Sănătate și Siguranță

6.4

Sănătate 6.7

Siguranță 7.3

Calitate aer 6.2

Curățenie 6.0

Zone verzi 5.9

Cultură și Educație

Cultură și Educație

6.2

Cultură 5.1

Educație 7.2

Sport 6.4

Ambianță și Lifestyle

Ambianță și Lifestyle

6.6

Nivel de trai 6.8

Magazine 7.9

Localuri 6.3

Parcări 5.4

Zgomot 6.6

Transport în comun

Transport în comun

6.9

Autobuz 7.9

Tramvai 7.8

Metrou 4.9

Contactează utilizatorul

ID: 4123989

3 Camere-Bloc anvelopat -Petre Ispirescu/Salaj

3 camere | 61 m² | Bucuresti-Ilfov / Bucuresti

109.000 €