Florin Ghenceanu

Consultant imobiliar

Vânzare

3 camere | 63 m²

3cam.dec-1baie-disponibil imediat/Bvd Brancoveanu 130-132...

Bucuresti-Ilfov / Bucuresti
85.000 €

Rată estimată

1.830 Lei/lună

Avans (15%)

63.368 lei

Perioada împrumutului

30 ani

Specificații

Preț negociabil Nu

Suprafața utilă 63 m²

Număr camere 3

Tip imobil Bloc apartamente

Compartimentare Decomandat

Număr Băi 1

Etaj 6

Niveluri imobil 10

An finalizare construcție 1974

Confort 1

Ansamblu Rezidențial Nu

Posibilitate parcare Nu

Stare proprietate Bună

Tip tranzacție Vânzare

Tip vânzător Companie

Proprietar,

vand(cash/credit, LA PRETUL DE 85000EURO, daca vanzarea/(intrarea intr-un antecontract) se face pana la data de 24.04.2026, altfel, dupa aceasta data pretul proprietatii va reveni la 95000euro) prin agentie(tel: 0720002332 -  pentru detalii si vizionari, comision 1,5% - pentru cumparator, din pretul de tranzactionare; aveti incluse servicii complete de consiliere si asistenta, notariala si bancara, inclusiv brokeraj bancar si consiliere si asistenta post vanzare),

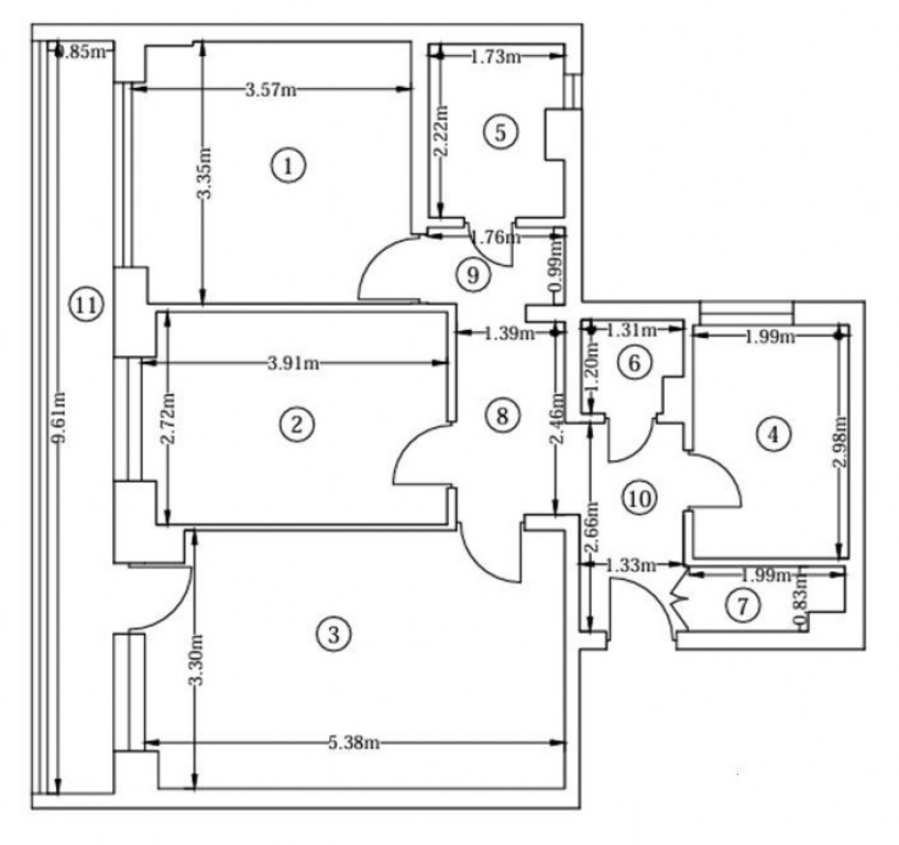
apartament total decomandat(arata exact ca in fotografii), compus din 3 camere si dependinte(hol decomandare, 2 debarale, bucatarie, baie, balcon inchis cu tamplarie cu geam termopan, ca urmare a reabilitarii termice a blocului, acesta fiind anvelopat), disponibil imediat dupa vanzare.
Actele sunt pregatite pentru vanzare(regasiti alaturi de fotografiile corespunzatoare si releveul(schita + descrierea) si certificatul energetic).

Apartamentul este igienizat(zugravit recent), calorifere din otel, aluminiu si fonta, pe instalatie de cupru(racordata la termoficatrea blocului), parchet laminat in camere, gresie si faianta pe hol, in baie, in bucatarie si pe balcon, nu dispune de centrala termica proprie, este nemobilat si neutilat, avand usile de interior din lemn(lacuit) iar geamurile si tocurile acestora(cu exceptia geamului de la bucatarie) de cand a fost construit blocul(anul de constructie este 1974).

Apartamentul este dispus pe Sud-Vest, avand o lumina naturala foarte buna, pe aproape tot parcursul zilei si vederea spre curtea interioara, beneficiind astfel de liniste si intimitate.

Blocul este retras de la strada, avand in imediata apropiere un mic parc si acces imediat la mijloace de transport(statii STB), fiind amplasat in apropierea intersectiei Bvd. Brancoveanu cu str. Luica, oferind facilitatile zonei: Mall Grand Arena, Spitalul Budimex, Scoala nr.98, Gradinita nr. 225 - Veseliei, metrou Brancoveanu, Parcul Oraselul Copiilor, Hornbach, Selgros, Kaufland, etc.

Solicită vizionarea proprietății

Alege o zi disponibilă

18 Aprilie
19 Aprilie
20 Aprilie
21 Aprilie

Alege un interval orar

8:00 - 12:00
12:00 - 15:00
15:00 - 18:00
18:00 - 21:00

Următoarele date de contact oferite de tine vor fi accesibile proprietarului:

Locație

Despre zona "Brancoveanu"

păreri exprimate de 285 de utilizatori, pe o scară de la 1 la 10

Află clasamentul acestui cartier
Sănătate și Siguranță

Sănătate și Siguranță

7.7

Sănătate 7.7

Siguranță 8.0

Calitate aer 6.8

Curățenie 7.7

Zone verzi 8.2

Cultură și Educație

Cultură și Educație

7.4

Cultură 6.4

Educație 7.9

Sport 7.7

Ambianță și Lifestyle

Ambianță și Lifestyle

7.1

Nivel de trai 7.2

Magazine 8.3

Localuri 7.3

Parcări 5.9

Zgomot 7.0

Transport în comun

Transport în comun

7.7

Autobuz 8.2

Tramvai 6.9

Metrou 8.0

Contactează utilizatorul

ID: 4160315

3cam.dec-1baie-disponibil imediat/Bvd Brancoveanu 130-132...

3 camere | 63 m² | Bucuresti-Ilfov / Bucuresti

85.000 €