Daniel Gorgu

Consultant imobiliar

Vânzare

4 camere | 90 m²

Amplasament Central Suprafata Generoasa

Brasov / Brasov
290.000 €

Rată estimată

6.354 Lei/lună

Avans (15%)

216.195 lei

Perioada împrumutului

30 ani

Specificații

Preț negociabil Nu

Suprafața utilă 90 m²

Număr camere 4

Tip imobil Casă / Vilă

Compartimentare Decomandat

Număr Băi 2

Etaj 1

Niveluri imobil 1

An finalizare construcție 1960

Confort 1

Ansamblu Rezidențial Nu

Posibilitate parcare Nu

Stare proprietate Bună

Tip tranzacție Vânzare

Tip vânzător Companie

LOCALIZARE:
Acest imobil este situat in centrul Brasovului, in imediata apropiere a strazii Apollonia Hirscher.

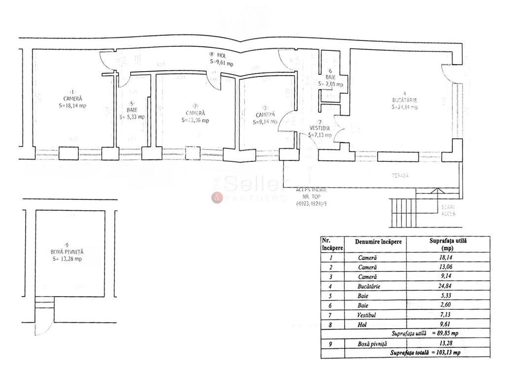
COMPARTIMENTARE:
-	Zona de zi, care are o suprafata generoasa, detine suprafata vitrata mare si care are deschidere la terasa;
-	Bucataria, de tip open space, fiind mobilata si dotata, cu deschidere spre zona de zi, care beneficiaza de acces la terasa;
-       Grup sanitar, dotat cu cabina de dus;
-	Dormitorul matrimonial, cu o suprafata generoasa si suprafata vitrata mare;
-       Dormitorul 2, cu suprafata generoasa, fiind mobilat;
-       Camera multifunctionala, potrivita atat ca dormitor, cat si ca birou;
-	Baia, cu suprafata generoasa, dotata cu cabina de dus si cu aerisire naturala;
DOTARI:
-	centrala termica;
-	tamplarie PVC, cu geam termopan;
-	usa lemn stratificat;
-       usi interioare din lemn stratificat; 
-       parchet lemn masiv; 
-	incalzire clasica cu radiatoare;

Tranzactionarea proprietatii se va face fara mobilierul aferent prezentei ofertari, cu exceptia bucatariei care ramane. 

IMPREJURIMI:
Imobilul este situat intr-o zona de vile, accesul auto, pana zona de centru a orasului, facandu-se in cca.  5 minute.

ATRACTII ZONA: Obiective turistice, magazine, restaurante, parcuri, școli, spitale.
ACCESIBILITATE: Transport public în apropiere | la aproximativ 100m.
FORMA ACHIZITIONARE: Se accepta plata prin accesare credit.

NOTA:
Informatiile prezentate reflecta situatia reala a proprietatii, fara a constitui o oferta contractuala. 
Aceste date au fost obtinute verbal, de la titularul de drept al imobilului.

Structura acestei prezentari nu poate fi reprodusa, fara acordul scris al The Seller and Partners.

Solicită vizionarea proprietății

Alege o zi disponibilă

15 Decembrie
16 Decembrie
17 Decembrie
18 Decembrie

Alege un interval orar

8:00 - 12:00
12:00 - 15:00
15:00 - 18:00
18:00 - 21:00

Următoarele date de contact oferite de tine vor fi accesibile proprietarului:

Locație

Contactează utilizatorul

ID: 4098745

Amplasament Central Suprafata Generoasa

4 camere | 90 m² | Brasov / Brasov

290.000 €


Vezi și alte anunțuri imobiliare
Apartamente vânzare Brasov-bv - 13 Decembrie Case-vile vânzare Brasov-bv - 13 Decembrie Garsoniere vânzare Brasov-bv - 13 Decembrie Terenuri vânzare Brasov-bv - 13 Decembrie Apartamente vânzare Brasov-bv - 15 Noiembrie Case-vile vânzare Brasov-bv - 15 Noiembrie Garsoniere vânzare Brasov-bv - 15 Noiembrie Terenuri vânzare Brasov-bv - 15 Noiembrie Apartamente vânzare Brasov-bv - Astra Case-vile vânzare Brasov-bv - Astra Garsoniere vânzare Brasov-bv - Astra Terenuri vânzare Brasov-bv - Astra