BLITZ Romania

Consultant imobiliar

Vânzare

2 camere | 40 m²

Apartament 2 camere, 40 mp, complex Maurer, Tg Mures

Mures / Targu Mures
102.500 €

Rată estimată

2.207 Lei/lună

Avans (15%)

76.414 lei

Perioada împrumutului

30 ani

Specificații

Număr camere 2

Suprafața utilă 40 m²

Compartimentare Semidecomandat

Niveluri imobil 4

Număr Băi 1

Etaj 4

Mobilat și Utilat Parțial

Tip imobil Bloc apartamente

Stare proprietate Bună

Confort 1

Tip tranzacție Vânzare

Tip vânzător Companie

Blitz vă propunem spre vânzare un apartament cu 2 camere, situat la etajul 4 din 4, într-un imobil modern, ideal atât pentru locuit/ birou cât și pentru investiție.

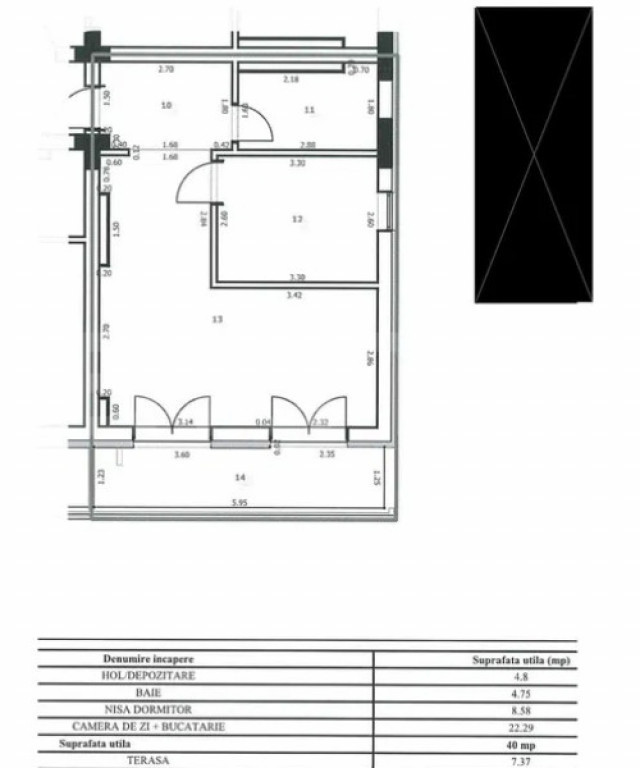
Apartamentul are o suprafață utilă de 40 mp și este compartimentat eficient, fiind compus din: hol cu spații de depozitare, living, dormitor, bucătărie și baie cu duș.
 Puncte forte:

Terasă generoasă de 7,37 mp, cu orientare spre centru
Lumină naturală directă până în jurul orei 13:00,
Amplasare la stradă principală, cu acces facil către puncte de interes
 Dotări:
Aer condiționat
Centrală termică proprie pe gaz
Posibilitate vânzare parțial mobilată
Boxă de depozitare inclusă în preț
Opțional:
Loc de parcare disponibil lângă bloc (~8.000 €), neincluse în preț.
Pentru mai multe detalii sau pentru programarea unei vizionări, nu ezitați să ne contactați.
Cod ofertă / ID BLITZ: P169593
Id intern: P169593

Solicită vizionarea proprietății

Alege o zi disponibilă

30 Aprilie
01 Mai
02 Mai
03 Mai

Alege un interval orar

8:00 - 12:00
12:00 - 15:00
15:00 - 18:00
18:00 - 21:00

Următoarele date de contact oferite de tine vor fi accesibile proprietarului:

Locație

Despre zona "Libertatii"

păreri exprimate de 38 de utilizatori, pe o scară de la 1 la 10

Află clasamentul acestui cartier
Sănătate și Siguranță

Sănătate și Siguranță

6.4

Sănătate 6.2

Siguranță 7.1

Calitate aer 5.5

Curățenie 6.7

Zone verzi 6.7

Cultură și Educație

Cultură și Educație

6.1

Cultură 5.6

Educație 6.7

Sport 6.1

Ambianță și Lifestyle

Ambianță și Lifestyle

6.5

Nivel de trai 6.4

Magazine 6.9

Localuri 6.7

Parcări 6.5

Zgomot 5.9

Transport în comun

Transport în comun

7.1

Autobuz 7.1

Tramvai 0.0

Metrou 0.0

Contactează utilizatorul

ID: 4160946

Apartament 2 camere, 40 mp, complex Maurer, Tg Mures

2 camere | 40 m² | Mures / Targu Mures

102.500 €


Vezi și alte anunțuri imobiliare
Apartamente vânzare Targu-mures-ms - 1 Decembrie 1918 Case-vile vânzare Targu-mures-ms - 1 Decembrie 1918 Garsoniere vânzare Targu-mures-ms - 1 Decembrie 1918 Terenuri vânzare Targu-mures-ms - 1 Decembrie 1918 Apartamente vânzare Targu-mures-ms - 1848 Case-vile vânzare Targu-mures-ms - 1848 Garsoniere vânzare Targu-mures-ms - 1848 Terenuri vânzare Targu-mures-ms - 1848 Apartamente vânzare Targu-mures-ms - 1Autogara Case-vile vânzare Targu-mures-ms - 1Autogara Garsoniere vânzare Targu-mures-ms - 1Autogara Terenuri vânzare Targu-mures-ms - 1Autogara