BLITZ Romania

Consultant imobiliar

Vânzare

2 camere | 56 m²

Apartament 2 camere 56,5 mp, cu gradina si parcare subterana

Cluj / Cluj-Napoca
166.000 €

Rată estimată

3.637 Lei/lună

Avans (15%)

123.753 lei

Perioada împrumutului

30 ani

Specificații

Număr camere 2

Suprafața utilă 56 m²

Compartimentare Semidecomandat

An finalizare construcție 2022

Niveluri imobil 6

Număr Băi 1

Numărul de locuri de parcare 1

Etaj Parter

Mobilat și Utilat Nemobilat

Tip imobil Bloc apartamente

Stare proprietate Bună

Confort 1

Tip tranzacție Vânzare

Tip vânzător Companie

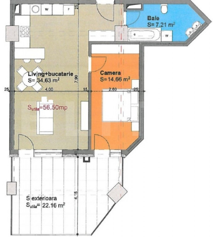
Blitz va propune un apartament de 2 camere, semidecomandat, cu parcare subterana si terasa/gradina de 22 mp in complexul Viva city din zona Iulius mall, Gheorgheni. Apartamentul are o suprafata de 56,5 mp si dispune de un dormitor cu iesire pe terasa, o baie spatioasa cu cada si un living open space cu bucatarie de unde se poate iesi pe aceeasi terasa. Este situat la parter peste garajele subterane ale blocului, se vinde finisat, nemobilat, ceea ce va ofera oportunitatea sa va puneti amprenta asupra design-ului interior. Parcarea subterana se vinde separat la pretul de 10000 euro TVA INCLUS . Pentru mai multe detalii va asteptam la vizionare.
Cod ofertă / ID BLITZ: P137057
Id intern: P137057

Solicită vizionarea proprietății

Alege o zi disponibilă

07 Decembrie
08 Decembrie
09 Decembrie
10 Decembrie

Alege un interval orar

8:00 - 12:00
12:00 - 15:00
15:00 - 18:00
18:00 - 21:00

Următoarele date de contact oferite de tine vor fi accesibile proprietarului:

Locație

Despre zona "Gheorgheni"

păreri exprimate de 216 de utilizatori, pe o scară de la 1 la 10

Află clasamentul acestui cartier
Sănătate și Siguranță

Sănătate și Siguranță

8.0

Sănătate 7.8

Siguranță 8.3

Calitate aer 7.4

Curățenie 7.9

Zone verzi 8.4

Cultură și Educație

Cultură și Educație

7.8

Cultură 7.0

Educație 8.3

Sport 8.2

Ambianță și Lifestyle

Ambianță și Lifestyle

7.3

Nivel de trai 7.5

Magazine 8.1

Localuri 7.5

Parcări 6.0

Zgomot 7.2

Transport în comun

Transport în comun

7.1

Autobuz 8.3

Tramvai 5.9

Metrou 0.0

Contactează utilizatorul

ID: 3867819

Apartament 2 camere 56,5 mp, cu gradina si parcare subterana

2 camere | 56 m² | Cluj / Cluj-Napoca

166.000 €


Vezi și alte anunțuri imobiliare
Apartamente vânzare Cluj-napoca-cj - Aeroport Case-vile vânzare Cluj-napoca-cj - Aeroport Garsoniere vânzare Cluj-napoca-cj - Aeroport Terenuri vânzare Cluj-napoca-cj - Aeroport Apartamente vânzare Cluj-napoca-cj - Andrei Muresanu Case-vile vânzare Cluj-napoca-cj - Andrei Muresanu Garsoniere vânzare Cluj-napoca-cj - Andrei Muresanu Terenuri vânzare Cluj-napoca-cj - Andrei Muresanu Apartamente vânzare Cluj-napoca-cj - Apahida Case-vile vânzare Cluj-napoca-cj - Apahida Garsoniere vânzare Cluj-napoca-cj - Apahida Terenuri vânzare Cluj-napoca-cj - Apahida