BLITZ Romania

Consultant imobiliar

Vânzare

2 camere | 52 m²

Apartament 2 camere, 60 mp, cartier Veteranilor - parcul N.

Dolj / Craiova
95.500 €

Rată estimată

2.066 Lei/lună

Avans (15%)

71.195 lei

Perioada împrumutului

30 ani

Specificații

Număr camere 2

Suprafața utilă 52 m²

Compartimentare Decomandat

Tip imobil Bloc apartamente

Niveluri imobil 3

Număr Băi 1

Nu include TVA Da

Etaj 3

Stare proprietate Bună

Mobilat și Utilat Nemobilat

Confort 1

Tip tranzacție Vânzare

Tip vânzător Companie

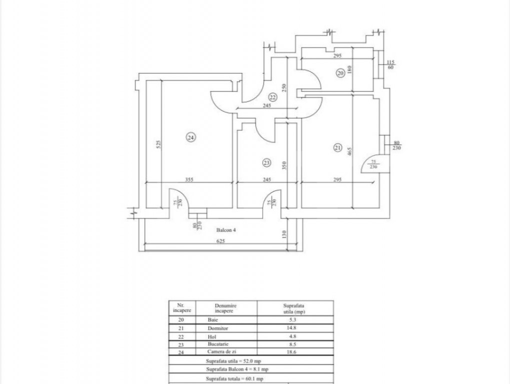
Blitz va propune spre achizite un apartament decomandat cu o suprafata total de 60.1 mp, din care 52 mp suprafata utila si 8.1 mp balconul.

Imobilul este situat la etajul 3 al unui bloc cu 3 etaje. Apartamentul se va preda la cheie avand gresie, faianta, santiarele, termopan, usi interioare, usa metalica la intrare, interfon si centrala proprie cu incalzire pe calorifere. Constructia este una calitativa avand: pereti perimetrali zidarie BCA si stalpi din beton armat, ⁠grinzi si stalpi beton armat, ⁠sarpanta din lemn termoizolata cu spuma poliuretanica cu celula inchisa de 14 cm si inchidere cu tabla 0,55 dublu faltuita garantie 20 ani. ⁠termosistem 10 cm exterior, finisat cu plasa fibra si imbracat in tabla pentru considerente arhitecturale, tencuiala uscata de gyps carton aplicata peste zidarie de BcA la interior pentru finisaj premium, ⁠tamplarie PvC Salamander cu sticla termoizolantă de 28 mm Madrugada. In incinta compelxului accesul se face pe baza de telecomanda (bariera) iar locurile de parcare care pot fi achizitionate separat la pretul de 7000€ + TVA. In imediata vecinatate putem gasi Parcul Nicolae Romanescu, scoala Ethos, Kaufland si Lidl la 5 minute, iar accesul la mijloacele de transport in comun, este unul facil. 

Pentru mai multe detalii, va asteptam cu drag la vizionare!
Cod ofertă / ID BLITZ: P161278
Id intern: P161278

Solicită vizionarea proprietății

Alege o zi disponibilă

09 Februarie
10 Februarie
11 Februarie
12 Februarie

Alege un interval orar

8:00 - 12:00
12:00 - 15:00
15:00 - 18:00
18:00 - 21:00

Următoarele date de contact oferite de tine vor fi accesibile proprietarului:

Locație

Contactează utilizatorul

ID: 4109202

Apartament 2 camere, 60 mp, cartier Veteranilor - parcul N.

2 camere | 52 m² | Dolj / Craiova

95.500 €


Vezi și alte anunțuri imobiliare
Apartamente vânzare Craiova-dj - 1 Mai Case-vile vânzare Craiova-dj - 1 Mai Garsoniere vânzare Craiova-dj - 1 Mai Terenuri vânzare Craiova-dj - 1 Mai Apartamente vânzare Craiova-dj - 2Cornitoiu Case-vile vânzare Craiova-dj - 2Cornitoiu Garsoniere vânzare Craiova-dj - 2Cornitoiu Terenuri vânzare Craiova-dj - 2Cornitoiu Apartamente vânzare Craiova-dj - Aeroport Case-vile vânzare Craiova-dj - Aeroport Garsoniere vânzare Craiova-dj - Aeroport Terenuri vânzare Craiova-dj - Aeroport