Alexandru Luca

Consultant imobiliar

Vânzare

2 camere | 56 m²

Apartament 2 camere balcon gradina si loc parcare zona Doamn

Sibiu / Sibiu
116.160 €

Rată estimată

2.545 Lei/lună

Avans (15%)

86.597 lei

Perioada împrumutului

30 ani

Specificații

Consum total de energie primară 0

Indicele de emisii echivalent CO2 0

Consum total din surse regenerabile 0

Număr camere 2

Număr Băi 1

Suprafața utilă 56 m²

Compartimentare Decomandat

Confort attribute_options.confort.1 sporit

An finalizare construcție 2025

Nu include TVA Nu

Niveluri imobil 3

Mobilat și Utilat Nemobilat

Posibilitate parcare Da

Numărul de locuri de parcare 1

Tip imobil Bloc apartamente

Stare proprietate Bună

Etaj Parter

Tip tranzacție Vânzare

Tip vânzător Companie

Comision 0! De vanzare in Selimbar, apartament cu 2 camere decomandate, gradina, balcon si loc de parcare, situat intr-un imobil cu doar 3 etaje in zona Doamna Stanca.
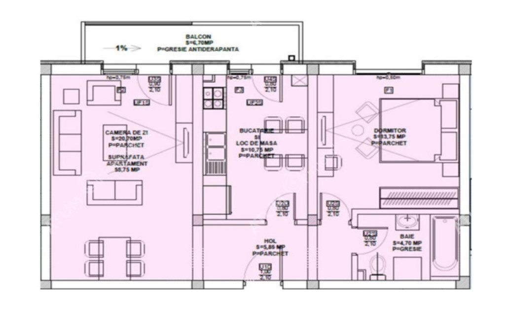
Apartamentul are suprafata utila de 55.75 mp, distribuita pe living de 22.70 mp, dormitor de 13.75 mp, bucatarie de 10.75 mp, baie de 4.70 mp si hol de acces de 5.85 mp unde se poate amenaja cuier si pantofar. Separat de suprafata utila mai beneficiaza de un balcon de 6.70 mp si o gradina in suprafata de 40.3 mp.
Locuinta detine finisaje si dotari standard precum:
- Usa metalica de acces;
- Usi interioare ;
- Interfon montat pe pozitie;
- Obiecte sanitare montate pe pozitie;
- Pereti interiori din caramida, tencuiti ( tencuiala pe baza de var-ciment ), doua straturi aplicate de glet si zugraviti cu lavabila alba;
- Pardoseli amenajate parchet laminat, gresie si faianta in baie si bucatarie;
- Prize si intrerupatoare funtionale montate pe pozitie;
- Tamplarie PVC marca Salamander cu 5 camere si 3 foi de sticla, glafuri exterioare de aluminiu si interioare din PVC;
- Centrala termica proprie pe gaz marca Bosch in condensare cu senzor de gaz si incalzire in pardoseala;
- Racorduri apa-canal in bucatarie si bai;
- Racord gaz metan in bucatarie;
- Instalatii electrice trase pe pozitie cu tablou general si sigurante pentru consumatorii de putere, instalatii pentru TV si internet trase pe pozitie;
- Contorizari individuale si contoare montate pentru gaz, curent si apa;
- Balcon placat cu gresie antiderapanta.
Casa scarii se va preda complet finisata si dotata cu: pereti tencuiti si zugraviti cu vopsea lavabila, plafoniere cu senzor de miscare, pardoseala placata cu gresie antiderapanta, interfon la intrare, usa de acces din PVC cu inchidere electromagnetica.
In pretul de achizitie este inclus si un loc de parcare privat, delimitat si inscriptionat, situat in fata imobilului.
Apartamentul face parte dintr-un complex rezidential de imobile cu regim redus de inaltime (Parter   3 Etaje), dotat cu alei pietonale pavate cu dale de beton si iluminate, acces auto si spatiile verzi complet amenjate.
Valoarea de achizitie a apartamentului la avans minim de 15% este 116160 euro. Acesta se poate achizitiona si prin credit bancar. ID intern: 3002.

Solicită vizionarea proprietății

Alege o zi disponibilă

07 Decembrie
08 Decembrie
09 Decembrie
10 Decembrie

Alege un interval orar

8:00 - 12:00
12:00 - 15:00
15:00 - 18:00
18:00 - 21:00

Următoarele date de contact oferite de tine vor fi accesibile proprietarului:

Locație

Despre zona "Mihai Viteazul"

păreri exprimate de 123 de utilizatori, pe o scară de la 1 la 10

Află clasamentul acestui cartier
Sănătate și Siguranță

Sănătate și Siguranță

7.4

Sănătate 7.2

Siguranță 8.2

Calitate aer 7.2

Curățenie 7.5

Zone verzi 7.0

Cultură și Educație

Cultură și Educație

7.3

Cultură 7.0

Educație 7.7

Sport 7.2

Ambianță și Lifestyle

Ambianță și Lifestyle

7.3

Nivel de trai 7.6

Magazine 8.0

Localuri 7.8

Parcări 6.2

Zgomot 6.8

Transport în comun

Transport în comun

8.1

Autobuz 8.1

Tramvai 0.0

Metrou 0.0

Contactează utilizatorul

ID: 4061835

Apartament 2 camere balcon gradina si loc parcare zona Doamn

2 camere | 56 m² | Sibiu / Sibiu

116.160 €


Vezi și alte anunțuri imobiliare
Apartamente vânzare Sibiu-sb - Aeroport Case-vile vânzare Sibiu-sb - Aeroport Garsoniere vânzare Sibiu-sb - Aeroport Terenuri vânzare Sibiu-sb - Aeroport Apartamente vânzare Sibiu-sb - Broscarie Case-vile vânzare Sibiu-sb - Broscarie Garsoniere vânzare Sibiu-sb - Broscarie Terenuri vânzare Sibiu-sb - Broscarie Apartamente vânzare Sibiu-sb - Calea Cisnadiei Case-vile vânzare Sibiu-sb - Calea Cisnadiei Garsoniere vânzare Sibiu-sb - Calea Cisnadiei Terenuri vânzare Sibiu-sb - Calea Cisnadiei