BLITZ Romania

Consultant imobiliar

Vânzare

2 camere | 49 m²

Apartament 2 camere, etajul 1, comision 0, Terra Gardens Oas

Cluj / Cluj-Napoca
91.131 €

Rată estimată

1.997 Lei/lună

Avans (15%)

67.938 lei

Perioada împrumutului

30 ani

Specificații

Număr camere 2

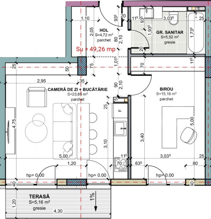
Suprafața utilă 49 m²

Compartimentare Semidecomandat

An finalizare construcție 2026

Tip imobil Bloc apartamente

Niveluri imobil 3

Număr Băi 1

Nu include TVA Da

Etaj 1

Stare proprietate În construcție

Mobilat și Utilat Nemobilat

Confort 1

Tip tranzacție Vânzare

Tip vânzător Companie

Blitz va prezinta un apartament cu 2 camere si o terasa de 20 mp în Terra Gardens, Cluj-Napoca
Locuințe moderne într-un ansamblu exclusivist cu acces privat, compus din case și blocuri cu regim redus de înălțime – o alegere ideală pentru familii sau investiție sigură.

Termen de finalizare: august 2026
Comision 0%

Exemplu disponibil – etajul 1
• parcare subterana 10.000 tva inclus
• Suprafață utilă: 49,26 mp
• 1 dormitor, o baie
• Living generos cu bucătărie open-space
• Predare la stadiul de semifinisat – 2 mâini de glet, șapă, instalații trase pe poziții
• Încălzire în pardoseală
• Centrală termică smart pe bloc

Pretul afisat nu include TVA-ul! 
Cod ofertă / ID BLITZ: P158099
Id intern: P158099

Solicită vizionarea proprietății

Alege o zi disponibilă

08 Decembrie
09 Decembrie
10 Decembrie
11 Decembrie

Alege un interval orar

8:00 - 12:00
12:00 - 15:00
15:00 - 18:00
18:00 - 21:00

Următoarele date de contact oferite de tine vor fi accesibile proprietarului:

Locație

Despre zona "Iris"

păreri exprimate de 78 de utilizatori, pe o scară de la 1 la 10

Află clasamentul acestui cartier
Sănătate și Siguranță

Sănătate și Siguranță

6.8

Sănătate 6.2

Siguranță 7.7

Calitate aer 7.0

Curățenie 7.0

Zone verzi 6.0

Cultură și Educație

Cultură și Educație

5.8

Cultură 4.8

Educație 6.2

Sport 6.4

Ambianță și Lifestyle

Ambianță și Lifestyle

6.7

Nivel de trai 7.4

Magazine 7.1

Localuri 5.3

Parcări 6.2

Zgomot 7.3

Transport în comun

Transport în comun

7.6

Autobuz 7.4

Tramvai 7.7

Metrou 0.0

Contactează utilizatorul

ID: 4087344

Apartament 2 camere, etajul 1, comision 0, Terra Gardens Oas

2 camere | 49 m² | Cluj / Cluj-Napoca

91.131 €


Vezi și alte anunțuri imobiliare
Apartamente vânzare Cluj-napoca-cj - Aeroport Case-vile vânzare Cluj-napoca-cj - Aeroport Garsoniere vânzare Cluj-napoca-cj - Aeroport Terenuri vânzare Cluj-napoca-cj - Aeroport Apartamente vânzare Cluj-napoca-cj - Andrei Muresanu Case-vile vânzare Cluj-napoca-cj - Andrei Muresanu Garsoniere vânzare Cluj-napoca-cj - Andrei Muresanu Terenuri vânzare Cluj-napoca-cj - Andrei Muresanu Apartamente vânzare Cluj-napoca-cj - Apahida Case-vile vânzare Cluj-napoca-cj - Apahida Garsoniere vânzare Cluj-napoca-cj - Apahida Terenuri vânzare Cluj-napoca-cj - Apahida