Gabriel Stancu

Consultant imobiliar

Vânzare

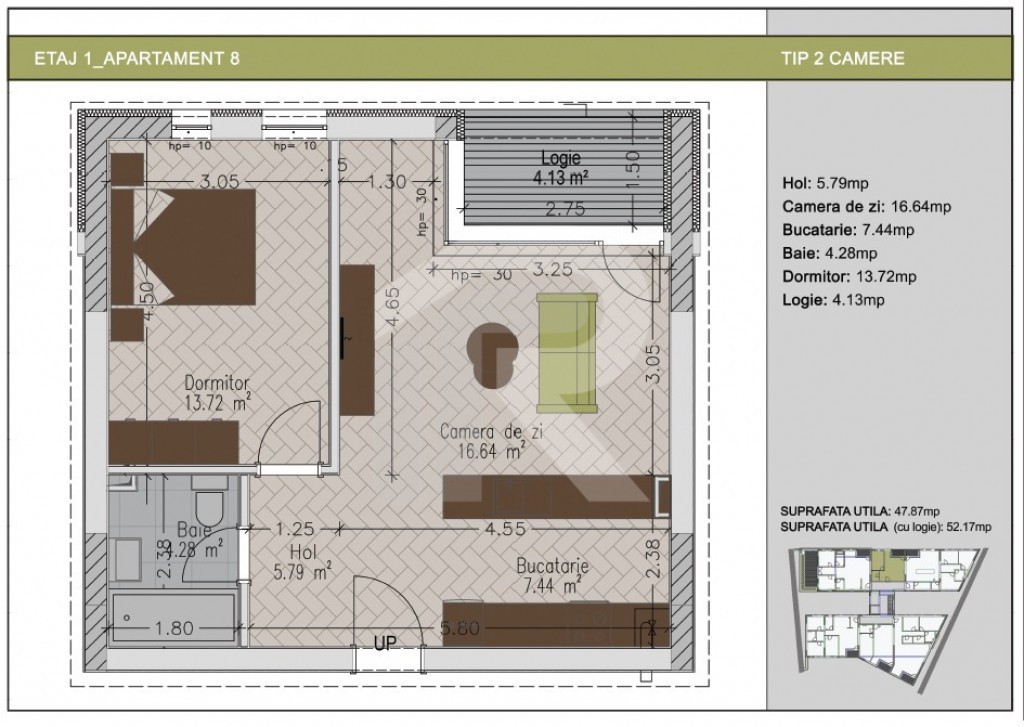
2 camere | 51 m²

Apartament 2 camere NOU 2025, Nerva Traian - Metrou Timpuri

Bucuresti-Ilfov / Bucuresti
170.000 €

Rată estimată

3.677 Lei/lună

Avans (15%)

126.735 lei

Perioada împrumutului

30 ani

Specificații

Număr camere 2

Suprafața utilă 51 m²

Compartimentare Decomandat

Confort 1

An finalizare construcție 2025

Tip imobil Bloc apartamente

Niveluri imobil 6

Număr Băi 1

Comision cumpărător 0%

Etaj 1

Stare proprietate Bună

Tip tranzacție Vânzare

Tip vânzător Companie

Va prezentam un apartament de 2 camere cu finisaje moderne premium, in bloc finalizat in 2025, perfect pentru cupluri tinere sau ca investitie inteligenta in cea mai dinamica zona a Bucurestiului.

Apartamentul impresioneaza prin atentia la detalii si materialele selectate: Parchet modern deschis la culoare in toate camerele, Gresie si faianta premium in baie (tonuri elegante bej-gri), Ferestre mari cu profile gri Slamander cu geam tripan (tamplarie moderna, cu izolare termica si fonica superioara), Usi interioare din lemn de calitate, Instalatii electrice si sanitare noi, cu contoare individuale, Incalzire in pardoseala pentru confort maxim, videinterfon, Baia este echipata complet: cada moderna, lavoar cu mobilier alb contemporan, toaleta suspendata, accesorii cromate - totul NOU si gata de utilizat.
 
Lumina naturala extraordinara - ferestrele generoase pe multiple orientari asigura luminozitate pe tot parcursul zilei, creand un ambient placut si sanatos.
 

La doar cateva minute de Metrou Timpuri Noi, 
Acces rapid catre centrul Bucurestiului, 
Zone verzi si parcuri in apropiere, 
Scoli, gradinite, farmacii la distanta de mers pe jos, 
Magazine, restaurante, cafenele, 
Transport in comun excelent, 
Zona linistita, rezidentiala, dar conectata urban, 

Pret competitiv: 170.000 EUR (tva inclus)- investitie sigura intr-un imobil nou, cu acte la zi si fara vicii ascunse.

Id intern: GS20459

Solicită vizionarea proprietății

Alege o zi disponibilă

26 Februarie
27 Februarie
28 Februarie
01 Martie

Alege un interval orar

8:00 - 12:00
12:00 - 15:00
15:00 - 18:00
18:00 - 21:00

Următoarele date de contact oferite de tine vor fi accesibile proprietarului:

Locație

Despre zona "Nerva Traian"

păreri exprimate de 36 de utilizatori, pe o scară de la 1 la 10

Află clasamentul acestui cartier
Sănătate și Siguranță

Sănătate și Siguranță

7.0

Sănătate 7.2

Siguranță 8.1

Calitate aer 6.2

Curățenie 7.3

Zone verzi 6.4

Cultură și Educație

Cultură și Educație

6.9

Cultură 6.0

Educație 7.9

Sport 6.9

Ambianță și Lifestyle

Ambianță și Lifestyle

7.0

Nivel de trai 7.4

Magazine 7.3

Localuri 7.3

Parcări 6.5

Zgomot 6.6

Transport în comun

Transport în comun

8.2

Autobuz 8.1

Tramvai 8.4

Metrou 8.1

Contactează utilizatorul

ID: 4133851

Apartament 2 camere NOU 2025, Nerva Traian - Metrou Timpuri

2 camere | 51 m² | Bucuresti-Ilfov / Bucuresti

170.000 €