irina ild

Proprietar

Vânzare

2 camere | 40 m²

Apartament 2 camere – Zona Badea Cârțan

Constanta / Constanta
98.000 €

Rată estimată

2.147 Lei/lună

Avans (15%)

73.059 lei

Perioada împrumutului

30 ani

Specificații

Număr camere 2

Suprafața utilă 40 m²

Compartimentare Semidecomandat

Confort 2

Etaj 4

Tip imobil Bloc apartamente

Stare proprietate Nouă

Niveluri imobil 4

Număr Băi 1

Mobilat și Utilat Complet

Comision cumpărător 0%

Preț negociabil Da

Ultimul etaj Da

Tip tranzacție Vânzare

Tip vânzător Persoană fizică

Apartament de vânzare – Zona Badea Cârțan 

???? Localizare excelentă:
• La 10 minute de mers pe jos de City Park Mall, Parcul Tăbăcărie și Maritimo – zone perfecte pentru plimbări, relaxare și timp de calitate
• Stație de autobuz la 5 minute de mers pe jos și taxi la scara blocului
• Școală și grădiniță în apropiere
• Acces rapid către Mamaia (10 minute cu mașina)

???? Detalii apartament:
• Bloc din beton
• Etaj 4 din 4 
• Uscător comun al blocului, chiar lângă apartament

✨ Complet renovat și modernizat:
• Centrală termică + calorifere (2020)
• Aer condiționat
• Instalație electrică și sanitară refăcute integral (2022)
• Parchet din lemn restaurat (șlefuit + lăcuit), gresie și faianță schimbate, pereți proaspăt văruiți, ușă de intrare nouă
• Apartament izolat termic la exterior + tâmplărie termopan
• Mobilier realizat pe comandă și electrocasnice moderne: plită de sticlă, cuptor electric, hotă, frigider cu finisaj din sticlă, mașină de spălat vase, mașină de spălat rufe cu uscător
• Conexiuni TV și internet trase prin perete, pentru un aspect curat și ordonat

???? Avantaje suplimentare:
• Se vinde complet mobilat și utilat – gata de mutare
• Acte la zi: cadastru și intabulare

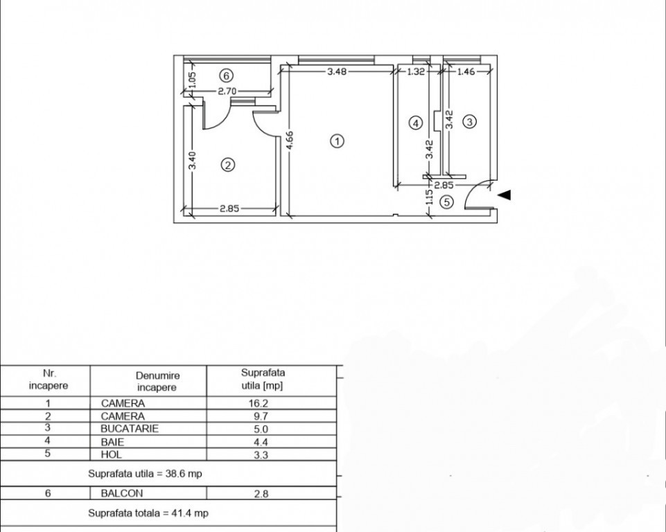
???? Suprafață utilă: 38,6 mp
???? Suprafață totală: 41,4 mp

???? Preț: 98.000 € negociabil

???? Direct proprietar: 0737 204 603

Solicită vizionarea proprietății

Alege o zi disponibilă

19 Decembrie
20 Decembrie
21 Decembrie
22 Decembrie

Alege un interval orar

8:00 - 12:00
12:00 - 15:00
15:00 - 18:00
18:00 - 21:00

Următoarele date de contact oferite de tine vor fi accesibile proprietarului:

Locație

Contactează utilizatorul

ID: 4101751

Apartament 2 camere – Zona Badea Cârțan

2 camere | 40 m² | Constanta / Constanta

98.000 €


Vezi și alte anunțuri imobiliare
Apartamente vânzare Constanta-ct - Abator Case-vile vânzare Constanta-ct - Abator Garsoniere vânzare Constanta-ct - Abator Terenuri vânzare Constanta-ct - Abator Apartamente vânzare Constanta-ct - Anadolchioi Case-vile vânzare Constanta-ct - Anadolchioi Garsoniere vânzare Constanta-ct - Anadolchioi Terenuri vânzare Constanta-ct - Anadolchioi Apartamente vânzare Constanta-ct - Ancora Case-vile vânzare Constanta-ct - Ancora Garsoniere vânzare Constanta-ct - Ancora Terenuri vânzare Constanta-ct - Ancora