Cornel Ion

Consultant imobiliar

Vânzare

2 camere | 50 m²

Apartament 2camere decomandat 50mp Popesti Leordeni -Sose...

Bucuresti-Ilfov / Popesti Leordeni
97.990 €

Rată estimată

2.110 Lei/lună

Avans (15%)

73.052 lei

Perioada împrumutului

30 ani

Specificații

Preț negociabil Da

Suprafața utilă 50 m²

Număr camere 2

Tip imobil Bloc apartamente

Compartimentare Decomandat

Număr Băi 1

Etaj Parter

Niveluri imobil 4

An finalizare construcție 2019

Confort 1

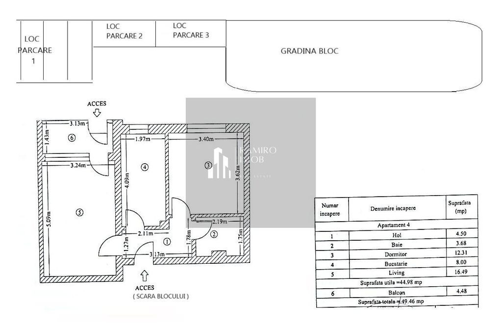
Numărul de locuri de parcare 3

Ansamblu Rezidențial Nu

Posibilitate parcare Da

Stare proprietate Bună

Tip tranzacție Vânzare

Tip vânzător Companie

Va prezentam un apartament bine compartimentat,  finisat modern,  mobilat si utilat.

Apartamentul este decomandat, are 50mp utili, este situat la Parter inalt.  
Are Centrala de apartament.
Balcon spatios inchis cu acces in apartament din parcare prin usa balcon. 
Blocul cu 4 etaje si este dat in folosinta in 2019.

Situat pe Soseaua Oltenitei,  in Popesti Leordeni,  Primaria este la 2 statii de Stb departare.

In fata balconului proprietarul detine 3 locuri de parcare. 
Unul pe la mijlocul parcarii si 2 la marginea cu gradina blocului.
Pentru ca sunt pe lung si avea nevoie de acces cimentat pentru auto, acum beneficiaza la iesirea din apartament de o adevarata curte proprie cu loc de petrecut timpul in aer liber. 
Are si o rulota in stare buna parcata.

In pretul afisat este inclus 1 loc de parcare.  
Cele 2 locuri de parcare de langa gradina si rulota se negociaza separat.

In acest moment, la pretul cerut, este o oferta excelenta pentru viitorul cumparator.
Se acceptă si achiziția prin credit bancar.
Pentru mai multe detalii - Cornel -0770 280 100

Agentia Imobiliara – Ramiro Imob
Comision Standard
Oferim suport în relația cu banca, cu acces la cele mai bune oferte de finanțare, precum și asistență in relatia cu notariatul.

Solicită vizionarea proprietății

Alege o zi disponibilă

22 Martie
23 Martie
24 Martie
25 Martie

Alege un interval orar

8:00 - 12:00
12:00 - 15:00
15:00 - 18:00
18:00 - 21:00

Următoarele date de contact oferite de tine vor fi accesibile proprietarului:

Locație

Contactează utilizatorul

ID: 4147867

Apartament 2camere decomandat 50mp Popesti Leordeni -Sose...

2 camere | 50 m² | Bucuresti-Ilfov / Popesti Leordeni

97.990 €