BLITZ Romania

Consultant imobiliar

Vânzare

3 camere | 71 m²

Apartament 3 camere, 2 bai, 0 comision, TERRA Oasului

Cluj / Cluj-Napoca
132.663 €

Rată estimată

2.856 Lei/lună

Avans (15%)

98.900 lei

Perioada împrumutului

30 ani

Specificații

Număr camere 3

Suprafața utilă 71 m²

Compartimentare Semidecomandat

An finalizare construcție 2026

Tip imobil Bloc apartamente

Niveluri imobil 3

Număr Băi 2

Nu include TVA Da

Etaj 3

Stare proprietate În construcție

Mobilat și Utilat Nemobilat

Confort 1

Tip tranzacție Vânzare

Tip vânzător Companie

Blitz va prezinta un apartament cu 3 camere în Terra Gardens, Cluj-Napoca 

Locuințe moderne într-un ansamblu exclusivist cu acces privat, compus din case și blocuri cu regim redus de înălțime – o alegere ideală pentru familii sau investiție sigură.

Parcări subterane disponibile (10.000 € TVA INCLUS)
Plata se face conform LEGII NORDIS:
- 5% la faza incipienta 
- 25% la finalizarea structurii
- 20% la finalizarea instalatiilor
- 50% la contractul final prin surse proprii sau credit ipotecar.
Termen de finalizare: decembrie 2026

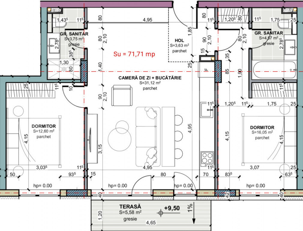
 Exemplu disponibil – Etaj 3:
	•	Suprafață utilă 71,71 mp
	•	2 dormitoare, 2 băi
	•	Living generos + bucatarie
	•	Un balcon
	•	Predare la stadiul de semifinisat – 2 mâini de glet, șapă, instalații trase pe poziții
	•	Încălzire în pardoseală
	•	Centrală termică smart pe bloc

PRETURILE AFISATE NU CONTIN TVA!!!!
Cod ofertă / ID BLITZ: P156642
Id intern: P156642

Solicită vizionarea proprietății

Alege o zi disponibilă

29 Mai
30 Mai
31 Mai
01 Iunie

Alege un interval orar

8:00 - 12:00
12:00 - 15:00
15:00 - 18:00
18:00 - 21:00

Următoarele date de contact oferite de tine vor fi accesibile proprietarului:

Locație

Despre zona "Iris"

păreri exprimate de 78 de utilizatori, pe o scară de la 1 la 10

Află clasamentul acestui cartier
Sănătate și Siguranță

Sănătate și Siguranță

6.8

Sănătate 6.2

Siguranță 7.7

Calitate aer 7.0

Curățenie 7.0

Zone verzi 6.0

Cultură și Educație

Cultură și Educație

5.8

Cultură 4.8

Educație 6.2

Sport 6.4

Ambianță și Lifestyle

Ambianță și Lifestyle

6.7

Nivel de trai 7.4

Magazine 7.1

Localuri 5.3

Parcări 6.2

Zgomot 7.3

Transport în comun

Transport în comun

7.6

Autobuz 7.4

Tramvai 7.7

Metrou 0.0

Contactează utilizatorul

ID: 4077530

Apartament 3 camere, 2 bai, 0 comision, TERRA Oasului

3 camere | 71 m² | Cluj / Cluj-Napoca

132.663 €


Vezi și alte anunțuri imobiliare
Apartamente vânzare Cluj-napoca-cj - Aeroport Case-vile vânzare Cluj-napoca-cj - Aeroport Garsoniere vânzare Cluj-napoca-cj - Aeroport Terenuri vânzare Cluj-napoca-cj - Aeroport Apartamente vânzare Cluj-napoca-cj - Andrei Muresanu Case-vile vânzare Cluj-napoca-cj - Andrei Muresanu Garsoniere vânzare Cluj-napoca-cj - Andrei Muresanu Terenuri vânzare Cluj-napoca-cj - Andrei Muresanu Apartamente vânzare Cluj-napoca-cj - Apahida Case-vile vânzare Cluj-napoca-cj - Apahida Garsoniere vânzare Cluj-napoca-cj - Apahida Terenuri vânzare Cluj-napoca-cj - Apahida