Florica Snop

Consultant imobiliar

Vânzare

3 camere | 67 m²

Apartament 3 camere parcare si bloc cu lift Doamna Stanca Si

Sibiu / Sibiu
129.900 €

Rată estimată

2.846 Lei/lună

Avans (15%)

96.840 lei

Perioada împrumutului

30 ani

Specificații

Număr camere 3

Suprafața utilă 67 m²

Compartimentare Decomandat

Confort 1

An finalizare construcție 2015

Tip imobil Bloc apartamente

Niveluri imobil 5

Număr Băi 1

Numărul de locuri de parcare 1

Comision cumpărător 2%

Etaj 5

Stare proprietate Bună

Mobilat și Utilat Complet

Tip tranzacție Vânzare

Tip vânzător Companie

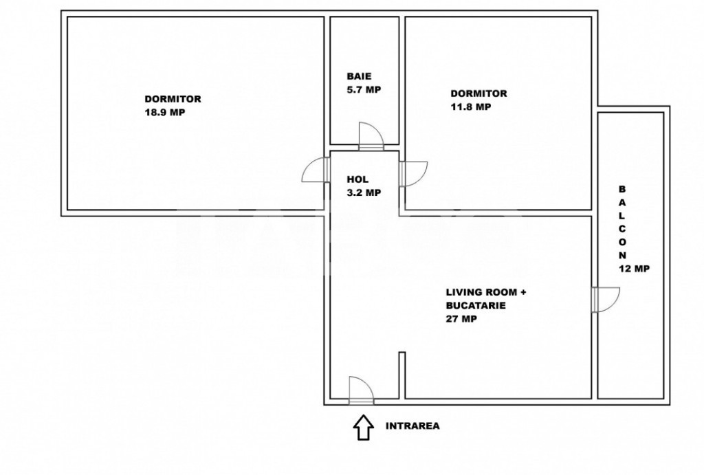
Apartament 3 camere de vanzare, decomandat, 67 mp, zona Doamna Stanca, Sibiu. 
Apartament luminos si spatios, modern amenajat. Zona in care este amplasat acest apartament este una foarte bine cotata pe piata imobiliara, oferind locatarilor numeroase beneficii si acces facil catre numeroase obiective de interes public precum: magazine, restaurante, institutii bancare si numeroase locuri de munca din zona Shopping City.

 Avantaje majore ale acestui apartament:
• Un loc de parcare inclus in pret
• Pretabil investitie sigura - bloc cu lift
• Orientare spre Soare 
• Locatie ferita de aglomeratie - bloc retras de la strada principala

 TABOO Imobiliare propune un apartament de vanzare cu 3 camere, decomandat, situat in localitatea Sibiu, zona Doamna Stanca, aflat la etajul 5 intr -un imobil tip bloc cu regim de inaltime pe Parter + 5 Etaje; anul constructiei 2015, structura caramida. Suprafata utila de 67 mp + balcon deschis de 12 mp.

 Apartamentul este structurat astfel: 
• Hol; 
• Bucatarie; 
• Baie; 
• Living cu balcon; 
• Dormitor cu balcon;
• Dormitor
• Hol intermediar;

 Finisajele interioare sunt moderne:
• Usa intrare: metal; 
• Usi interioare: celulare;
• Tamplarie ferestre: pvc, termopan;
• Pereti: vopsea lavabila, faianta, tapet; 
• Podele: parchet, gresie. 

 Utilitati si dotari: 
• Bucatarie: mobilata, utilata;
• Mobilat: complet;
• Utilitati: curent electric, apa, canalizare, gaz, catv, telefon, acces internet, fibra optica; 
• Izolatii: exterior, bloc izolat termic; 
• Contorizare: apometre, contor gaz, contor curent electric, contorizare separata; 
• Caracteristici bloc: interfon, lift, acoperis. 

 Apartamentul se vinde mobilat si utilat cu: plita pe gaz, cuptor, hota, masina de spalat rufe, uscator rufe, masina de spalat vase, frigider cu congelator.
 Incalzirea se realizeaza prin centrala proprie, calorifere si dispune de sistem de climatizare (A.C.)

 Se accepta ca si modalitate de plata surse proprii sau credit bancar.
 
Pret: 129.900€
Cod ofertă / ID: P25261
Sună-ne acum la 0784.530.613 și află detalii despre această proprietate de vanzare din Sibiu, dar și despre alte proprietăți potrivite pentru tine.


Informatii speciale:
1. Descarcă aplicația pe mobilul tau "TABOO Imobiliare" din Apple Store, Google Play sau Huawei AppGallery pentru a afla instantaneu noile proprietăți care intră pe piață.
2. Dacă ai o proprietate pe care vrei să o vinzi sau să o închiriezi, suntem aici pentru tine!
Contactează-ne pentru o evaluare gratuită fără obligații și vei descoperi avantajele de a lucra cu o echipă dedicată și experimentată.
3. Dacă vrei sa incepi o cariera de agent imobiliar, suna la 0784.530.613 si programeaza o intalnire pentru a afla toate beneficiile si avantajele.

Intră pe TABOO.ro și descoperă cele mai recente oferte, actualizate zilnic.
Anunt actualizat in 19 decembrie 2025.
Id intern: P25261

Solicită vizionarea proprietății

Alege o zi disponibilă

27 Decembrie
28 Decembrie
29 Decembrie
30 Decembrie

Alege un interval orar

8:00 - 12:00
12:00 - 15:00
15:00 - 18:00
18:00 - 21:00

Următoarele date de contact oferite de tine vor fi accesibile proprietarului:

Locație

Despre zona "Mihai Viteazul"

păreri exprimate de 123 de utilizatori, pe o scară de la 1 la 10

Află clasamentul acestui cartier
Sănătate și Siguranță

Sănătate și Siguranță

7.4

Sănătate 7.2

Siguranță 8.2

Calitate aer 7.2

Curățenie 7.5

Zone verzi 7.0

Cultură și Educație

Cultură și Educație

7.3

Cultură 7.0

Educație 7.7

Sport 7.2

Ambianță și Lifestyle

Ambianță și Lifestyle

7.3

Nivel de trai 7.6

Magazine 8.0

Localuri 7.8

Parcări 6.2

Zgomot 6.8

Transport în comun

Transport în comun

8.1

Autobuz 8.1

Tramvai 0.0

Metrou 0.0

Contactează utilizatorul

ID: 4071728

Apartament 3 camere parcare si bloc cu lift Doamna Stanca Si

3 camere | 67 m² | Sibiu / Sibiu

129.900 €


Vezi și alte anunțuri imobiliare
Apartamente vânzare Sibiu-sb - Aeroport Case-vile vânzare Sibiu-sb - Aeroport Garsoniere vânzare Sibiu-sb - Aeroport Terenuri vânzare Sibiu-sb - Aeroport Apartamente vânzare Sibiu-sb - Broscarie Case-vile vânzare Sibiu-sb - Broscarie Garsoniere vânzare Sibiu-sb - Broscarie Terenuri vânzare Sibiu-sb - Broscarie Apartamente vânzare Sibiu-sb - Calea Cisnadiei Case-vile vânzare Sibiu-sb - Calea Cisnadiei Garsoniere vânzare Sibiu-sb - Calea Cisnadiei Terenuri vânzare Sibiu-sb - Calea Cisnadiei