Vânzări
Închirieri
Vânzare Apartament 3 camere, Central

Apartament 3 Camere decomandat în Giroc

108.000 eur
ID 3955981
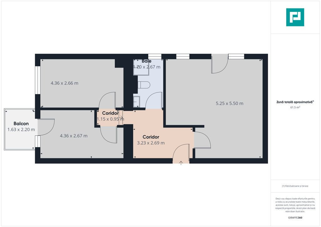
Apartamente | 64 m² | 3 camere
Giroc, Timis / Central
Zona Central
Număr camere 3
Suprafața utilă 64 m²
Compartimentare Decomandat
Confort 1
Etaj parter
An finalizare construcție 2023
Tip imobil Bloc de apartamente
Stare proprietate Nouă
Număr niveluri imobil 3
Număr Băi 2
Mobilat/Utilat Nemobilat
Posibilitate parcare Da
Nr. locuri parcare 1
 Preț negociabil

Vă prezentăm un apartament cu 3 camere situat la parterul unui bloc modern cu 3 etaje și lift, în Giroc. Apartamentul beneficiază de o compartimentare decomandată și este situat într-o zonă excelentă, aproape de centrele comerciale, oferind confort și accesibilitate.

Caracteristici principale:

3 Camere: Apartament decomandat, ideal pentru familii sau pentru cei care doresc mai mult spațiu.
Baie cu duș: Echipată modern pentru un plus de confort.
Bucătărie open space: Spațioasă și luminoasă, perfectă pentru gătit și socializare.
Hol de trecere: Funcțional și bine organizat.
Balcon: Ideal pentru relaxare sau spațiu de depozitare suplimentar.
Centrală proprie: Asigură independență și eficiență energetică.
Încălzire prin pardoseală: Confort termic superior în întregul apartament.
Avantaje suplimentare:

Lift: Acces facil pentru toate etajele blocului.
Parc de joacă pentru copii: Apropierea de un parc de joacă este ideală pentru familiile cu copii.
Zonă excelentă: Situat aproape de centre comerciale, facilitând accesul la cumpărături și alte servicii.

Nu ratați ocazia de a vă muta într-un apartament modern și confortabil, într-o zonă de top din Giroc!
Pentru mai multe informații și pentru a programa o vizionare, vă rugăm să ne contactați.

Daniela Ianc - consultant imobiliar PropertyLab
Telefon: 0722375289
mail: [email protected]
CP 2333337

Solicită vizionarea proprietății

Apartament 3 Camere decomandat în Giroc

Vizionare
Alege o dată disponibilă:
Marți
24 Martie
Miercuri
25 Martie
Joi
26 Martie
Vineri
27 Martie
Anulează
success
Solicitarea ta a fost trimisă cu succes!
Vei fi contactat de către proprietar în cel mai scurt timp posibil.
Contactează utilizatorul
Apartament 3 Camere decomandat în Giroc
Daniela Ianc Consultant imobiliar PROPERTY LAB - ARAD
07xx - AFIŞEAZĂ
ID 3955981
Anunțuri similare
Număr de telefon verificat
159.430 eur Apartament cu 3 camere de vânzare și parcare, bloc nou,...
3 camere  •  73 m²  •  etajul 1/3  •  2024  •  decomandat
Construcţie nouă
Giroc, TM, Central
azi, 04:53
Distribuie anunțul Adaugă la favorite
Număr de telefon verificat
133.000 eur Apartament cu 3 camere în Giroc
3 camere  •  73 m²  •  etajul 1/3  •  2024  •  decomandat
Construcţie nouă
Giroc, TM, Central
azi, 04:33
Distribuie anunțul Adaugă la favorite
Număr de telefon verificat
119.000 eur Apartament cu 3camere mobilat la etaj intermediar, in Gir...
3 camere  •  65 m²  •  etajul 2/3  •  2017  •  semidecomandat
Construcţie nouă
Giroc, TM, Central
azi, 03:06
Distribuie anunțul Adaugă la favorite
Număr de telefon verificat
128.000 eur Penthouse cu scara interioara deosebita, 3 camere si 2 ba...
3 camere  •  77 m²  •  etajul 3/3  •  2023  •  semidecomandat
Construcţie nouă
Giroc, TM, Central
azi, 03:03
Distribuie anunțul Adaugă la favorite
Vrei sa vinzi simplu si rapid?
Termenii și condițiile de pe site au fost actualizate. Detaliile complete sunt disponibile aici