BLITZ Romania

Consultant imobiliar

Vânzare

4 camere | 115 m²

Apartament 4 camere, 115 mp, Ansamblu Rezidential, Zorilor

Cluj / Cluj-Napoca
346.896 €

Rată estimată

7.600 Lei/lună

Avans (15%)

258.611 lei

Perioada împrumutului

30 ani

Specificații

Număr camere 4

Suprafața utilă 115 m²

Compartimentare Decomandat

Niveluri imobil 15

Număr Băi 2

Numărul de locuri de parcare 2

Etaj 12

Stare proprietate Bună

Mobilat și Utilat Nemobilat

Tip imobil Bloc apartamente

Confort 1

Tip tranzacție Vânzare

Tip vânzător Companie

An finalizare construcție 2021

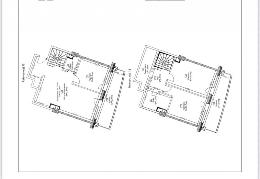
Apartament duplex, 4 camere, 115 mp utili + 24,8 mp balcoane – semifinisat, Zorilor, ansamblu rezidențial modern

Vă prezentăm un apartament tip duplex, cu 4 camere, situat la etajele 12 și 13 ale unui imobil nou, într-un ansamblu rezidențial din cartierul Zorilor. Locuința se predă semifinisată, oferindu-vă posibilitatea de a o amenaja după propriul stil și preferințe.

Suprafață totală:
	•	115 mp utili
	•	24,8 mp balcoane (distribuite pe ambele niveluri)

Compartimentare:

Etaj 12:
	•	Living generos cu bucătărie open space
	•	Dormitor
	•	Baie
	•	Balcon

Etaj 13:
	•	Două dormitoare
	•	Hol
	•	Baie
	•	Spațiu de depozitare
	•	Balcon

Avantaje:
	•	Compartimentare practică și luminoasă
	•	Priveliște panoramică asupra orașului
	•	Ansamblu rezidențial modern cu acces controlat
	•	Lift, locuri de parcare disponibile
	•	Aproape de magazine, transport public, școli, zone verzi

Locuința este ideală pentru o familie sau pentru investiție, într-o zonă în continuă dezvoltare.

Pentru mai multe detalii sau programarea unei vizionări, vă rugăm să ne contactați!
Cod ofertă / ID BLITZ: P146376
Id intern: P146376

Solicită vizionarea proprietății

Alege o zi disponibilă

07 Decembrie
08 Decembrie
09 Decembrie
10 Decembrie

Alege un interval orar

8:00 - 12:00
12:00 - 15:00
15:00 - 18:00
18:00 - 21:00

Următoarele date de contact oferite de tine vor fi accesibile proprietarului:

Locație

Despre zona "Zorilor"

păreri exprimate de 135 de utilizatori, pe o scară de la 1 la 10

Află clasamentul acestui cartier
Sănătate și Siguranță

Sănătate și Siguranță

8.0

Sănătate 8.0

Siguranță 8.6

Calitate aer 7.9

Curățenie 8.0

Zone verzi 7.5

Cultură și Educație

Cultură și Educație

6.9

Cultură 5.5

Educație 7.7

Sport 7.5

Ambianță și Lifestyle

Ambianță și Lifestyle

7.3

Nivel de trai 8.0

Magazine 7.7

Localuri 7.4

Parcări 6.0

Zgomot 7.4

Transport în comun

Transport în comun

6.9

Autobuz 8.6

Tramvai 5.2

Metrou 0.0

Contactează utilizatorul

ID: 3983141

Apartament 4 camere, 115 mp, Ansamblu Rezidential, Zorilor

4 camere | 115 m² | Cluj / Cluj-Napoca

346.896 €


Vezi și alte anunțuri imobiliare
Apartamente vânzare Cluj-napoca-cj - Aeroport Case-vile vânzare Cluj-napoca-cj - Aeroport Garsoniere vânzare Cluj-napoca-cj - Aeroport Terenuri vânzare Cluj-napoca-cj - Aeroport Apartamente vânzare Cluj-napoca-cj - Andrei Muresanu Case-vile vânzare Cluj-napoca-cj - Andrei Muresanu Garsoniere vânzare Cluj-napoca-cj - Andrei Muresanu Terenuri vânzare Cluj-napoca-cj - Andrei Muresanu Apartamente vânzare Cluj-napoca-cj - Apahida Case-vile vânzare Cluj-napoca-cj - Apahida Garsoniere vânzare Cluj-napoca-cj - Apahida Terenuri vânzare Cluj-napoca-cj - Apahida