Bianca Lungu

Consultant imobiliar

Vânzare

4 camere | 80 m²

Apartament 4 camere-Astra

Brasov / Brasov
149.000 €

Rată estimată

3.208 Lei/lună

Avans (15%)

111.080 lei

Perioada împrumutului

30 ani

Specificații

Număr camere 4

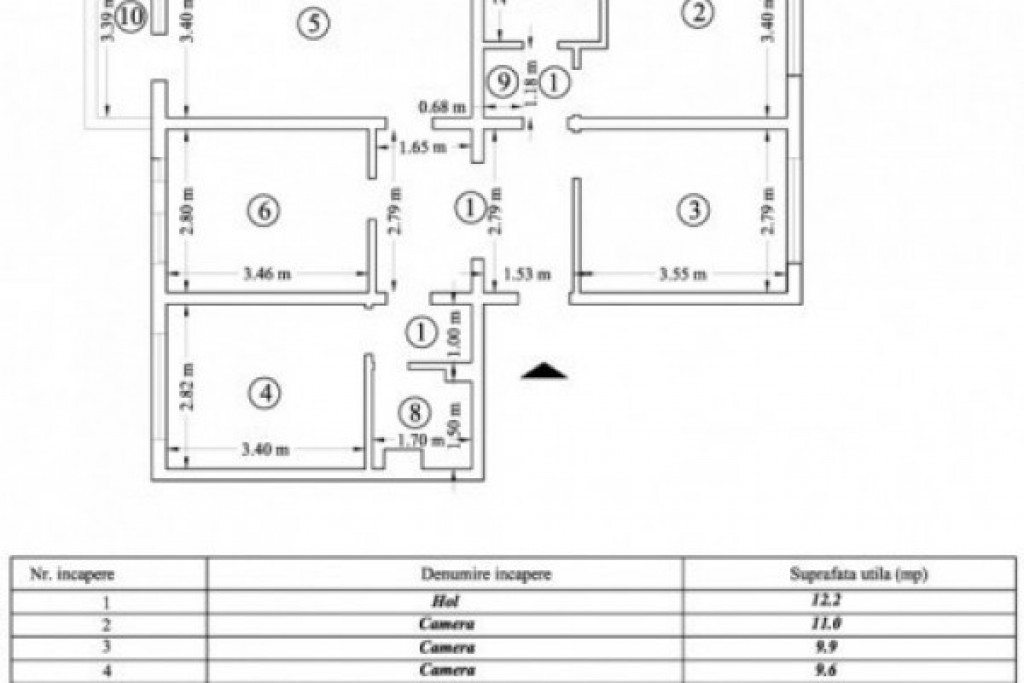
Suprafața utilă 80 m²

Compartimentare Decomandat

Confort 1

An finalizare construcție 1980

Tip imobil Bloc apartamente

Niveluri imobil 4

Număr Băi 2

Comision cumpărător 0%

Etaj 1

Stare proprietate Bună

Mobilat și Utilat Nemobilat

Tip tranzacție Vânzare

Tip vânzător Companie

Vă propunem spre vânzare un apartament deosebit, cu 4 camere, decomandat, având o suprafață totala de 80.2 mp, situat in zona Astra in apropiere de Liceul Silvic,  cu acces rapid către multe puncte de interes.

Imobilul se află la etajul 1 din 4, într-un bloc solid, reabilitat.

Apartamentul necesita renovare si beneficiaza de logie inchisa si centrala proprie.

Zona este liniștită și bine conectată la mijloacele de transport în comun, iar în apropiere se regăsesc magazine, restaurante, terase și parcuri, ceea ce asigură un stil de viață modern și confortabil.

Daca apreciati aceasta oferta sau pentru alte informatii sunati la numarul de contact din anunt! 
Ne dorim sa iti oferim cea mai placuta experienta pentru descoperirea  proprietatii ideale!

Clarificari aditionale:
Informatiile tehnice au caracter orientativ, ele fiind preluate de la proprietari.

Id intern: P234224

Solicită vizionarea proprietății

Alege o zi disponibilă

17 Aprilie
18 Aprilie
19 Aprilie
20 Aprilie

Alege un interval orar

8:00 - 12:00
12:00 - 15:00
15:00 - 18:00
18:00 - 21:00

Următoarele date de contact oferite de tine vor fi accesibile proprietarului:

Locație

Despre zona "Astra"

păreri exprimate de 412 de utilizatori, pe o scară de la 1 la 10

Află clasamentul acestui cartier
Sănătate și Siguranță

Sănătate și Siguranță

7.7

Sănătate 7.6

Siguranță 8.0

Calitate aer 7.4

Curățenie 7.6

Zone verzi 7.8

Cultură și Educație

Cultură și Educație

7.1

Cultură 6.1

Educație 8.1

Sport 7.0

Ambianță și Lifestyle

Ambianță și Lifestyle

7.4

Nivel de trai 7.3

Magazine 8.3

Localuri 7.3

Parcări 7.0

Zgomot 7.3

Transport în comun

Transport în comun

8.4

Autobuz 8.4

Tramvai 0.0

Metrou 0.0

Contactează utilizatorul

ID: 4119197

Apartament 4 camere-Astra

4 camere | 80 m² | Brasov / Brasov

149.000 €


Vezi și alte anunțuri imobiliare
Apartamente vânzare Brasov-bv - 13 Decembrie Case-vile vânzare Brasov-bv - 13 Decembrie Garsoniere vânzare Brasov-bv - 13 Decembrie Terenuri vânzare Brasov-bv - 13 Decembrie Apartamente vânzare Brasov-bv - 15 Noiembrie Case-vile vânzare Brasov-bv - 15 Noiembrie Garsoniere vânzare Brasov-bv - 15 Noiembrie Terenuri vânzare Brasov-bv - 15 Noiembrie Apartamente vânzare Brasov-bv - Astra Case-vile vânzare Brasov-bv - Astra Garsoniere vânzare Brasov-bv - Astra Terenuri vânzare Brasov-bv - Astra