Daniel Kara

Consultant imobiliar

Vânzare

5+ camere | 146 m²

Apartament- casa 146mp 7camere Bulevadul Marasesti -locui...

Bucuresti-Ilfov / Bucuresti
199.000 €

Rată estimată

4.285 Lei/lună

Avans (15%)

148.355 lei

Perioada împrumutului

30 ani

Specificații

Preț negociabil Da

Suprafața utilă 146 m²

Număr camere 5+

Tip imobil Casă / Vilă

Compartimentare Semidecomandat

Număr Băi 3

Etaj Parter

Niveluri imobil 1

An finalizare construcție 1940

Confort 1

Ansamblu Rezidențial Nu

Posibilitate parcare Nu

Stare proprietate Bună

Tip tranzacție Vânzare

Tip vânzător Companie

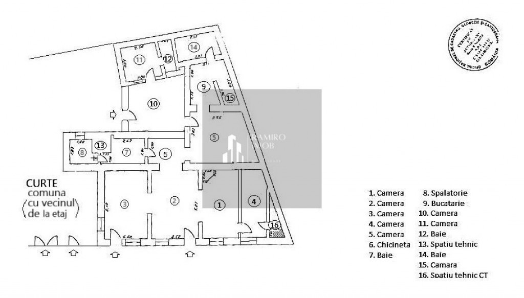
Va prezentam un spatiu deosebit, spatios si accesibil, pretabil pentru activitate comerciala datorita accesului direct din Bulevardul Marasesti

Spatiul este potrivit si pentru utilizare mixta, o parte rezidential - o parte comercial (birouri/servicii), si reprezinta parterul unei case P+1, cu o curte comuna cu vecinul de la etaj.


Zona este ultracentrala, la cateva minute de centrul orasului, langa Fantana Zodiac, in apropiere Tineretului, Parcul Carol, Bulevardul Cantemir, Piata Unirii, Centrul Vechi.

10 minute de mers pe jos pana la statia de metrou Unirii.


Casa este solid construita, renovata, acoperisul in stare perfecta, curtea foarte bine intretinuta, proprietatea poate fi cumparata si cu credit bancar.


Centrala proprie, interior renovat, partial mobilat.


Nu ratati ocazia de a cumpara acest apartament spatios la parterul unei case solide, perfect pentru utilizare comerciala, situata într-o zona ultracentrala, cu toate facilitatile la îndemana !

Pentru mai multe detalii, vizionări sau oferte similare, contactați-mă!  Daniel K. 0749080500

Comision standard

Oferim suport complet în relația cu banca, cu acces la cele mai bune oferte de finanțare, precum și asistență notarială la cele mai bune prețuri.

Solicită vizionarea proprietății

Alege o zi disponibilă

09 Aprilie
10 Aprilie
11 Aprilie
12 Aprilie

Alege un interval orar

8:00 - 12:00
12:00 - 15:00
15:00 - 18:00
18:00 - 21:00

Următoarele date de contact oferite de tine vor fi accesibile proprietarului:

Locație

Despre zona "Marasesti"

păreri exprimate de 10 de utilizatori, pe o scară de la 1 la 10

Află clasamentul acestui cartier
Sănătate și Siguranță

Sănătate și Siguranță

6.8

Sănătate 7.1

Siguranță 7.3

Calitate aer 6.0

Curățenie 7.1

Zone verzi 6.4

Cultură și Educație

Cultură și Educație

6.6

Cultură 6.7

Educație 6.9

Sport 6.2

Ambianță și Lifestyle

Ambianță și Lifestyle

6.5

Nivel de trai 7.3

Magazine 6.7

Localuri 7.1

Parcări 5.8

Zgomot 5.6

Transport în comun

Transport în comun

6.5

Autobuz 6.5

Tramvai 6.3

Metrou 6.8

Contactează utilizatorul

ID: 4157769

Apartament- casa 146mp 7camere Bulevadul Marasesti -locui...

5+ camere | 146 m² | Bucuresti-Ilfov / Bucuresti

199.000 €