Vânzări
Închirieri
Vânzare Apartament 2 camere, Central

Apartament cu 2 camere | Bloc Nou | Terasa 45mp | Finisat...

107.400 eur
ID 4051788
Apartamente | 52 m² | 2 camere
Chisoda, Timis / Central
Zona Central
Număr camere 2
Suprafața utilă 52 m²
Compartimentare Semidecomandat
Confort 1
Etaj 3
An finalizare construcție 2025
Tip imobil Bloc de apartamente
Stare proprietate Bună
Număr niveluri imobil 3
Număr Băi 1
Mobilat/Utilat Nemobilat
Posibilitate parcare Da
Nr. locuri parcare 1
 Preț negociabil
 Nu include TVA

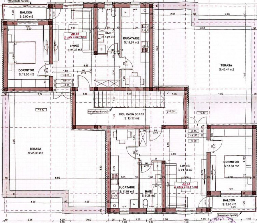
APOSTU ESTATE va propune spre vanzare, un apartament cu 2 camere in bloc nou, situat in Chisoda in zona pizzeriei Gioco, cu predare cel tarziu in luna ianuarie a anului 2026, aflat la etajul 3 retras al unui imobil cu 2E + 1E retras.

Apartamentul este semidecomandat si are o suprafata utila de 52mp compartimentata astfel:
- 1 dormitor
- 1 living
- 1 bucatarie inchisa
- 1 baie cu geam
- 1 terasa de 45mp, cu posibilitate de transformare in camera, existand utilitati pe pozitie, inclusiv incalzirea prin pardoseala
- 1 balcon de 3.9mp.

Confortul termic este asigurat prin intermediul centralei termice proprii, cu ajutorul incalzirii prin pardoseala.

Imobilul este dotat cu geamuri tripane si tamplarie Salamander.

Caramida zidurilor exterioare este de o grosime de 30cm, Porotherm, cu izolatie din vata bazaltica de 10cm.

Zidurile interioare dintre apartamente si casa scarii sunt facute din caramida de 25cm cu izolatie din burete antifonic.

Exista posibilitatea alegerii finisajelor, precum culoarea parchetului, culoarea gresiei si faiantei, usi, mobilier si utilitati baie, prin buget fix prestabilit, cu posibilitate de extindere buget pentru alte dorinte, suportat de catre cumparator.

Imobilul este construit de catre un dezvoltator imobiliar cu renume si recenzii foarte bune, se poate verifica calitatea lucrarilor anterioare.

Pretul afisat in anunt este aplicat in cazul platii integrale, iar in cazul unei plati prin credit bancar sau in 2 transe, pretul este de 150.000eur negociabil.

Nu ezitati sa ne contactati pentru stabilirea unei vizionari sau alte detalii suplimentare.

Solicită vizionarea proprietății

Apartament cu 2 camere | Bloc Nou | Terasa 45mp | Finisat...

Vizionare
Alege o dată disponibilă:
Marți
24 Martie
Miercuri
25 Martie
Joi
26 Martie
Vineri
27 Martie
Anulează
success
Solicitarea ta a fost trimisă cu succes!
Vei fi contactat de către proprietar în cel mai scurt timp posibil.
  • Staţii de autobuz Distanţă
  • Staţie autobuz 1.9 kilometri
  • Staţie autobuz 2.1 kilometri
  • Staţie autobuz 2.1 kilometri
  • Staţii de tren Distanţă
  • CFR Timișoara Sud 1.5 kilometri
Contactează utilizatorul
Apartament cu 2 camere | Bloc Nou | Terasa 45mp | Finisat...
Septimiu Harau Consultant imobiliar Apostu Imobiliare
07xx - AFIŞEAZĂ
ID 4051788
Anunțuri similare
Număr de telefon verificat
105.000 eur Apartament 2 camere pe parter, central Chisoda
2 camere  •  49 m²  •  parter/2  •  2023  •  semidecomandat
Construcţie nouă
Chisoda, TM, Central
18 mar.
Distribuie anunțul Adaugă la favorite
Număr de telefon verificat
130.000 eur Apartament 2 camere Chisoda 52mp cu terasa MARE 45MP
2 camere  •  52 m²  •  etajul 3/3  •  2025  •  semidecomandat
Construcţie nouă
Chisoda, TM, Central
17 mar.
Distribuie anunțul Adaugă la favorite
Număr de telefon verificat
88.000 eur Apartament 2 camere, 52 mp utili – mobilat complet, zona C
2 camere  •  51 m²  •  etajul 2/2  •  2014  •  decomandat
Chisoda, TM, Central
16 mar.
Distribuie anunțul Adaugă la favorite
Număr de telefon verificat
89.000 eur Apartament de 2 camera, decomandat, 71mp, zona Giroc
2 camere  •  71 m²  •  etajul 3/3  •  2023  •  semidecomandat
Construcţie nouă
Chisoda, TM, Central
11 mar.
Distribuie anunțul Adaugă la favorite
Vrei sa vinzi simplu si rapid?
Termenii și condițiile de pe site au fost actualizate. Detaliile complete sunt disponibile aici