Marius Coprean

Consultant imobiliar

Vânzare

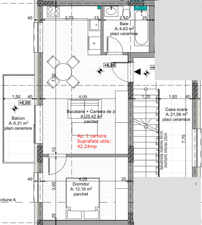
2 camere | 42 m²

Apartament cu 2 camere, finisat, zona Cetatii

Cluj / Floresti
90.705 €

Rată estimată

1.953 Lei/lună

Avans (15%)

67.621 lei

Perioada împrumutului

30 ani

Specificații

Număr camere 2

Suprafața utilă 42 m²

Compartimentare Semidecomandat

Confort 1

Etaj 1

An finalizare construcție 2026

Tip imobil Bloc apartamente

Stare proprietate Nouă

Niveluri imobil 4

Număr Băi 1

Mobilat și Utilat Nemobilat

Comision cumpărător 2%

Posibilitate parcare Da

Numărul de locuri de parcare 0

Ansamblu Rezidențial Da

Tip tranzacție Vânzare

Tip vânzător Companie

Ofertă excepțională situată într-o zonă cu potențial, în ansamblul rezidențial nou, pe Strada Cetății, Florești. Imobilul este certificat NZEB (Near Zero Energy Building), garantând eficiență energetică maximă și costuri reduse la întreținere.EDIL Florești oferă spre vânzare un apartament cu 2 camere, situat la etajul 2 din 4, într-un bloc dotat cu lift. Apartamentul este confort 1 semidecomandat, cu o suprafață utilă de 45 mp și orientare Vest. Se predă complet finisat cu materiale premium, incluzând faiantă și gresie modernă, parchet laminat. Beneficiază de centrală proprie cu pompă de căldură pentru încălzire în pardoseală și funcție de răcire, asigurând confort optim pe tot parcursul anului. Dispune de un balcon generos.Compartimentare: hol intrare, living cu bucătărie open space, dormitor, baie.Ansamblul este amplasat în apropiere de Carrefour, Profi, Mega Image și stații de autobuz. Beneficiază de 3000 mp spații verzi amenajate, incluzând mau multe parcuri de joacă, lift și interfon. La parterul primului bloc va funcționa și un spațiu comercial.Dacă vă interesează această ofertă sau pentru alte opțiuni de apartamente ( 2, 3 camere) în acest proiect, nu ezitați să ne contactați telefonic sau la sediul nostru: EDIL Florești, Str. Eroilor, Nr. 25, Ap. 15 (et. 1), Florești. APCJ246779

Solicită vizionarea proprietății

Alege o zi disponibilă

09 Aprilie
10 Aprilie
11 Aprilie
12 Aprilie

Alege un interval orar

8:00 - 12:00
12:00 - 15:00
15:00 - 18:00
18:00 - 21:00

Următoarele date de contact oferite de tine vor fi accesibile proprietarului:

Locație

Contactează utilizatorul

ID: 4059002

Apartament cu 2 camere, finisat, zona Cetatii

2 camere | 42 m² | Cluj / Floresti

90.705 €