Ureche Pavel

Consultant imobiliar

Vânzare

2 camere | 40 m²

Apartament cu 2 camere si gradina zona Lacul lui Binder

Sibiu / Sibiu
88.950 €

Rată estimată

1.949 Lei/lună

Avans (15%)

66.312 lei

Perioada împrumutului

30 ani

Specificații

Consum total de energie primară 0

Indicele de emisii echivalent CO2 0

Consum total din surse regenerabile 0

Număr camere 2

Număr Băi 1

Suprafața utilă 40 m²

Compartimentare Decomandat

Confort 1

An finalizare construcție 2025

Nu include TVA Nu

Niveluri imobil 4

Posibilitate parcare Da

Numărul de locuri de parcare 1

Tip imobil Bloc apartamente

Stare proprietate Bună

Etaj Parter

Tip tranzacție Vânzare

Tip vânzător Companie

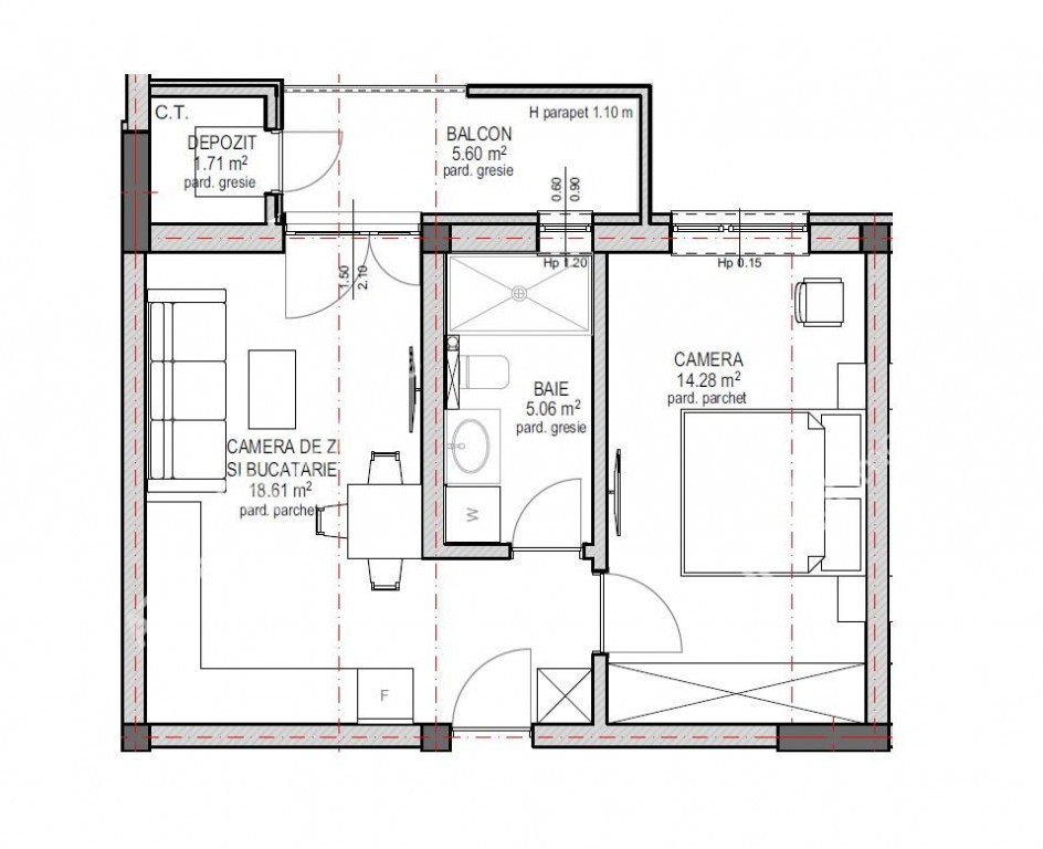
De vanzare in Sibiu zona Lacul lui Binder apartament cu 2 camere, balcon camara si gradina proprie de 36 mp, in suprafata totala de 54.83 mp, pozitionat la parterul inalt al unui imobil constructie noua 2025 care dispune de 2 lifturi, curte interioara si locuri private de parcare.
Locuinta in suprafata de 39.66 mp este alcatuita dintr-un living open space cu bucataria de 18.61 mp, dormitorul spatios de 14.28 mp si baia 5.60 mp dotata cu cada si geam pentru aerisirea naturala.
Separat de suprafata utila apartamentul beneficiaza si de un balcon in suprafata de 5.60 mp, o camara de 1.71 mp si o gradina imprejmuita de 36 mp cu acces direct din apartament.
Parcarea se realizeaza pe propriul loc de parcare amenajat in fata imobilului.
Finisaje standard:
- Usa de metal la intrarea icirc;n apartamente placate cu panou MDF;
- Pereti tencuiti (tencuieli pe baza de var-ciment), gletuiti si zugraviti in lavabila alba;
- tamplarie PVC cu geam termopan 5 camere si 3 foi de sticla, glafuri interior-exterior;
- incalzire prin pardoseala, centrala termica proprie in condensatie si detector gaz.
- sisteme elecrice din cupru trase prin copex cu tablou general si sigurante pentru consumatorii de putere marca Schneider.
- Instalatii pentru curentii slabi Internet, Telefon, TV.
- Racorduri apa-canal in bucatarie si bai.
- Racord gaz metan la bucatarie;
- Rupere termica intre balcon si placa din profil de 10 cm montat la tamplarie si polistirent extrudat.
- Instalatii pentru gaz, curent electric si apa, contorizare individuala si contoare montate.
Casa scarii dispune de: lift, acces securizat, scarile placate cu gresie antiderapanta, mana curenta din teava rectangulara, plafoniere cu senzori de miscare si zugraveli in lavabila alba.
Spatile comune exterioare respectiv curtea complexului dispune de spatii verzi amenajate cu gazon, arbusti si plante decorative. Locurile de parcare sunt supraterane, delimitate si pavate cu dale din beton. Aleile pietonale sunt pavate cu dale din beton si delimitate de spatii verzi.
Valoarea de achizitie a locuintei pentru plata avansului de 50% este de 78.950 euro, aceasta poate fi achizitionata si prin accesarea unui credit bancar. ID intern: 2740.

Solicită vizionarea proprietății

Alege o zi disponibilă

07 Decembrie
08 Decembrie
09 Decembrie
10 Decembrie

Alege un interval orar

8:00 - 12:00
12:00 - 15:00
15:00 - 18:00
18:00 - 21:00

Următoarele date de contact oferite de tine vor fi accesibile proprietarului:

Locație

Despre zona "Tineretului"

păreri exprimate de 20 de utilizatori, pe o scară de la 1 la 10

Află clasamentul acestui cartier
Sănătate și Siguranță

Sănătate și Siguranță

6.5

Sănătate 5.9

Siguranță 6.6

Calitate aer 6.9

Curățenie 6.1

Zone verzi 6.9

Cultură și Educație

Cultură și Educație

5.6

Cultură 5.3

Educație 6.4

Sport 5.2

Ambianță și Lifestyle

Ambianță și Lifestyle

6.0

Nivel de trai 6.4

Magazine 5.7

Localuri 5.1

Parcări 6.6

Zgomot 6.4

Transport în comun

Transport în comun

7.5

Autobuz 7.5

Tramvai 0.0

Metrou 0.0

Contactează utilizatorul

ID: 3977642

Apartament cu 2 camere si gradina zona Lacul lui Binder

2 camere | 40 m² | Sibiu / Sibiu

88.950 €


Vezi și alte anunțuri imobiliare
Apartamente vânzare Sibiu-sb - Aeroport Case-vile vânzare Sibiu-sb - Aeroport Garsoniere vânzare Sibiu-sb - Aeroport Terenuri vânzare Sibiu-sb - Aeroport Apartamente vânzare Sibiu-sb - Broscarie Case-vile vânzare Sibiu-sb - Broscarie Garsoniere vânzare Sibiu-sb - Broscarie Terenuri vânzare Sibiu-sb - Broscarie Apartamente vânzare Sibiu-sb - Calea Cisnadiei Case-vile vânzare Sibiu-sb - Calea Cisnadiei Garsoniere vânzare Sibiu-sb - Calea Cisnadiei Terenuri vânzare Sibiu-sb - Calea Cisnadiei