George Cumpanasoiu

Consultant imobiliar

Vânzare

3 camere | 63 m²

Apartament cu 3 camere 2 bai la alb loc privat de parcare in

Sibiu / Sibiu
107.000 €

Rată estimată

2.304 Lei/lună

Avans (15%)

79.769 lei

Perioada împrumutului

30 ani

Specificații

Clasa energetică B

Consum total de energie primară 0

Indicele de emisii echivalent CO2 0

Consum total din surse regenerabile 0

Număr camere 3

Număr Băi 2

Suprafața utilă 63 m²

Compartimentare Semidecomandat

Confort attribute_options.confort.1 sporit

An finalizare construcție 2026

Nu include TVA Nu

Niveluri imobil 2

Mobilat și Utilat Nemobilat

Posibilitate parcare Da

Numărul de locuri de parcare 1

Tip imobil Bloc apartamente

Stare proprietate Bună

Etaj 1

Tip tranzacție Vânzare

Tip vânzător Companie

De vanzare in zona Industriala Vest apartament cu 3 camere decomandate, 2 bai si terasa, orientat catre sud, pozitionat la etajul 1 din 2 al unui bloc tip vila compus din Parter 2Etaje si doar 2 apartamente pe nivel, ce dispune de locuri proprii de parcare, acces securizat, izolatie exterioara si acoperis din tigla.
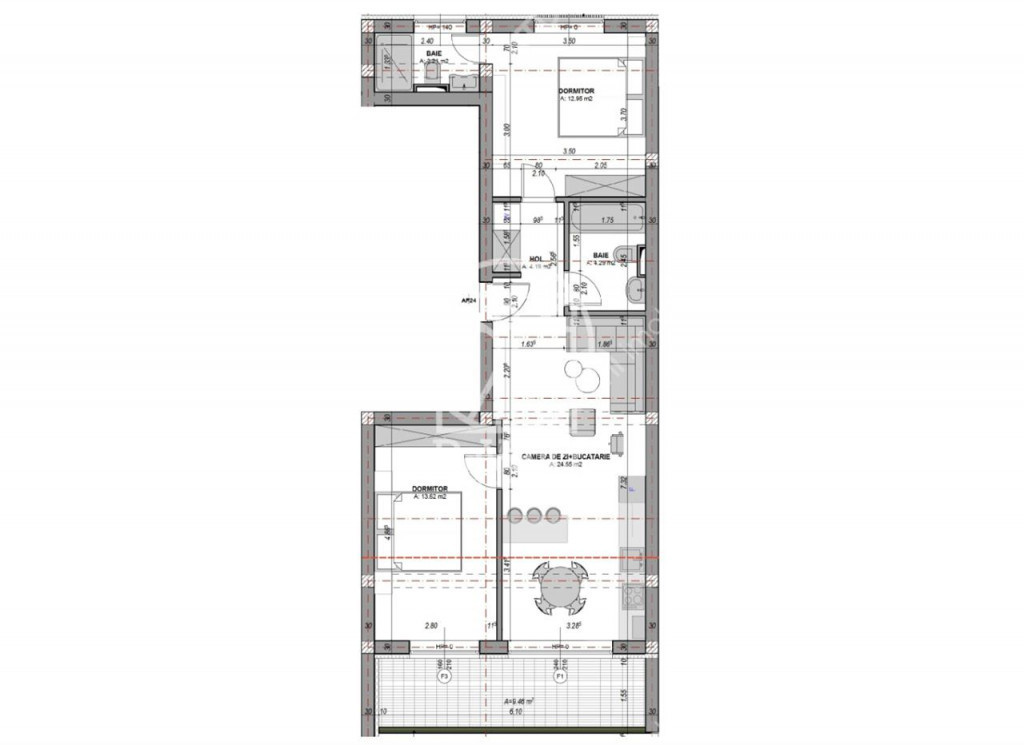
Apartamentul are suprafata utila de 63 mp si este compartimentat astfel:
La intrare in apartament regasim un hol de 4 mp, un dormitor matrimonial de 13 mp cu baie proprie de 3 mp, living open space cu bucataria 25 mp, a doua baie de 4 mp, dormitor de 13.5 mp. Separat de suprafata utila ma detine o terasa de 9 mp.
Locuinta dispune de dotari moderne precum usa metalica de acces antiefractie placata cu panou MDF, centrala termica proprie pe gaz cu termostat wireless si incalzire in pardoseala pe ambele nivele, tamplarie PVC  cu geam termopan cu 5 camere si 3 foi , instalatie electrica din cupru trasa prin coperx cu tablou general si sigurante pentru consumatorii de putere.
Parcarea se face pe locul propriu amenajat locuintei.
Apartamentul este situat intr-o zona cu acces rapid catre centrul orasului Sibiu, oferind icirc;n acelasi timp o priveliste incantatoare asupra imprejurimilor.
Valoarea de achizitie este de 107.000 euro TVA inclus la alb sau 116.000 euro finisat la cheie la plata din surse proprii sau prin intermediul unui credit bancar cu avans 10%, 120.500 euro la alb sau 128.000 euro finisat la cheie.
ID intern: 3400.

Solicită vizionarea proprietății

Alege o zi disponibilă

25 Aprilie
26 Aprilie
27 Aprilie
28 Aprilie

Alege un interval orar

8:00 - 12:00
12:00 - 15:00
15:00 - 18:00
18:00 - 21:00

Următoarele date de contact oferite de tine vor fi accesibile proprietarului:

Locație

Despre zona "Industrial Vest"

păreri exprimate de 9 de utilizatori, pe o scară de la 1 la 10

Află clasamentul acestui cartier
Sănătate și Siguranță

Sănătate și Siguranță

6.7

Sănătate 6.0

Siguranță 7.3

Calitate aer 7.3

Curățenie 7.0

Zone verzi 6.0

Cultură și Educație

Cultură și Educație

5.4

Cultură 5.0

Educație 5.7

Sport 5.7

Ambianță și Lifestyle

Ambianță și Lifestyle

6.5

Nivel de trai 8.0

Magazine 5.5

Localuri 5.6

Parcări 6.3

Zgomot 7.0

Transport în comun

Transport în comun

8.0

Autobuz 8.0

Tramvai 0.0

Metrou 0.0

Contactează utilizatorul

ID: 4155554

Apartament cu 3 camere 2 bai la alb loc privat de parcare in

3 camere | 63 m² | Sibiu / Sibiu

107.000 €


Vezi și alte anunțuri imobiliare
Apartamente vânzare Sibiu-sb - Aeroport Case-vile vânzare Sibiu-sb - Aeroport Garsoniere vânzare Sibiu-sb - Aeroport Terenuri vânzare Sibiu-sb - Aeroport Apartamente vânzare Sibiu-sb - Broscarie Case-vile vânzare Sibiu-sb - Broscarie Garsoniere vânzare Sibiu-sb - Broscarie Terenuri vânzare Sibiu-sb - Broscarie Apartamente vânzare Sibiu-sb - Calea Cisnadiei Case-vile vânzare Sibiu-sb - Calea Cisnadiei Garsoniere vânzare Sibiu-sb - Calea Cisnadiei Terenuri vânzare Sibiu-sb - Calea Cisnadiei