Ureche Pavel

Consultant imobiliar

Vânzare

3 camere | 73 m²

Apartament cu 3 camere 2 bai si 2 balcoane zona Shopping Cit

Sibiu / Sibiu
154.000 €

Rată estimată

3.374 Lei/lună

Avans (15%)

114.807 lei

Perioada împrumutului

30 ani

Specificații

Consum total de energie primară 0

Indicele de emisii echivalent CO2 0

Consum total din surse regenerabile 0

Număr camere 3

Număr Băi 1

Suprafața utilă 73 m²

Compartimentare Decomandat

Confort 1

An finalizare construcție 2025

Nu include TVA Nu

Niveluri imobil 3

Posibilitate parcare Da

Numărul de locuri de parcare 1

Tip imobil Bloc apartamente

Stare proprietate Bună

Etaj 1

Tip tranzacție Vânzare

Tip vânzător Companie

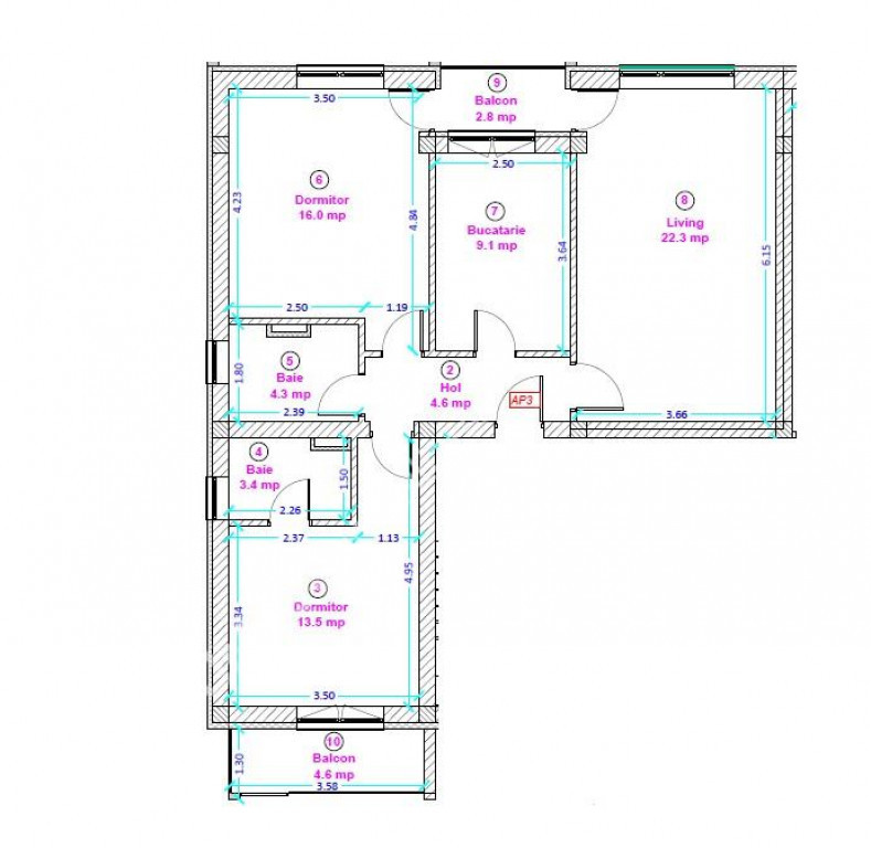
Comision 0 la achizitie! Apartament cu 3 camere decomandate ( bucatarie separata ) cu 2 bai si 2 balcoane, in suprafata totala de 95,24 mp,situat la etajul 1 din 3 al unui imobil constructie noua 2025 situat in Selimbar zona Shopping City.
Apartamentul are suprafata utila de 73,20 mp, acesta fiind compus dintr-un hol de acces de 4,60 mp unde poate fi pozitionat cuierul cu pantofar, camera de zi 22.30 mp unde poate fi pozitionat si un dinning de 6-8 persoane, 2 dormitoare spatioase dintre care dormitorul matrimonial 13.50 mp care detine si propria baie 3.40 mp dotata cu geam iar dormitorul secundar destinat copilului sau oaspetilor de 16.00 mp, bucataria separata 9.10 mp si a doua baie de 4.30 mp dotata cu geam.
Separat de suprafata utila apartamentul mai detine si 2 balcoane de 4,60 mp in care accesul se face din dormitorul matrimonial iar al doilea de 2.80 mp in care accesul se face atat din living cat si din bucatarie si dormitorul secundar.
Parcarea se realizeaza pe propriul loc de parcare amenajat in fata imobilului care detine carte funciara separata.
Apartamentul se preda la stadiul de alb si dispune de urmatoarele dotari si finisaje:
-Usa de metal anti-efractie la intrarea in apartament placata cu MDF;
-Pereti tencuiti ( tencuiala pe baza de var-ciment ), gletuiti si zugraviti cu lavabila alba in 2 straturi;
-Pardoseli amenajate cu sapa autonivelanta semiuscata elicopterizata pregatite pentru parchet-gresie;
-Tamplarie PVC marca Sallamander cu 5 camere si 3 foi de sticla cu Low-E, glafuri exterioare de aluminiu si PVC interior;
-Centrala proprie pe gaz marca Bosch in condensare si incalzire in pardoseala;
-Distribuitor pentru instalatia de incalzire;
-Racorduri apa-canal in bucatarie si bai;
-Racord gaz metan la bucatarie;
-Instalatii electrice trase pe pozitie cu tablou general si sigurante pentru consumatorii de putere;
-Instalatii pentru TV si internet trase pe pozitie.
-Balcon inchis cu parapet de caramida si sticla cu leduri, finisat si placat cu gresie antiderapanta;
Valoarea de achizitie este de 154.000 euro, acesta se poate achizitiona si prin accesarea unui credit bancar. ID intern: 2835.

Solicită vizionarea proprietății

Alege o zi disponibilă

07 Decembrie
08 Decembrie
09 Decembrie
10 Decembrie

Alege un interval orar

8:00 - 12:00
12:00 - 15:00
15:00 - 18:00
18:00 - 21:00

Următoarele date de contact oferite de tine vor fi accesibile proprietarului:

Locație

Despre zona "Vasile Aaron"

păreri exprimate de 188 de utilizatori, pe o scară de la 1 la 10

Află clasamentul acestui cartier
Sănătate și Siguranță

Sănătate și Siguranță

6.8

Sănătate 6.7

Siguranță 7.5

Calitate aer 6.7

Curățenie 7.0

Zone verzi 6.2

Cultură și Educație

Cultură și Educație

6.1

Cultură 5.5

Educație 7.5

Sport 5.5

Ambianță și Lifestyle

Ambianță și Lifestyle

6.9

Nivel de trai 7.0

Magazine 8.1

Localuri 6.9

Parcări 5.6

Zgomot 6.6

Transport în comun

Transport în comun

7.8

Autobuz 7.8

Tramvai 0.0

Metrou 0.0

Contactează utilizatorul

ID: 4030819

Apartament cu 3 camere 2 bai si 2 balcoane zona Shopping Cit

3 camere | 73 m² | Sibiu / Sibiu

154.000 €


Vezi și alte anunțuri imobiliare
Apartamente vânzare Sibiu-sb - Aeroport Case-vile vânzare Sibiu-sb - Aeroport Garsoniere vânzare Sibiu-sb - Aeroport Terenuri vânzare Sibiu-sb - Aeroport Apartamente vânzare Sibiu-sb - Broscarie Case-vile vânzare Sibiu-sb - Broscarie Garsoniere vânzare Sibiu-sb - Broscarie Terenuri vânzare Sibiu-sb - Broscarie Apartamente vânzare Sibiu-sb - Calea Cisnadiei Case-vile vânzare Sibiu-sb - Calea Cisnadiei Garsoniere vânzare Sibiu-sb - Calea Cisnadiei Terenuri vânzare Sibiu-sb - Calea Cisnadiei