Alexandra Iulia

Consultant imobiliar

Vânzare

3 camere | 83 m²

Apartament cu 3 camere si 2 bai, scara interioara, dispon...

Timis / Giroc
134.000 €

Rată estimată

2.936 Lei/lună

Avans (15%)

99.897 lei

Perioada împrumutului

30 ani

Specificații

Preț negociabil Da

Suprafața utilă 83 m²

Număr camere 3

Tip imobil Bloc apartamente

Compartimentare Semidecomandat

Număr Băi 2

Etaj 3

Niveluri imobil 3

An finalizare construcție 2023

Confort 1

Numărul de locuri de parcare 1

Ansamblu Rezidențial Nu

Posibilitate parcare Da

Mobilat și Utilat Nemobilat

Stare proprietate Bună

Tip tranzacție Vânzare

Tip vânzător Companie

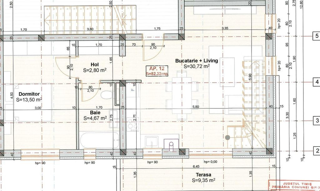
APOSTU ESTATE va propune spre vanzare un apartament de tip penthouse cu 3 camere situat in Giroc langa Lidl.
 Drumul de acces spre imobil este asfaltat, urmat de un scurt drum pietruit. In apropiere sunt magazine si supermarket-uri precum: Lidl, Mega Image, Penny, Profi, scoala si gradinita la o distanta de 10 minute, farmacie, brutarie, acces facil la mijlloace de transport in comun. 

Apartamentul este complet finisat si pregatit pentru noul proprietar.

Imobilul este situat la etajul 3 din 3.
Suprafata este de 83 mp utili + terasa de 10 mp.

Compartimentare: 
Parter:
- hol acces
- bucatarie open space cu livingul si scara interioara pentru acces in mansarda.
- dormitor
- baie cu dus
- terasa

Mansarda:
- hol acces
- dormitor
- baie cu cada

Detalii tehnice:
- constructie realizata in anul 2023 din caramida Porotherm de 25 cm.
- exterior izolat cu polistiren de 10 cm eps 80.
- pereti despartitori complet din caramida (fara rigips) tencuiti mecanizat finisati cu glet si vopsea lavabila alba.
- geamuri termopan cu 3 sticle pentru izolare fonica si termica superioara, foarte mari si luminoase in partea de jos.
- geamuri de tip velux la mansarda.
- centrala proprie pe gaz,  sistem eficient de incalzire in pardoseala cu circuit separat pentru fiecare incapere.
- aparataje modulare Gewis.
- usa acces securizata, usi interioare albe pline.
- gresie si faianta placi mari, modele actuale.
- parchet de 8 mm in dormitoare.
- baile sunt dotate cu obiecte sanitare suspendate gama premium.
- 1 loc de parcare inscris in cf.

Utilitati complete: curent apa de la retea canalizare gaz internet prin fibra optica cablu Tv.

Pretul este negociabil in functie de modalitatea de plata.
Pentru mai multe detalii nu ezitati sa ne contactati!

Acceptam orice fel de credit bancar. Oferim consultanta si solutii financiare prin colaboratorii nostri pentru a obtine cel mai avantajos credit Ipotecar sau Noua Casa.

Va asteptam cu drag la o vizionare chiar astazi!
CP1969590

Solicită vizionarea proprietății

Alege o zi disponibilă

23 Decembrie
24 Decembrie
25 Decembrie
26 Decembrie

Alege un interval orar

8:00 - 12:00
12:00 - 15:00
15:00 - 18:00
18:00 - 21:00

Următoarele date de contact oferite de tine vor fi accesibile proprietarului:

Locație

Contactează utilizatorul

ID: 3938367

Apartament cu 3 camere si 2 bai, scara interioara, dispon...

3 camere | 83 m² | Timis / Giroc

134.000 €