Alexandra Moisescu

Consultant imobiliar

Vânzare

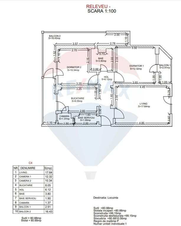
3 camere | 61 m²

Apartament de vanzare

Sibiu / Sibiu
135.000 €

Rată estimată

2.958 Lei/lună

Avans (15%)

100.643 lei

Perioada împrumutului

30 ani

Specificații

Preț negociabil Nu

Nu include TVA Nu

Suprafața utilă 61 m²

Număr camere 3

Tip imobil Bloc apartamente

Compartimentare Decomandat

Număr Băi 2

Etaj 1

Niveluri imobil 4

An finalizare construcție 1979

Confort 1

Ansamblu Rezidențial Nu

Posibilitate parcare Nu

Stare proprietate De renovat

Tip tranzacție Vânzare

Tip vânzător Companie

Apartament cu 3 camere de vanzare,într-o locație ,cu acces usor la toate facilitățile din Sibiu! Situat pe Strada Fabricii, acest apartament are un potențial enorm, fiind ideal pentru cei care își doresc o locuință în apropiere de centrul istoric al orașului, cu toate avantajele unei zone extrem de bine conectate.
Caracteristici principale:
Camere: 3 camere spațioase, ideale pentru o familie
Băi: 2 băi, perfecte pentru confortul dvs
Balcoane: 2 balcoane, care aduc luminozitate naturală în apartament
Bucătărie: Bucătărie închisă, perfectă pentru gătit și depozitarea produselor alimentare
Pivnita
Apartamentul necesită renovare, fiind  ideal pentru cei care vor să își personalizeze locuința după propriile preferințe.
Se află la etajul 1 într-un bloc cu lift, oferind un acces mai ușor și comod,fiind pretabil atat pentru investiție cat si pentru locuit.

Solicită vizionarea proprietății

Alege o zi disponibilă

17 Decembrie
18 Decembrie
19 Decembrie
20 Decembrie

Alege un interval orar

8:00 - 12:00
12:00 - 15:00
15:00 - 18:00
18:00 - 21:00

Următoarele date de contact oferite de tine vor fi accesibile proprietarului:

Locație

Contactează utilizatorul

ID: 3889092

Apartament de vanzare

3 camere | 61 m² | Sibiu / Sibiu

135.000 €


Vezi și alte anunțuri imobiliare
Apartamente vânzare Sibiu-sb - Aeroport Case-vile vânzare Sibiu-sb - Aeroport Garsoniere vânzare Sibiu-sb - Aeroport Terenuri vânzare Sibiu-sb - Aeroport Apartamente vânzare Sibiu-sb - Broscarie Case-vile vânzare Sibiu-sb - Broscarie Garsoniere vânzare Sibiu-sb - Broscarie Terenuri vânzare Sibiu-sb - Broscarie Apartamente vânzare Sibiu-sb - Calea Cisnadiei Case-vile vânzare Sibiu-sb - Calea Cisnadiei Garsoniere vânzare Sibiu-sb - Calea Cisnadiei Terenuri vânzare Sibiu-sb - Calea Cisnadiei