TABOO.ro

Consultant imobiliar

Vânzare

2 camere | 48 m²

Apartament de vazare 2 camere cu gradina proprie de 86 mp si

Sibiu / Sibiu
139.990 €

Rată estimată

3.067 Lei/lună

Avans (15%)

104.363 lei

Perioada împrumutului

30 ani

Specificații

Număr camere 2

Suprafața utilă 48 m²

Compartimentare Decomandat

Confort 1

An finalizare construcție 2015

Tip imobil Bloc apartamente

Niveluri imobil 2

Număr Băi 1

Numărul de locuri de parcare 1

Comision cumpărător 2%

Etaj Parter

Stare proprietate Bună

Mobilat și Utilat Complet

Tip tranzacție Vânzare

Tip vânzător Companie

Apartament 2 camere de vanzare, decomandat, 48 mp, zona Calea Cisnadiei - Arhitectilor, Sibiu.
Ceva bun de vanzare apare rar. Oportunitatea de a numi acest loc ' acasa' o poti avea de cand deschizi usa. Eleganta, utilitatea, bunul gust, seriozitatea proprietarilor cu care au tratat acest spatiu, este uimitoare. Apartamentul unde te vei simti bine, ca intr-o comunitate, ca intr-o familie de oameni tineri si frumosi, cu visuri si aspiratii la fel ca ale tale. Te vei simti ca acasa, iti promit.

 Avantaje majore ale acestui apartament:
• Apartament nelocuit, cu toate obiectele noi si gradina proprie.
• Un loc de parcare inclus in pret
• Parcare extra pentru vizitatori
• Locatie ferita de aglomeratie

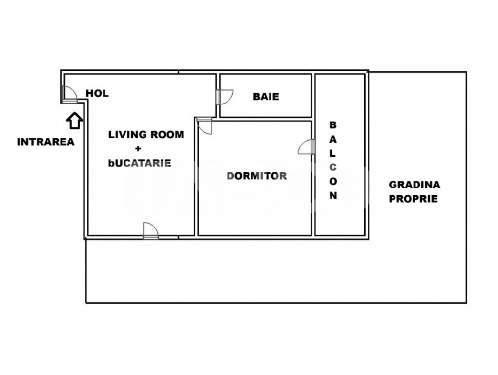
 TABOO Imobiliare propune un apartament de vanzare cu 2 camere, decomandat, situat in localitatea Sibiu, zona Calea Cisnadiei - Arhitectilor, aflat la etajul parter inalt intr -un imobil tip bloc cu regim de inaltime pe Parter + 2 Etaje; anul constructiei 2015, structura caramida. Suprafata utila de 48 mp + balcon de 6 mp si gradina proprie de 86 mp. 

 Apartamentul este structurat astfel: 
• Hol la intrare de compartimentare;
• Living room cu bucatariedeschisa si cu iesire in gradina privata;
• Baie cu cabina de dus si geam de aerisire naturala;
• Dormitor cu iesire pe balcon;

 Finisajele interioare sunt moderne:
• Usa intrare: metal; 
• Usi interioare: celulare;
• Tamplarie ferestre: pvc, termopan;
• Pereti: vopsea lavabila, faianta; 
• Podele: parchet, gresie. 

 Utilitati si dotari: 
• Bucatarie: mobilata, utilata;
• Mobilat: complet;
• Utilitati: curent electric, apa, canalizare, gaz, catv, telefon, acces internet, fibra optica; 
• Izolatii: exterior, bloc izolat termic; 
• Contorizare: apometre, contor gaz, contor curent electric, contorizare separata; 
• Caracteristici bloc: interfon, acoperis, gradina. 

 Apartamentul se vinde mobilat si utilat cu: plita electrica, cuptor, hota, masina de spalat rufe, masina de spalat vase, frigider cu congelator.
 Incalzirea se realizeaza prin centrala proprie, calorifere.
 Se accepta ca si modalitate de plata surse proprii sau credit bancar.
 
Pret: 139.990€
Cod ofertă / ID: P25229
Sună-ne acum la 0369.822.820 și află detalii despre această proprietate de vanzare din Sibiu, dar și despre alte proprietăți potrivite pentru tine.


Informatii speciale:
1. Descarcă aplicația pe mobilul tau "TABOO Imobiliare" din Apple Store, Google Play sau Huawei AppGallery pentru a afla instantaneu noile proprietăți care intră pe piață.
2. Dacă ai o proprietate pe care vrei să o vinzi sau să o închiriezi, suntem aici pentru tine!
Contactează-ne pentru o evaluare gratuită fără obligații și vei descoperi avantajele de a lucra cu o echipă dedicată și experimentată.
3. Dacă vrei sa incepi o cariera de agent imobiliar, suna la 0369.822.820 si programeaza o intalnire pentru a afla toate beneficiile si avantajele.

Intră pe TABOO.ro și descoperă cele mai recente oferte, actualizate zilnic.
Anunt actualizat in 5 decembrie 2025.
Id intern: P25229

Solicită vizionarea proprietății

Alege o zi disponibilă

08 Decembrie
09 Decembrie
10 Decembrie
11 Decembrie

Alege un interval orar

8:00 - 12:00
12:00 - 15:00
15:00 - 18:00
18:00 - 21:00

Următoarele date de contact oferite de tine vor fi accesibile proprietarului:

Locație

Contactează utilizatorul

ID: 4069782

Apartament de vazare 2 camere cu gradina proprie de 86 mp si

2 camere | 48 m² | Sibiu / Sibiu

139.990 €


Vezi și alte anunțuri imobiliare
Apartamente vânzare Sibiu-sb - Aeroport Case-vile vânzare Sibiu-sb - Aeroport Garsoniere vânzare Sibiu-sb - Aeroport Terenuri vânzare Sibiu-sb - Aeroport Apartamente vânzare Sibiu-sb - Broscarie Case-vile vânzare Sibiu-sb - Broscarie Garsoniere vânzare Sibiu-sb - Broscarie Terenuri vânzare Sibiu-sb - Broscarie Apartamente vânzare Sibiu-sb - Calea Cisnadiei Case-vile vânzare Sibiu-sb - Calea Cisnadiei Garsoniere vânzare Sibiu-sb - Calea Cisnadiei Terenuri vânzare Sibiu-sb - Calea Cisnadiei