Adrian Pandea

Consultant imobiliar

Vânzare

3 camere | 65 m²

Apartament decomandat 3 camere pivnita balcon zona Lazaret S

Sibiu / Sibiu
92.900 €

Rată estimată

2.035 Lei/lună

Avans (15%)

69.257 lei

Perioada împrumutului

30 ani

Specificații

Număr camere 3

Suprafața utilă 65 m²

Compartimentare Decomandat

Confort 1

An finalizare construcție 1970

Tip imobil Bloc apartamente

Niveluri imobil 5

Număr Băi 1

Comision cumpărător 2%

Etaj 4

Stare proprietate Bună

Mobilat și Utilat Complet

Tip tranzacție Vânzare

Tip vânzător Companie

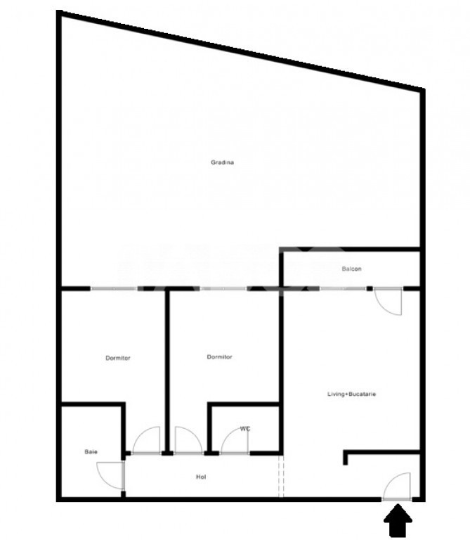
Apartament 3 camere de vanzare, decomandat, 65 mp, zona Lazaret, Sibiu. 

 Avantaje majore ale acestui apartament: 
• Balcon;
• Pivnita;
• Uscatorie;

 TABOO Imobiliare propune un apartament de vanzare cu 3 camere, decomandat, situat in localitatea Sibiu, zona Lazaret, aflat la etajul 4 intr -un imobil tip bloc cu regim de inaltime pe Parter + 4 Etaje; anul constructiei 1970, structura caramida. Suprafata utila de 65 mp + balcon de 3 mp

 Apartamentul este structurat astfel: 
• Hol; 
• Bucatarie; 
• Baie; 
• Living cu balcon; 
• Dormitor cu balcon; 
• Dormitor;

 Finisajele interioare sunt moderne
• Usa intrare: metal; 
• Usi interioare: celulare; 
• Tamplarie ferestre: pvc, termopan; 
• Pereti: vopsea lavabila, faianta; 
• Podele: parchet, gresie. 

 Utilitati si dotari: 
• Bucatarie: mobilata, utilata; 
• Mobilat: complet; 
• Utilitati: curent electric, apa, canalizare, gaz, acces internet, fibra optica; 
• Izolatii: exterior, bloc izolat termic; 
• Contorizare: apometre, contor gaz, contor curent electric; 
• Caracteristici bloc: interfon. 

 Apartamentul se vinde mobilat si utilat cu:aragaz, hota, masina de spalat rufe,frigider cu congelator, 
 Incalzirea se realizeaza prin centrala proprie, calorifere

 Se accepta ca si modalitate de plata surse proprii sau credit bancar.
 
Pret: 92.900€
Cod ofertă / ID: P24214
Sună-ne acum la 0742.478.320 și află detalii despre această proprietate de vanzare din Sibiu, dar și despre alte proprietăți potrivite pentru tine.


Informatii speciale:
1. Descarcă aplicația pe mobilul tau "TABOO Imobiliare" din Apple Store, Google Play sau Huawei AppGallery pentru a afla instantaneu noile proprietăți care intră pe piață.
2. Dacă ai o proprietate pe care vrei să o vinzi sau să o închiriezi, suntem aici pentru tine!
Contactează-ne pentru o evaluare gratuită fără obligații și vei descoperi avantajele de a lucra cu o echipă dedicată și experimentată.
3. Dacă vrei sa incepi o cariera de agent imobiliar, suna la 0742.478.320 si programeaza o intalnire pentru a afla toate beneficiile si avantajele.

Intră pe TABOO.ro și descoperă cele mai recente oferte, actualizate zilnic.
Anunt actualizat in 19 decembrie 2025.
Id intern: P24214

Solicită vizionarea proprietății

Alege o zi disponibilă

27 Decembrie
28 Decembrie
29 Decembrie
30 Decembrie

Alege un interval orar

8:00 - 12:00
12:00 - 15:00
15:00 - 18:00
18:00 - 21:00

Următoarele date de contact oferite de tine vor fi accesibile proprietarului:

Locație

Despre zona "Lazaret"

păreri exprimate de 79 de utilizatori, pe o scară de la 1 la 10

Află clasamentul acestui cartier
Sănătate și Siguranță

Sănătate și Siguranță

6.5

Sănătate 6.4

Siguranță 7.5

Calitate aer 7.1

Curățenie 6.5

Zone verzi 5.0

Cultură și Educație

Cultură și Educație

5.3

Cultură 4.6

Educație 6.8

Sport 4.6

Ambianță și Lifestyle

Ambianță și Lifestyle

6.2

Nivel de trai 7.1

Magazine 5.6

Localuri 5.1

Parcări 6.1

Zgomot 7.2

Transport în comun

Transport în comun

7.9

Autobuz 7.9

Tramvai 0.0

Metrou 0.0

Contactează utilizatorul

ID: 4009350

Apartament decomandat 3 camere pivnita balcon zona Lazaret S

3 camere | 65 m² | Sibiu / Sibiu

92.900 €


Vezi și alte anunțuri imobiliare
Apartamente vânzare Sibiu-sb - Aeroport Case-vile vânzare Sibiu-sb - Aeroport Garsoniere vânzare Sibiu-sb - Aeroport Terenuri vânzare Sibiu-sb - Aeroport Apartamente vânzare Sibiu-sb - Broscarie Case-vile vânzare Sibiu-sb - Broscarie Garsoniere vânzare Sibiu-sb - Broscarie Terenuri vânzare Sibiu-sb - Broscarie Apartamente vânzare Sibiu-sb - Calea Cisnadiei Case-vile vânzare Sibiu-sb - Calea Cisnadiei Garsoniere vânzare Sibiu-sb - Calea Cisnadiei Terenuri vânzare Sibiu-sb - Calea Cisnadiei