Alexandru Luca

Consultant imobiliar

Vânzare

2 camere | 43 m²

Apartament intabulat cu 2 camere balcon loc parcare in Talma

Sibiu / Talmaciu
62.350 €

Rată estimată

1.349 Lei/lună

Avans (15%)

46.482 lei

Perioada împrumutului

30 ani

Specificații

Clasa energetică A

Consum total de energie primară 0

Indicele de emisii echivalent CO2 0

Consum total din surse regenerabile 0

Număr camere 2

Număr Băi 1

Suprafața utilă 43 m²

Compartimentare Semidecomandat

Confort attribute_options.confort.1 sporit

An finalizare construcție 2024

Nu include TVA Nu

Niveluri imobil 4

Mobilat și Utilat Nemobilat

Posibilitate parcare Da

Numărul de locuri de parcare 1

Tip imobil Bloc apartamente

Stare proprietate Bună

Etaj 1

Tip tranzacție Vânzare

Tip vânzător Companie

Comision 0! Apartament intabulat, de vanzare in Localitatea Talmaciu, cu suprafata utila de 42.75 mp, pozitionata la etajul 1 al unui imobil constructie noua anul 2024, compus din Parter 3Etaje M ce beneficiaza de locuri private de parcare.
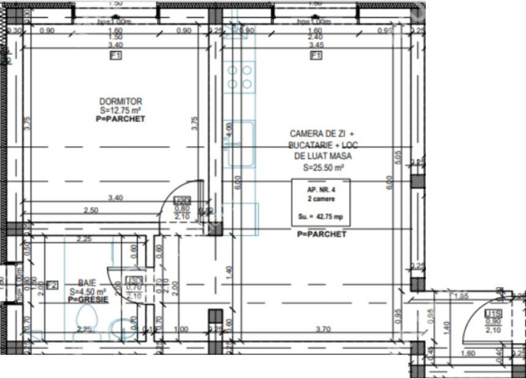
Locuinta are suprafata de 42.75 mp utili si este compusa din camera de zi si bucatarie de 25,50 mp, dormitor de 12.75 mp, hol cu spatiu pentru pantofar si cuier, baia de 4.50 mp dotata cu geam de aerisire.
In pretul de achizitie este inclus si locul de parcare care se afla amenajat, delimitat si amplasat in fata imobilului.
Locuinta se preda la stadiul de alb cu urmatoarele dotari incluse:
- Usa de metal la intrarea icirc;n apartamente;
- Pereti tencuiti ( tencuieli pe baza de var-ciment ), gletuiti si zugraviti in lavabila alba;
- tamplarie PVC cu 5 camere si 3 foi de sticla;
- incalzire prin pardoseala, centrala termica proprie in condensatie si detector gaz;
- sisteme elecrice din cupru si sigurante pentru consumatorii de putere;
- Instalatii pentru curentii slabi Internet, Telefon, TV;
- Racorduri apa-canal in bucatarie si bai;
- Racord gaz metan la bucatarie;
- Instalatii pentru gaz, curent electric si apa, contorizare individuala si contoare montate.
Imobilul in care se afla locuinta este edificat pe structura de cadre din beton si caramida de 30 cm izolata cu polistiren de 10 cm cu densitatea EPS80, placari cu profile decorative din fibrociment si quartz si zugravit cu decorativa siloconata colorata in masa de exterior.
Casa scarii dispune de: lift, acces securizat, scarile placate cu granit si gresie antiderapanta, mana curenta din teava rectangulara, plafoniere cu senzori de miscare si zugraveli in lavabila alba.
Spatile comune exterioare respectiv curtea complexului dispune de spatii verzi amenajate cu gazon, arbusti si plante decorative.Locurile de parcare sunt supraterane, delimitate si pavate cu dale din beton. Aleile pietonale sunt pavate cu dale din beton si delimitate de spatii verzi.
Pretul de achizitie a locuintei la avans de 15% este de 62.350 euro, se poate achizitiona si prin credit ipotecar. ID Intern: 2402.

Solicită vizionarea proprietății

Alege o zi disponibilă

27 Februarie
28 Februarie
01 Martie
02 Martie

Alege un interval orar

8:00 - 12:00
12:00 - 15:00
15:00 - 18:00
18:00 - 21:00

Următoarele date de contact oferite de tine vor fi accesibile proprietarului:

Locație

Contactează utilizatorul

ID: 3785774

Apartament intabulat cu 2 camere balcon loc parcare in Talma

2 camere | 43 m² | Sibiu / Talmaciu

62.350 €