Ureche Pavel

Consultant imobiliar

Vânzare

2 camere | 44 m²

Apartament cu 2 camere decomandate etaj 1 zona Lacul lui Bin

Sibiu / Sibiu
88.900 €

Rată estimată

1.948 Lei/lună

Avans (15%)

66.275 lei

Perioada împrumutului

30 ani

Specificații

Consum total de energie primară 0

Indicele de emisii echivalent CO2 0

Consum total din surse regenerabile 0

Număr camere 2

Număr Băi 1

Suprafața utilă 44 m²

Compartimentare Decomandat

Confort 1

An finalizare construcție 2025

Nu include TVA Nu

Niveluri imobil 4

Posibilitate parcare Da

Numărul de locuri de parcare 1

Tip imobil Bloc apartamente

Stare proprietate Bună

Etaj 1

Tip tranzacție Vânzare

Tip vânzător Companie

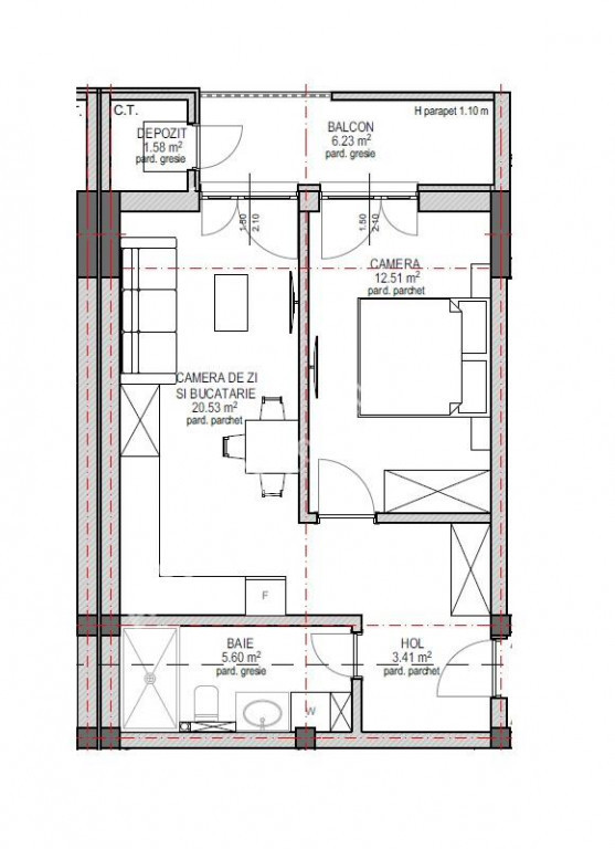
De vanzare apartament de 2 camere decomandate cu balcon si loc propriu de parcare, in suprafata totala de 60.16 mp, pozitionat la etajul intermediar 1 din 4 al unui imobil constructie noua 2025 localizat in zona Lacul lui Binder.
Imobilul din punct de vedere tehnic si al dotarilor dispune de constructie pe structura de cadre cu stalpi si grinzi din beton armat, zidarie realizata din termoblocuri de caramida de 30 cm grosime exterior si 25 cm interior, termosistem exterior din polistiren expandat de 10 cm si densitate EPS 80 peste care se aplica vopsea decorativa de exterior siliconata si usi de acces in imbil cu inchidere electromagnetica.
Apartamentul are suprafata utila de 43.63 mp, acesta este alcatuit dintr-un living open space cu bucataria de 20.53 mp, dormitorul spatios de 12.51 mp si baia 5.60 mp dotata cu cada.
Separat de suprafata utila apartamentul beneficiaza si de un balcon in suprafata de 6.23 mp si o camara de 1.58 mp.
Parcarea se realizeaza pe propriul loc de parcare amenajat in fata imobilului.
Finisaje standard:
- Usa de metal la intrarea icirc;n apartamente placate cu panou MDF;
- Pereti tencuiti (tencuieli pe baza de var-ciment), gletuiti si zugraviti in lavabila alba;
- tamplarie PVC cu geam termopan 5 camere si 3 foi de sticla, glafuri interior-exterior;
- incalzire prin pardoseala, centrala termica proprie in condensatie si detector gaz.
- sisteme elecrice din cupru trase prin copex cu tablou general si sigurante pentru consumatorii de putere marca Schneider.
- Instalatii pentru curentii slabi Internet, Telefon, TV.
- Racorduri apa-canal in bucatarie si bai.
- Racord gaz metan la bucatarie;
- Rupere termica intre balcon si placa din profil de 10 cm montat la tamplarie si polistirent extrudat.
- Instalatii pentru gaz, curent electric si apa, contorizare individuala si contoare montate.
Casa scarii dispune de: lift, acces securizat, scarile placate cu gresie antiderapanta, mana curenta din teava rectangulara, plafoniere cu senzori de miscare si zugraveli in lavabila alba.
Spatile comune exterioare respectiv curtea complexului dispune de spatii verzi amenajate cu gazon, arbusti si plante decorative. Locurile de parcare sunt supraterane, delimitate si pavate cu dale din beton. Aleile pietonale sunt pavate cu dale din beton si delimitate de spatii verzi.
Valoarea de achizitie a locuintei pentru plata avansului de 50% este de 88.900, aceasta poate fi achizitionata si prin accesarea unui credit bancar. ID intern: 2734.

Solicită vizionarea proprietății

Alege o zi disponibilă

07 Decembrie
08 Decembrie
09 Decembrie
10 Decembrie

Alege un interval orar

8:00 - 12:00
12:00 - 15:00
15:00 - 18:00
18:00 - 21:00

Următoarele date de contact oferite de tine vor fi accesibile proprietarului:

Locație

Despre zona "Tineretului"

păreri exprimate de 20 de utilizatori, pe o scară de la 1 la 10

Află clasamentul acestui cartier
Sănătate și Siguranță

Sănătate și Siguranță

6.5

Sănătate 5.9

Siguranță 6.6

Calitate aer 6.9

Curățenie 6.1

Zone verzi 6.9

Cultură și Educație

Cultură și Educație

5.6

Cultură 5.3

Educație 6.4

Sport 5.2

Ambianță și Lifestyle

Ambianță și Lifestyle

6.0

Nivel de trai 6.4

Magazine 5.7

Localuri 5.1

Parcări 6.6

Zgomot 6.4

Transport în comun

Transport în comun

7.5

Autobuz 7.5

Tramvai 0.0

Metrou 0.0

Contactează utilizatorul

ID: 3976928

Apartament cu 2 camere decomandate etaj 1 zona Lacul lui Bin

2 camere | 44 m² | Sibiu / Sibiu

88.900 €


Vezi și alte anunțuri imobiliare
Apartamente vânzare Sibiu-sb - Aeroport Case-vile vânzare Sibiu-sb - Aeroport Garsoniere vânzare Sibiu-sb - Aeroport Terenuri vânzare Sibiu-sb - Aeroport Apartamente vânzare Sibiu-sb - Broscarie Case-vile vânzare Sibiu-sb - Broscarie Garsoniere vânzare Sibiu-sb - Broscarie Terenuri vânzare Sibiu-sb - Broscarie Apartamente vânzare Sibiu-sb - Calea Cisnadiei Case-vile vânzare Sibiu-sb - Calea Cisnadiei Garsoniere vânzare Sibiu-sb - Calea Cisnadiei Terenuri vânzare Sibiu-sb - Calea Cisnadiei