Ureche Pavel

Consultant imobiliar

Vânzare

2 camere | 42 m²

Apartament renovat cu 2 camere la etajul 1 zona Lazaret din

Sibiu / Sibiu
75.000 €

Rată estimată

1.643 Lei/lună

Avans (15%)

55.913 lei

Perioada împrumutului

30 ani

Specificații

Consum total de energie primară 0

Indicele de emisii echivalent CO2 0

Consum total din surse regenerabile 0

Număr camere 2

Număr Băi 1

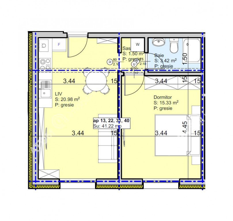
Suprafața utilă 42 m²

Compartimentare Decomandat

Confort 1

An finalizare construcție 1980

Nu include TVA Nu

Niveluri imobil 5

Mobilat și Utilat Nemobilat

Tip imobil Bloc apartamente

Stare proprietate Bună

Etaj 1

Tip tranzacție Vânzare

Tip vânzător Companie

De vanzare in zona Lazaret/Henri Coanda din Sibiu apartament complet renovat cu 2 camere decomandate, in suprafata totala de 50 mp, orientat spre SUD, poztionat la etajul intermediar 1 al unui bloc integral renovat care beneficiaza de lift, acoperis din tigla si izolatie termica exterioara de 10 cm.
Apartamentul are 42.00 mp utili si este alcatuit din camera de zi tip open space de 21.00 mp, dormitorul spatios de 15.33 mp, baia de 3.42 mp dotata cu dus cu rigola si un hol de 1.50 mp.
Parcarea se realizeaza pe locurile de parcare aflatate atat in fata cat si in proximitatea imobilului.
Din punct de vedere al renovarilor apartamentului i-au fost aduse imbunatatiri precum: instalatie electrica din cupru, instalatie termica si sanitara noi, usa de metal anti-efractie la intrarea in apartament placata cu MDF, centrala proprie pe gaz marca Immergas in condensare si calorifere din otel termostatate, tamplarie PVC cu geam termopan si glafuri interioare/exterioare, pardoseala placata cu parchet laminat, iar in baie regasim gresie, faianta si obiecte sanitate montate, usi de interior din lemn stratificat, distribuitor pentru instalatia de incalzire, prize si intrerupatoare marca Schneider Sedna, distribuitor pentru instalatia de incalzire, racorduri apa-canal in bucatarie si baie.
Casa scarii, de asemnea, renovata, pardoseala acesteia este placata cu gresie antiderapanta, liftului silentios de ultima generatie marca Schindler, acces securizat, mana curenta din teava rectangulara, plafoniere cu senzori de miscare si zugraveli in lavabila alba.
Valoarea de achizitie a locuintei este de 75.000 euro, aceasta poate fi achizitionata si prin accesarea unui credit bancar. ID intern: 2611.

Solicită vizionarea proprietății

Alege o zi disponibilă

20 Decembrie
21 Decembrie
22 Decembrie
23 Decembrie

Alege un interval orar

8:00 - 12:00
12:00 - 15:00
15:00 - 18:00
18:00 - 21:00

Următoarele date de contact oferite de tine vor fi accesibile proprietarului:

Locație

Despre zona "Lazaret"

păreri exprimate de 79 de utilizatori, pe o scară de la 1 la 10

Află clasamentul acestui cartier
Sănătate și Siguranță

Sănătate și Siguranță

6.5

Sănătate 6.4

Siguranță 7.5

Calitate aer 7.1

Curățenie 6.5

Zone verzi 5.0

Cultură și Educație

Cultură și Educație

5.3

Cultură 4.6

Educație 6.8

Sport 4.6

Ambianță și Lifestyle

Ambianță și Lifestyle

6.2

Nivel de trai 7.1

Magazine 5.6

Localuri 5.1

Parcări 6.1

Zgomot 7.2

Transport în comun

Transport în comun

7.9

Autobuz 7.9

Tramvai 0.0

Metrou 0.0

Contactează utilizatorul

ID: 3884622

Apartament renovat cu 2 camere la etajul 1 zona Lazaret din

2 camere | 42 m² | Sibiu / Sibiu

75.000 €


Vezi și alte anunțuri imobiliare
Apartamente vânzare Sibiu-sb - Aeroport Case-vile vânzare Sibiu-sb - Aeroport Garsoniere vânzare Sibiu-sb - Aeroport Terenuri vânzare Sibiu-sb - Aeroport Apartamente vânzare Sibiu-sb - Broscarie Case-vile vânzare Sibiu-sb - Broscarie Garsoniere vânzare Sibiu-sb - Broscarie Terenuri vânzare Sibiu-sb - Broscarie Apartamente vânzare Sibiu-sb - Calea Cisnadiei Case-vile vânzare Sibiu-sb - Calea Cisnadiei Garsoniere vânzare Sibiu-sb - Calea Cisnadiei Terenuri vânzare Sibiu-sb - Calea Cisnadiei