Vânzări
Închirieri
Vânzare Apartament 2 camere, Central, comision 0%

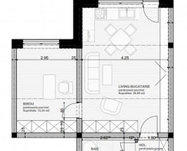
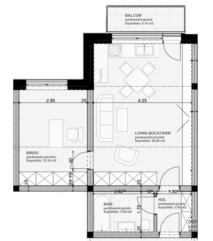
Apartament tip STUDIO, et.4/4, 46 mp, Subcetate City 2, DEZVOLTATOR.

77.850 eur
ID 3942322
Apartamente | 46 m² | 2 camere
Sanpetru, Brasov / Central
Zona Central
Număr camere 2
Suprafața utilă 46 m²
Compartimentare Semidecomandat
Confort Lux
Etaj 4
An finalizare construcție 2026
Tip imobil Bloc de apartamente
Stare proprietate În construcție
Număr niveluri imobil 4
Număr Băi 1
Mobilat/Utilat Nemobilat
Comision cumpărător 0%
Clasă energetică B
Posibilitate parcare Da
 Ansamblu rezidențial

Direct DEZVOLTATOR, comision 0%.

Vrei sa cumperi un apartament de investiție care sa iți asigure un randament bun sau un apartament in care sa te muți? Te asteptam la Subcetate City 2.
Subcetate City 2 este o continuare a proiectului Subcetate City, proiect care are până în prezent un numar de 54 de VILE finalizate însumand peste 2 000 de apartamente vândute si predate.

Subcetate City2, vine în întampinarea clientilor cu structuri de garsoniere, apartamente tip studio, apartamente cu 2 si 3 camere.
-garsoniere, suprafețe 31 și 36 mp utili,
-studiouri, suprafețe 45, 49 sau 50 mp utili,
-2 camere, suprafețe 55 și 60 mp utili.
-3 camere, suprafațe 72 si 78 mp utili.

La aceste structuri, vă oferim diferite modalități de plată: integrală, tranșe, credit sau rate la dezvoltator pe o perioadă de 1,2,3 sau 4 ani. Oferta poate fi personalizată in funcție avansul pe care il aveti disponibil.

Pentru apartamentul prezentat avem urmatoarele prețuri:
Plată integrală: 77 850 euro,
Plată in transe: 81 610 euro,
Plată prin credit: 85 700 euro,
Plată prin rate la dezvoltator pe o perioadă de 3 ani: 107 970 euro.

Definiții plati:
Integrală – pentru această modalitate de plată se achita integral valoarea apartamentului la semnarea antecontractului
Transe – pentru această modalitate de plată se achită 25% avans la semnarea antecontractului, 25% cand construcția este la rosu, 50% la finalizare. Aceste procente se pot negocia in functie de disponibilitatea clientului.
Credit – pentru această modalitate de plată se achită un avans de 15% la semnare antecontract si diferența de 85% prin credit. Creditul se va accesa cand apartamentul este finalizat.
Rate la dezvoltator pe o perioadă de 3 ani – pentru această modalitate de plata se achită un avans de 25% la semnarea antecontractului, 25% la finalizare si diferența de 50% se împarte in rate pe 3 ani. Ratele încep de la finalizarea apartamentului.


Complexul rezidențial beneficiază de toate facilitățile, utilitățile, inclusiv spații comerciale în incintă, locuri de joacă pentru copii, gradiniță și spații verzi.

Pereții perimetrali ai apartamentelor sunt realizați din cărămidă porotherm de 30 cm, iar cei interiori din cărămidă de 25 cm. Pereții exteriori sunt anvelopați cu polistiren de 15 cm, asigurand o bună izolație termică.

Toate apartamentele vin dotate cu încalzire in pardoseală si centrală de apartament pe gaz. Finisajele apartamentelor sunt la alegerea clientului.

Se predă la cheie cu finisaje la alegerea clientului și contorizări individuale.
Colaborez cu AGENTIILE IMOBILIARE.

Pentru o vizionare vă rog să mă contactați la numărul de telefon afișat spre a stabili o întâlnire la birou de vânzări.

Persoana contact Viorel – 0757. - .576. - .999.

Solicită vizionarea proprietății

Apartament tip STUDIO, et.4/4, 46 mp, Subcetate City 2, DEZVOLTATOR.

Vizionare
Alege o dată disponibilă:
Marți
24 Martie
Miercuri
25 Martie
Joi
26 Martie
Vineri
27 Martie
Anulează
success
Solicitarea ta a fost trimisă cu succes!
Vei fi contactat de către proprietar în cel mai scurt timp posibil.
Contactează utilizatorul
Apartament tip STUDIO, et.4/4, 46 mp, Subcetate City 2, DEZVOLTATOR.
Viorel Manea Consultant imobiliar Subcetate City
07xx - AFIŞEAZĂ
ID 3942322
Anunțuri similare
Număr de telefon verificat
97.350 eur Comision 0% | Apartament cu 2 camere – 59 mp utili | S?...
2 camere  •  59 m²  •  etajul 1/2  •  2025  •  semidecomandat
Construcţie nouă
Sanpetru, BV, Central
azi, 05:01
Distribuie anunțul Adaugă la favorite
Număr de telefon verificat
71.400 eur Comision 0% | Apartament tip Studio – 42 mp utili – S...
2 camere  •  42 m²  •  etajul 2/2  •  2025  •  semidecomandat
Construcţie nouă
Sanpetru, BV, Central
azi, 05:01
Distribuie anunțul Adaugă la favorite
Număr de telefon verificat
235.000 eur Spatiu comercial stradal, cu toate utilitatile stradal, la 1
Centru comercial  •  435 m²  •  1 încăpere  •  parcare
Construcţie nouă
Ulmi, GR, Central
17 mar.
Distribuie anunțul Adaugă la favorite
Număr de telefon verificat
570.000 eur VANZARE CLADIRE CU RESTAURANT UTILAT COMPLET PLUS SPATIU COM
Centru comercial  •  650 m²
Giurgiu, GR, Central
12 mar.
Distribuie anunțul Adaugă la favorite
Vrei sa vinzi simplu si rapid?
Termenii și condițiile de pe site au fost actualizate. Detaliile complete sunt disponibile aici