Raduman

Companie

Vânzare

2 camere | 49 m²

Apartament ultracentral 2 camere Ploiesti - fara risc seismic!

Prahova / Ploiesti
65.000 €

Rată estimată

1.406 Lei/lună

Avans (15%)

48.458 lei

Perioada împrumutului

30 ani

Specificații

Număr camere 2

Suprafața utilă 49 m²

Compartimentare Semidecomandat

Confort 2

Etaj 4

An finalizare construcție 1966

Tip imobil Bloc apartamente

Stare proprietate Renovată

Tip tranzacție Vânzare

Tip vânzător Persoană fizică

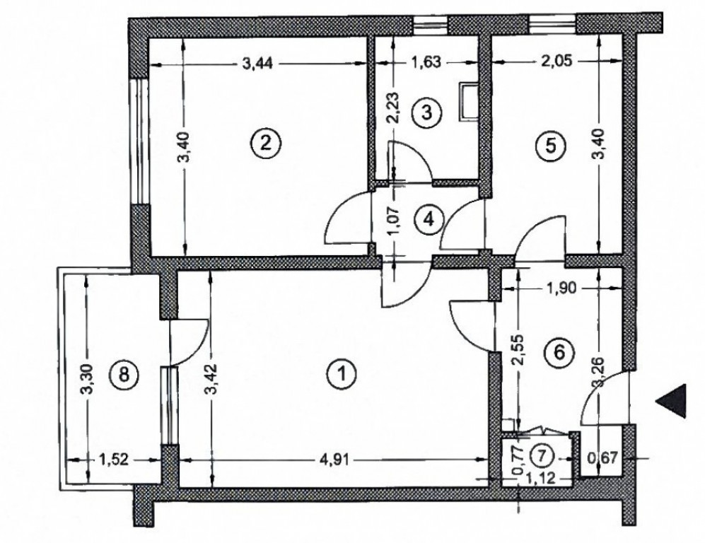
Se oferă spre vânzare apartament cu 2 camere, semidecomandat, cu o suprafață utilă (măsurată) de 48 mp, situat la etajul 4 din 4, într-un imobil dintr-o zonă liniștită.

Apartamentul beneficiază de o compartimentare practică și de lumină naturală. Livingul are acces către balcon, iar orientarea nord-est asigură lumină plăcută pe parcursul zilei. Dormitorul este bine proporționat, bucătăria este separată și funcțională, iar baia este dotată cu cadă.

Proprietatea dispune de boxă la subsol, cu o suprafață utilă măsurată de 9 mp, ideală pentru depozitare.

Caracteristici și dotări:
-parchet din lemn
-ferestre exterior cu geam termopan
-aer condiționat
-balcon
-boxă la subsol (8,77 mp)
-etaj 4 4
-orientare nord-est
-curte interioara bloc
-centrala proprie de condominiu

Apartamentul este potrivit atât pentru locuit, birou sau ca investiție.

Compartimentarea este ilustrată în releveul atașat.

Distanta fata de punctele cheie din Ploiesti:
Casa de Cultura - 500m
Liceul Cuza - 250m
WinMarkt Omnia - 800m
WinMarkt Galerii - 500m
Spitalul Lotus - 50m

Contact proprietar, in scris, pe WhatsApp

Solicită vizionarea proprietății

Alege o zi disponibilă

20 Februarie
21 Februarie
22 Februarie
23 Februarie

Alege un interval orar

8:00 - 12:00
12:00 - 15:00
15:00 - 18:00
18:00 - 21:00

Următoarele date de contact oferite de tine vor fi accesibile proprietarului:

Locație

Contactează utilizatorul

ID: 4118957

Apartament ultracentral 2 camere Ploiesti - fara risc seismic!

2 camere | 49 m² | Prahova / Ploiesti

65.000 €


Vezi și alte anunțuri imobiliare
Apartamente vânzare Ploiesti-ph - 8 Martie Case-vile vânzare Ploiesti-ph - 8 Martie Garsoniere vânzare Ploiesti-ph - 8 Martie Terenuri vânzare Ploiesti-ph - 8 Martie Apartamente vânzare Ploiesti-ph - 9 Mai Case-vile vânzare Ploiesti-ph - 9 Mai Garsoniere vânzare Ploiesti-ph - 9 Mai Terenuri vânzare Ploiesti-ph - 9 Mai Apartamente vânzare Ploiesti-ph - Albert Case-vile vânzare Ploiesti-ph - Albert Garsoniere vânzare Ploiesti-ph - Albert Terenuri vânzare Ploiesti-ph - Albert