Vânzări
Închirieri
Vânzare Apartament 3 camere, Central

Apartamente cu 3 camere disponibile imediat, gradina de 1...

127.000 eur
ID 3960100
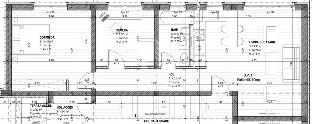
Apartamente | 70 m² | 3 camere
Giroc, Timis / Central
Zona Central
Număr camere 3
Suprafața utilă 70 m²
Compartimentare Semidecomandat
Confort 1
Etaj parter
An finalizare construcție 2025
Tip imobil Bloc de apartamente
Stare proprietate Nouă
Număr niveluri imobil 2
Număr Băi 1
Mobilat/Utilat Nemobilat
Posibilitate parcare Da
Nr. locuri parcare 2
 Preț negociabil

APOSTU ESTATE va propune spre vanzare apartamente cu 3 camere situate in Giroc - Calea Urseni.
Drumul de acces spre imobil este asfaltat. In apropiere sunt magazine si supermarket-uri precum: Mega Image, Profi, scoala si gradinita la o distanta de 20 minute, acces facil la mijloace de transport in comun.

Apartamentele sunt complet finisate si pregatite pentru noul proprietar.

Suprafata este de 68 mp utili.
Compartimentare:
- hol acces
- living si bucatarie open space (cu posibilitatea de inchidere de catre constructor)
- 2 dormitoare
- baie cu geam
- gradina de 103 mp

Toate finisajele sunt realizate mecanizat cu produse de calitate superioara atent creionate.
Detalii tehnice:
- regim de inaltime: Parter + 2 etaje.
- constructie realizata in anul 2025 din caramida Porotherm de 25 cm.
- exterior izolat cu polistiren de 10 cm eps 80.
- pereti despartitori complet din caramida (fara rigips) tencuiti mecanizat finisati cu glet si vopsea lavabila alba.
- geamuri termopan cu 3 sticle pentru izolare fonica si termica superioara, foarte mari si luminoase.
- centrala proprie pe gaz, sistem eficient de incalzire in pardoseala
- aparat pentru aer conditionat montat in living
- aparataje modulare Gewis.
- usa acces securizata, usi interioare Porta Doors.
- gard si poarta acces din exterior in curte.
- 2 locuri de parcare inscrise in cf.

Utilitati complete: curent, apa de la retea, canalizare, gaz, internet prin fibra optica, cablu Tv.

Pentru mai multe detalii nu ezitati sa ne contactati!

Acceptam orice fel de credit bancar. Oferim consultanta si solutii financiare prin colaboratorii nostri pentru a obtine cel mai avantajos credit Ipotecar sau Noua Casa.

Va asteptam cu drag la o vizionare chiar astazi!
CP2527566

Solicită vizionarea proprietății

Apartamente cu 3 camere disponibile imediat, gradina de 1...

Vizionare
Alege o dată disponibilă:
Marți
24 Martie
Miercuri
25 Martie
Joi
26 Martie
Vineri
27 Martie
Anulează
success
Solicitarea ta a fost trimisă cu succes!
Vei fi contactat de către proprietar în cel mai scurt timp posibil.
Contactează utilizatorul
Apartamente cu 3 camere disponibile imediat, gradina de 1...
Alexandra Iulia Consultant imobiliar Apostu Imobiliare
07xx - AFIŞEAZĂ
ID 3960100
Vrei sa vinzi simplu si rapid?
Termenii și condițiile de pe site au fost actualizate. Detaliile complete sunt disponibile aici