Mihaela Atasiei

Consultant imobiliar

Vânzare

4 camere | 122 m²

BÂRNOVA - Casă individuală P+POD, 156 mp + 1000 mp teren

Iasi / Barnova
350.000 €

Rată estimată

7.536 Lei/lună

Avans (15%)

260.925 lei

Perioada împrumutului

30 ani

Specificații

Număr camere 4

Suprafața utilă 122 m²

An finalizare construcție 2019

Suprafață teren 1000 m²

Număr Băi 2

Numărul de locuri de parcare 2

Stare proprietate Bună

Mobilat și Utilat Nemobilat

Utilități Curent, Apă, Canalizare, Gaz

Tip tranzacție Vânzare

Tip vânzător Companie

*** DESTINE IMOBILIARE vă prezintă următoarea proprietate spre vânzare:
** Casă individuală 4 camere - BÂRNOVA
* Preț: 350.000 € usor negociabil

>>> INFORMATII UTILE generale:
- Casa este finalizată în anul 2025
- Construită în regie proprie
- Regimul de inaltime este: P+POD
- Suprafață UTILĂ este de 122 mp + garaj 34 mp
- TEREN in suprafata de 1000 mp
- Curent electric 380 V (trifazic)
-TOATE UTILITATILE, inclusiv canalizare
- Beci 35 mp cu acces din garaj 
- garaj incapator pentru 2 masini, cu usă actionata automat
- șemineu pe lemne
- centrala termica Viessmann
- incalzire prin pardoseala

>>> DETALII despre constructie:
- Construcție solidă
- Fundație cu talpă 60x40 cm
- Elevație de 1 m, termo și hidroizolată cu polistiren extrudat 5 cm
- Parter din cadre + cărămidă + placă peste parter
- Pod din bârne lemn masiv 15x15 și 14x7
- Acoperiș premium Novatik din zinc-aluminiu cu rocă vulcanică (nu ruginește) – garanție 100 ani
- Tâmplărie PVC Salamander 92 mm, tripan (3 sticle 6–4–6 mm) – firma ADF
- Casă tencuită interior și exterior
- Izolație exterioară cu polistiren extrudat EPS100 – 10 cm
- Alei și trotuare din beton amprentat B350
- Gard din bolțari finisați, armați cu fier și beton
- Construcția este în curs de finalizare
- Posibilitate de alegere a finisajelor interioare după preferința cumpărătorului

>>> COMPARTIMENTARE:
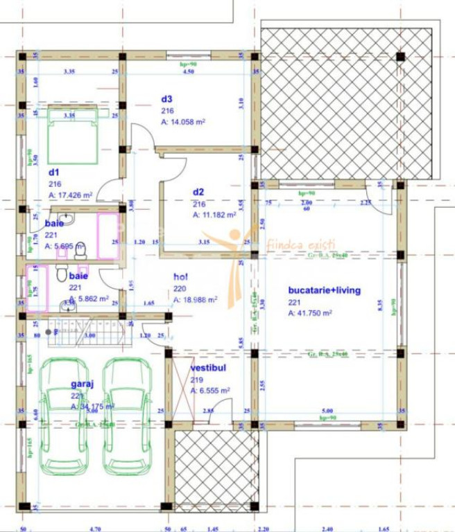
~ PARTER  : living și bucătărie open-space, 3 dormitoare, 2 bai, terasă, garaj
~ POD 80 mp, înălțimea de 3m la coama

* Casa a fost construită cu materiale de calitate, în concordanță cu proiectul si planul de construcție, cu atentie sporita la detalii si finisaje.
** Imobilul se află într-o zonă liniștită, cu aer curat și priveliște deosebită , la DOAR 3km distanță față de Hanul Trei Sarmale, Bucium.
*** În spatele casei se află Pădurea Bârnova – o adevărată oază de liniște și aer curat.

> Pentru vizionări sau informații suplimentare:
-> 0750.299.322 - Atasiei Mihaela
*Cod ofertă : P5330

Această proprietate poate fi achiziționată prin intermediul unui credit, iar noi suntem aici să vă facilităm acest proces. Datorită parteneriatelor noastre strânse cu cele mai importante instituții bancare, vă putem oferi asistență în obținerea finanțării potrivite pentru dumneavoastră.
Nu ezitați să ne contactați pentru mai multe informații despre opțiunile de finanțare disponibile! 
Id intern: P5330

Solicită vizionarea proprietății

Alege o zi disponibilă

22 Mai
23 Mai
24 Mai
25 Mai

Alege un interval orar

8:00 - 12:00
12:00 - 15:00
15:00 - 18:00
18:00 - 21:00

Următoarele date de contact oferite de tine vor fi accesibile proprietarului:

Locație

Contactează utilizatorul

ID: 4168462

BÂRNOVA - Casă individuală P+POD, 156 mp + 1000 mp teren

4 camere | 122 m² | Iasi / Barnova

350.000 €