BLITZ Romania

Consultant imobiliar

Închiriere

250 m²

Birou cu 5 incaperi, Parter, 250 mp, zona Parcului Central

Cluj / Cluj-Napoca
2.700 €

Specificații

Suprafața utilă 250 m²

Numărul de locuri de parcare 2

Clasă birouri A

Tip imobil Bloc apartamente

Stadiu construcție Finalizat

Tip tranzacție Închiriere

Tip vânzător Companie

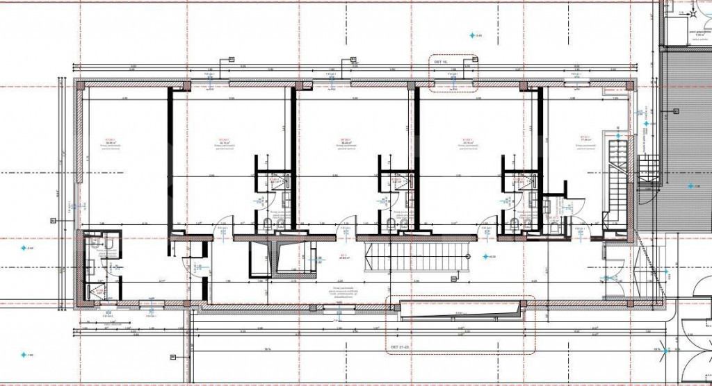
Va propun spre inchiriere spatiu de birou modern, in zona Parcului Central, in cladire noua cu curte privata. Momentan sunt disponibile pentru inchiriere suprafete de cate 250 mp, pozitionate la parter si etajul 1.
Imobilul este dispus pe 4 nivele Parter + 3 + Mansarda. Imobilul are o suprafata totala de 1,000 mp, aprox. 250 mp / nivel. Parterul si etajele au incaperi spatioase, generoase, care comunica intre ele, cu ferestre (cortina ) , mari, oferind lumina naturala generoasa. Imobilul beneficiaza de bucatarie spatioasa complet mobilata si echipata si o sala cu loc de luat masa.
Fiecare etaj este compartimentatat in 5 camere, Baie, Casa scari
Spatiul beneficiaza de toate utilitatile:
- Centrala termica
- Contorizare separata
- acces lift
- Sistemul de incalzire/racire este pe CT, aparate BTU si sistem HVAC. Dispune de finisaje moderne, de calitate cu eficienta termica maxima. Sunt disponibile spre inchieriere locuri de parcare in subteranul cladirii, la pretul de 100 eur/parcare/luna.

Cod ofertă / ID BLITZ: P66007
Id intern: P66007

Solicită vizionarea proprietății

Alege o zi disponibilă

18 Decembrie
19 Decembrie
20 Decembrie
21 Decembrie

Alege un interval orar

8:00 - 12:00
12:00 - 15:00
15:00 - 18:00
18:00 - 21:00

Următoarele date de contact oferite de tine vor fi accesibile proprietarului:

Locație

Contactează utilizatorul

ID: 4101728

Birou cu 5 incaperi, Parter, 250 mp, zona Parcului Central

250 m² | Cluj / Cluj-Napoca

2.700 €


Vezi și alte anunțuri imobiliare
Apartamente închiriere Cluj-napoca-cj - Aeroport Case-vile închiriere Cluj-napoca-cj - Aeroport Garsoniere închiriere Cluj-napoca-cj - Aeroport Terenuri închiriere Cluj-napoca-cj - Aeroport Apartamente închiriere Cluj-napoca-cj - Andrei Muresanu Case-vile închiriere Cluj-napoca-cj - Andrei Muresanu Garsoniere închiriere Cluj-napoca-cj - Andrei Muresanu Terenuri închiriere Cluj-napoca-cj - Andrei Muresanu Apartamente închiriere Cluj-napoca-cj - Apahida Case-vile închiriere Cluj-napoca-cj - Apahida Garsoniere închiriere Cluj-napoca-cj - Apahida Terenuri închiriere Cluj-napoca-cj - Apahida