Eugen Oprea

Consultant imobiliar

Vânzare

147 m²

Birou/Apartament 4 camere cu gradina, zona Cismigiu

Bucuresti-Ilfov / Bucuresti
519.000 €

Specificații

Consum total de energie primară 0

Indicele de emisii echivalent CO2 0

Consum total din surse regenerabile 0

Număr încăperi 4

Înălțime spațiu 3 m

Stadiu construcție Finalizat

Suprafața utilă 147 m²

Suprafață totală 260 m

An finalizare construcție 2010

Nu include TVA Nu

Posibilitate parcare Da

Numărul de locuri de parcare 2

Tip imobil Bloc apartamente

Tip tranzacție Vânzare

Tip vânzător Companie

Apartament, oferta foarte rara !

Va propunem un apartament modern de 4 camere, localizat in zona de top, in apropierea Parcului Cismigiu, ce se bucura de o terasa/curte superba si vitrina la strada;

Apartamentul este disponibil la parter, are suprafata vitrata generoasa fiind pretabil pentru orice activitate de tip office, clinica, showroom, spatiu comercial dar si rezidenta;

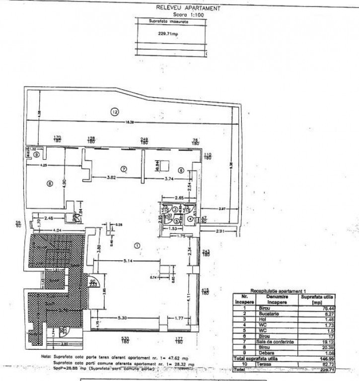
Imobil este compus din Demisol, Parter si 4 etaje iar apartamentul dispune de o suprafata foarte generoasa de 260 mp construiti, respectiv 147 mp util interior, la care se adauga doua locuri de parcare in subteran si terasa amenajata;

Curtea are o suprafata de 83mp si este amenajata cu pavele si arbusti decorativi, reprezentand un spatiu ideal pentru petrecerea timpului liber;

Apartamentul este compartimentat pentru activitate de birou, incluzind un open space in suprafata de 77mp, o sala de conferinte, 2 birouri , spatii de depozitare si doua toalete ;

Spatiul poate fi recompartimentat cu usurinta intr-un apartament rezidential, rezultand un apartament cu 4 camere ( 3 dormitoare   Living   Bucatarie   3 bai ) conform planului de amenajare;

Imobilul se afla in centrul Bucurestiului, in zona 0 a Capitalei, cu acces facil la o bogata activitate culturala (teatre, muzee, sali concerte, scena alternativa), dar in acelasi timp si intr-o zona rezidentiala linistita si prietenoasa cu copiii (gradinite si Liceul Cervantes), in imediata vecinatate a trei parcuri importante (Parcul Cismigiu, Parcul Operei si Parcul Izvor).

Dispune de o accesibilitate mare, afandu-se in apropierea Caii Victoriei si noului ax Buzesti-Uranus care asigura o legatura directa cu Gara de Nord si Piata Victoriei, in apropierea mai multor statii ale magistralelor Metrorex (Izvor, Eroilor, Universitatii); Facilitati: gradinite, scoli, centre comerciale, magazine, banci, centre SPA, statii ale mijloacelor de transport in comun, etc.

Pret apartament 519.000 Euro inclusiv doua locuri de parcare subteran.

Oferta apartine agentiei Top Estate Team, Link oferta: www.tet.ro

Solicită vizionarea proprietății

Alege o zi disponibilă

07 Decembrie
08 Decembrie
09 Decembrie
10 Decembrie

Alege un interval orar

8:00 - 12:00
12:00 - 15:00
15:00 - 18:00
18:00 - 21:00

Următoarele date de contact oferite de tine vor fi accesibile proprietarului:

Locație

Despre zona "Cismigiu"

păreri exprimate de 41 de utilizatori, pe o scară de la 1 la 10

Află clasamentul acestui cartier
Sănătate și Siguranță

Sănătate și Siguranță

8.0

Sănătate 8.1

Siguranță 8.4

Calitate aer 6.8

Curățenie 7.9

Zone verzi 8.6

Cultură și Educație

Cultură și Educație

8.1

Cultură 9.0

Educație 8.5

Sport 6.7

Ambianță și Lifestyle

Ambianță și Lifestyle

7.1

Nivel de trai 7.8

Magazine 6.9

Localuri 8.4

Parcări 5.6

Zgomot 6.8

Transport în comun

Transport în comun

8.4

Autobuz 8.7

Tramvai 7.8

Metrou 8.6

Contactează utilizatorul

ID: 4076389

Birou/Apartament 4 camere cu gradina, zona Cismigiu

147 m² | Bucuresti-Ilfov / Bucuresti

519.000 €


Vezi anunțuri și din categoriile