Cornel Ion

Consultant imobiliar

Vânzare

5 camere | 103 m²

Casa - 103mp utili - Cantemir -5 minute de statia metrou ...

Bucuresti-Ilfov / Bucuresti
219.890 €

Rată estimată

4.757 Lei/lună

Avans (15%)

163.928 lei

Perioada împrumutului

30 ani

Specificații

Preț negociabil Da

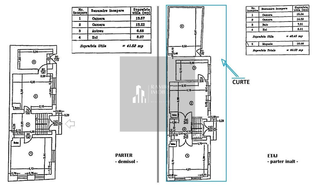
Suprafața utilă 103 m²

Suprafață teren 140 m²

Număr camere 5

Niveluri imobil 1

An finalizare construcție 1940

Număr Băi 3+

Numărul de locuri de parcare 2

Ansamblu Rezidențial Nu

Posibilitate parcare Da

Stare proprietate Bună

Utilități Curent, Apă, Canalizare, Gaz, Încălzire, Climă

Tip tranzacție Vânzare

Tip vânzător Companie

Va prezentam o casa deosebita in centrul Bucurestiului, perfect pentru locuinta sau  pentu spatiul de birouri care va impresiona orice client.

Casa are patru camere impartite pe 2 etaje, baie , bucatarie, plus o constructie de o camera in curte care poate fi folosita pentru recreere sau o sala de sedinte.


Casa este situata la cateva minute de statia de metrou Tineretului, in spate la Bd. Dimitrie Cantemir, una dintre cele mai frumoase zone din Bucuresti.

Accesul se poate face pe jos din Bd. Cantemir,  2 minute de intrarea in metrou Tineretului, sau cu masina din Bd Dimitrie Cantemir sau din Bd Gheorghe Sincai.


Ultima data a fost renovata in 2015, la interior si la exterior,  acum necesita investitii in curte si de rezugravit la interior.

Pe strada au fost schimbate toate conductele de canalizare precum si cablurile de electricitate pentru fiecare casa.


Se afla intr-o zona perfecta pentru a putea fi folosita in scop comercial - spatiu de birouri,  sediu de firma,  spatiu servicii  sau pentru inchiriat in regim hotelier.

Nu ratati ocazia de a cumpara acesta casa într-o zona deosebita, cu toate facilitatile la îndemana !


Pentru mai multe detalii : Agentia Imobiliara – Ramiro Imob – 0770 280 100 - Cornel Ion
Comision Standard

Oferim suport complet în relația cu banca,  cu acces la cele mai bune oferte de finanțare,  precum și asistență in relatia cu notariatul.
... ... ...

We present you a special house in the center of Bucharest, perfect for a home or for office space that will impress any client.

The house has four rooms divided over 2 floors, bathroom, kitchen, plus a one-room building in the yard that can be used for recreation or a meeting room.


The house is located a few minutes from the Tineretului metro station, behind Bd. Dimitrie Cantemir, one of the most beautiful areas in Bucharest.

Access can be made on foot from Bd. Cantemir, 2 minutes from the Tineretului metro entrance, or by car from Bd. Dimitrie Cantemir or from Bd. Gheorghe Sincai.


It was last renovated in 2015, inside and out, now it requires investments in the yard and repainting inside.

On the street, all the sewer pipes and electrical cables for each house have been changed.


It is located in a perfect area to be used for commercial purposes - office space, company headquarters, service space or for hotel rental.

Don't miss the opportunity to buy this house in a special area, with all the facilities at hand!

For more details: Real Estate Agency – Ramiro Imob – 0770 280 100 - Cornel Ion
Standard Commission

We offer complete support in the relationship with the bank, with access to the best financing offers, as well as assistance in the relationship with the notary.

Solicită vizionarea proprietății

Alege o zi disponibilă

15 Februarie
16 Februarie
17 Februarie
18 Februarie

Alege un interval orar

8:00 - 12:00
12:00 - 15:00
15:00 - 18:00
18:00 - 21:00

Următoarele date de contact oferite de tine vor fi accesibile proprietarului:

Locație

Despre zona "Tineretului"

păreri exprimate de 153 de utilizatori, pe o scară de la 1 la 10

Află clasamentul acestui cartier
Sănătate și Siguranță

Sănătate și Siguranță

7.8

Sănătate 7.3

Siguranță 8.1

Calitate aer 6.9

Curățenie 7.2

Zone verzi 9.3

Cultură și Educație

Cultură și Educație

8.0

Cultură 7.2

Educație 8.4

Sport 8.4

Ambianță și Lifestyle

Ambianță și Lifestyle

7.1

Nivel de trai 7.5

Magazine 8.0

Localuri 7.6

Parcări 5.2

Zgomot 7.0

Transport în comun

Transport în comun

8.7

Autobuz 8.9

Tramvai 8.3

Metrou 8.9

Contactează utilizatorul

ID: 4128133

Casa - 103mp utili - Cantemir -5 minute de statia metrou ...

5 camere | 103 m² | Bucuresti-Ilfov / Bucuresti

219.890 €