Alina Stroe

Consultant imobiliar

Vânzare

3 camere | 67 m²

Casa 3 camere situata in Valul lui Traian, Str. Calea Dobrog

Constanta / Valu Lui Traian
70.500 €

Rată estimată

1.545 Lei/lună

Avans (15%)

52.558 lei

Perioada împrumutului

30 ani

Specificații

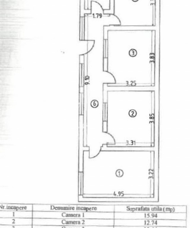
Număr camere 3

Suprafața utilă 67 m²

An finalizare construcție 1970

Suprafață teren 320 m²

Număr Băi 1

Comision cumpărător 2%

Stare proprietate Bună

Utilități Curent, Apă, Canalizare

Tip tranzacție Vânzare

Tip vânzător Companie

Casa cu suprafata utila 66.67 mp compartimentata in 3 camere, baie, bucatarie si hol.
Imobilul necesită renovare completă și oferă posibilitatea amenajării unei locuințe adaptate propriului stil.
Terenul are o suprafață totală de 320 mp, iar curtea liberă măsoară aproximativ 235 mp.

Poziționarea la strada principală reprezintă un avantaj major, asigurând vizibilitate și acces facil către toate punctele de interes din localitate. De asemenea, distanța până în municipiul Constanța este de aproximativ 10 minute, ceea ce oferă un echilibru ideal între liniștea unei zone rezidențiale retrase și proximitatea față de oraș.

O proprietate cu potențial, potrivită pentru cei care își doresc să locuiască într-un mediu linistit, fără a renunța la accesul rapid către facilitățile urbane.
Id intern: P3410

Solicită vizionarea proprietății

Alege o zi disponibilă

27 Decembrie
28 Decembrie
29 Decembrie
30 Decembrie

Alege un interval orar

8:00 - 12:00
12:00 - 15:00
15:00 - 18:00
18:00 - 21:00

Următoarele date de contact oferite de tine vor fi accesibile proprietarului:

Locație

Contactează utilizatorul

ID: 4065618

Casa 3 camere situata in Valul lui Traian, Str. Calea Dobrog

3 camere | 67 m² | Constanta / Valu Lui Traian

70.500 €