Constantin Gaita

Consultant imobiliar

Vânzare

4 camere | 160 m²

Casa pentru 2 familii - 4 camere - 2 bucatarii - Soseaua Sa

Bucuresti-Ilfov / Bucuresti
240.000 €

Rată estimată

5.167 Lei/lună

Avans (15%)

178.920 lei

Perioada împrumutului

30 ani

Specificații

Consum total de energie primară 0

Indicele de emisii echivalent CO2 0

Consum total din surse regenerabile 0

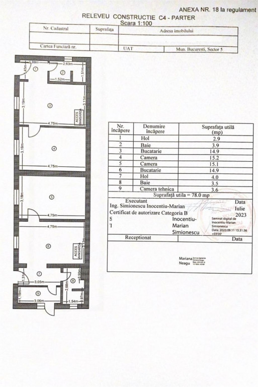
Număr camere 4

Număr Băi 4

Suprafața utilă 160 m²

Suprafață teren 306 m²

An finalizare construcție 2023

Nu include TVA Nu

Comision cumpărător 0%

Stare proprietate Bună

Tip tranzacție Vânzare

Tip vânzător Companie

BENEFICII PENTRU CLIENTII ACESTEI OFERTE:

1. Beneficii oferite de zona:

- Casa de vanzare situata pe Soseaua Salaj in apropiere de Confort Urban

2. Beneficii tehnice ale ofertei:

- Casa P M, suprafata utila 160 mp, 

- teren total 306, amprenta 100 mp, deschidere 8.5ml

- dispunere parter: 1 dormitor, 1 living, 2 bucatarii si 2 bai

- dispunere etaj: 2 dormitoare si 1 baie

- casa este construita din chirpici, izolata termic cu polistiren de 10 cm pereti exteriori, 30 cm pe acoperis vata bazaltica - Clasa Energetica A

- casa este realizata in anul 2023, destinata pentru 2 familii, dotata cu 2 centrale termice pe gaze, 2 contoare de electricitate, 2 apometre si canalizare

- casa dispune de 2 foisoare amenajate cu gratar

3. Situatia juridica:

- cadastru, intabulare, certificat energetic
- comision 0%

4. Unde se poate petrece timpul liber:

- Piata Pucheni, Parcul Tineretului, Parcul Carol

ID ACTIV IMOB: 231588 CASA te bucuri!!!

Solicită vizionarea proprietății

Alege o zi disponibilă

30 Aprilie
01 Mai
02 Mai
03 Mai

Alege un interval orar

8:00 - 12:00
12:00 - 15:00
15:00 - 18:00
18:00 - 21:00

Următoarele date de contact oferite de tine vor fi accesibile proprietarului:

Locație

Despre zona "Salaj"

păreri exprimate de 95 de utilizatori, pe o scară de la 1 la 10

Află clasamentul acestui cartier
Sănătate și Siguranță

Sănătate și Siguranță

6.5

Sănătate 6.1

Siguranță 6.8

Calitate aer 6.5

Curățenie 6.3

Zone verzi 6.6

Cultură și Educație

Cultură și Educație

6.0

Cultură 4.7

Educație 7.1

Sport 6.1

Ambianță și Lifestyle

Ambianță și Lifestyle

6.6

Nivel de trai 6.8

Magazine 7.8

Localuri 6.0

Parcări 5.7

Zgomot 7.0

Transport în comun

Transport în comun

6.2

Autobuz 7.5

Tramvai 6.4

Metrou 4.6

Contactează utilizatorul

ID: 4155735

Casa pentru 2 familii - 4 camere - 2 bucatarii - Soseaua Sa

4 camere | 160 m² | Bucuresti-Ilfov / Bucuresti

240.000 €