BLITZ Romania

Consultant imobiliar

Vânzare

4 camere | 120 m²

Casa alipita la cheie, cu garaj 40 mp, in Dezmir, zona Crise

Cluj / Dezmir
230.000 €

Rată estimată

5.039 Lei/lună

Avans (15%)

171.465 lei

Perioada împrumutului

30 ani

Specificații

Număr camere 4

Suprafața utilă 120 m²

An finalizare construcție 2024

Niveluri imobil 1

Suprafață teren 500 m²

Număr Băi 3

Stare proprietate În construcție

Mobilat și Utilat Nemobilat

Utilități Curent, Apă, Canalizare, Gaz

Tip tranzacție Vânzare

Tip vânzător Companie

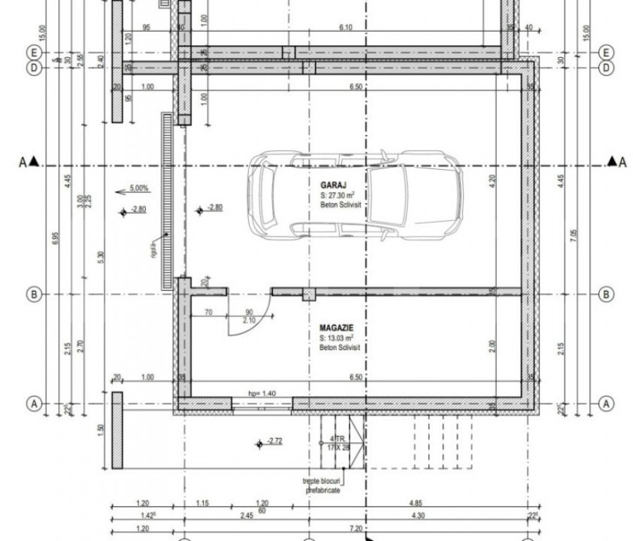
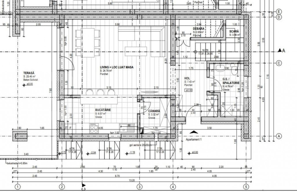
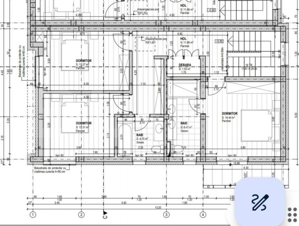
Blitz propune spre vânzare o casă alipita, situată în Dezmir, pe o strada adiacenta strazii Criseni, langa statia de bus, având o suprafață utilă de 120 mp + 40 mp demisol și un teren de 500 mp. Casa este dispusă pe 3 niveluri, demisol, parter si etaj, oferind o compartimentare practică și eficientă. La demisol avem o suprafata de 40 mp unde se afla garajul si camera tehnica. La parter => Hol, debara, baie, living cu loc de luat masa, bucatarie cu camara de alimente, Etaj => 1 dormitor matrimonial cu baie si dressing propriu, precum si alte 2 dormitoare cu o baie pe holul comun. Constructia se va preda finisata, si mobilata. Casa va dispune de toate utilitatile pe pozitie (gaz, curent electric, canalizare, apa). Pentru mai multe informatii sau stabilirea unei vizionari, contacteaza-ne.
Cod ofertă / ID BLITZ: P137482
Id intern: P137482

Solicită vizionarea proprietății

Alege o zi disponibilă

27 Decembrie
28 Decembrie
29 Decembrie
30 Decembrie

Alege un interval orar

8:00 - 12:00
12:00 - 15:00
15:00 - 18:00
18:00 - 21:00

Următoarele date de contact oferite de tine vor fi accesibile proprietarului:

Locație

Contactează utilizatorul

ID: 3859023

Casa alipita la cheie, cu garaj 40 mp, in Dezmir, zona Crise

4 camere | 120 m² | Cluj / Dezmir

230.000 €