Andrei

Proprietar

Vânzare

4 camere | 135 m²

Casă Bucov, (zona Mica Romă)

Prahova / Paulesti
265.000 €

Rată estimată

5.732 Lei/lună

Avans (15%)

197.558 lei

Perioada împrumutului

30 ani

Specificații

Număr camere 4

Suprafața utilă 135 m²

An finalizare construcție 2026

Suprafață teren 500 m²

Tip tranzacție Vânzare

Tip vânzător Persoană fizică

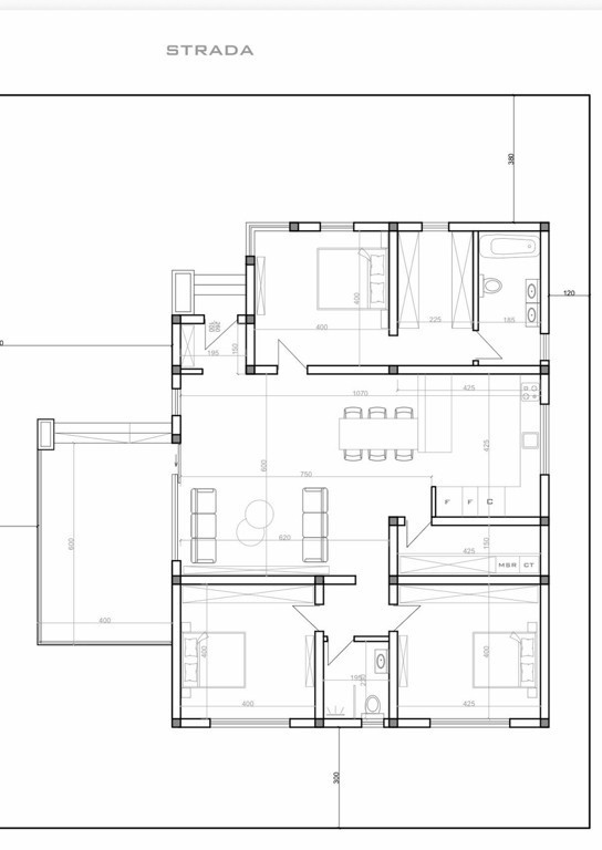
Casă de vânzare  în Bucov, (zona Mica Romă)
  Se vinde o casă modernă , nou construită ( 2025 ) cu termen de finalizare luna martie 2026 , proiectată pentru confort și funcționalitate , amplasată intr o zonă liniștită a comunei Bucov și anume Mica Roma.
   Suprafață teren: 500mp 
   Suprafață construită: 162 mp
   Suprafață utilă : 135mp + mansardă 
Compartimentare:
	-3 dormitoare luminoase dintre care cel matrimonial cu baie proprie și dressing 
   - Baie de serviciu 
	-Living spațios cu deschidere către zona de dining și terasa 
   - Bucătărie luminoasă open space 
   - Camera tehnică 
	-Terasă generoasă  de 24 mp – perfectă pentru relaxare

Dotări și finisaje premium:
	-Izolație cu polistiren de 15 cm
	-Încălzire în pardoseală pentru confort 
  sporit
   - tâmplărie Salamander Tripan 4 anotimpuri 82
	-centrala cu eficiență energetică ridicată
	-Acoperiș cu tablă Bilka
	-Pavaj
	-Poartă automatizată la intrare
       -Camere de luat vederi
   

Această casă este ideală pentru o familie care își dorește confort, spațiu și siguranță, fiind amplasată într-o zonă liniștită!! 

Pentru detalii suplimentare , vă așteptăm la vizionare pentru a vedea stadiul lucrării și pentru a avea posibilitatea de a vă alege finisajele.
Detalii la nr de telefon 0755461237

Solicită vizionarea proprietății

Alege o zi disponibilă

11 Februarie
12 Februarie
13 Februarie
14 Februarie

Alege un interval orar

8:00 - 12:00
12:00 - 15:00
15:00 - 18:00
18:00 - 21:00

Următoarele date de contact oferite de tine vor fi accesibile proprietarului:

Locație

Contactează utilizatorul

ID: 4125771

Casă Bucov, (zona Mica Romă)

4 camere | 135 m² | Prahova / Paulesti

265.000 €