Michelle Pava

Consultant imobiliar

Vânzare

3 camere | 76 m²

Casa cu 3 camere, P+E, intr un complex de case insiruite,...

Timis / Giroc
165.000 €

Rată estimată

3.615 Lei/lună

Avans (15%)

123.008 lei

Perioada împrumutului

30 ani

Specificații

Preț negociabil Da

Suprafața utilă 76 m²

Suprafață teren 200 m²

Număr camere 3

Niveluri imobil 12+

An finalizare construcție 2023

Număr Băi 2

Numărul de locuri de parcare 1

Ansamblu Rezidențial Nu

Posibilitate parcare Da

Stare proprietate Bună

Utilități Curent, Apă, Canalizare, Gaz, Climă

Tip tranzacție Vânzare

Tip vânzător Companie

Apostu Estate va propune spre vanzare o casa cu 3 camere P+E in Calea Urseni aflata intr un complex de case insiruite.

Casa are o suprafata de 76 mp utili si dispune de o curte de 200mp.
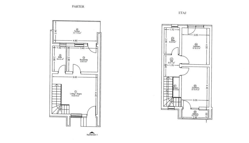
Compartimentare:
Parter:
-Hol;
-Bucatarie inchisa;
-Living;
-Baie cu dus.

Etaj:
-Dormitor 1 cu acces la un balcon generos;
-Dormitorul 2;
-Baie cu cada;
-Pod generos care poate fi folosit ca spatiu de depozitare;

Caracteristici:
-Incalzire in pardoseala;
-Casa se vinde complet mobilata si utilata;
-Dispune de loc de parcare;
-Casa este situata pe colt;
-Acoperis din lemn cu invelitoare din tigla.

Va asteptam cu drag la o vizionare!
CP2059054!

Solicită vizionarea proprietății

Alege o zi disponibilă

28 Decembrie
29 Decembrie
30 Decembrie
31 Decembrie

Alege un interval orar

8:00 - 12:00
12:00 - 15:00
15:00 - 18:00
18:00 - 21:00

Următoarele date de contact oferite de tine vor fi accesibile proprietarului:

Locație

Contactează utilizatorul

ID: 4056535

Casa cu 3 camere, P+E, intr un complex de case insiruite,...

3 camere | 76 m² | Timis / Giroc

165.000 €