Octavian Irimie

Consultant imobiliar

Închiriere

150 m²

Casa cu 5 camere, 2 bai, pretabila pentru birouri. Girocului

Timis / Timisoara
850 €

Specificații

Preț negociabil Nu

Tip imobil Casă / Vilă

Suprafața utilă 150 m²

Suprafață totală 150 m

An finalizare construcție 2010

Clasă birouri A

Număr încăperi 6

Posibilitate parcare Nu

Stadiu construcție Finalizat

Tip tranzacție Închiriere

Tip vânzător Companie

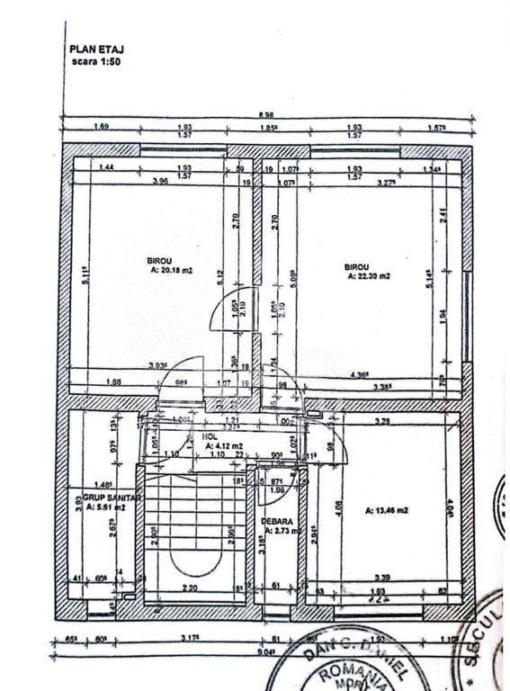
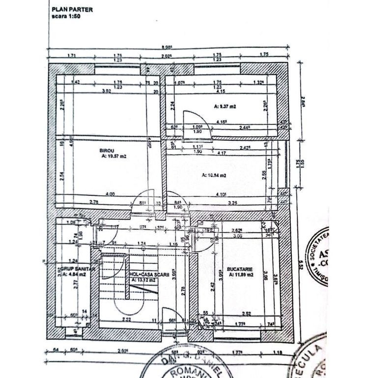
APOSTU ESTATE va propune spre inchiriat o casa cu 6 camere, 2 bai, pretabil pentru birouri. 
Suprafata utila de 150 mp - zona Spitalul Judetean/Girocului
Regimul cladirii este de P+Etaj Suprafata utila este de 175 mp, cu intrare separata din curtea comuna, ideal pentru servicii sau birouri si este compartimentat in 6 incaperi, holuri si 2 grupuri sanitare.
Confortul termic este asigurat prin centrala proprie si sistem de climatizare, contorizarea utlitatilor este separata.
Sunt 4 aparate de aer conditionat.
Sistem alarma si supraveghere video.
O camera speciala pentru servere. 
Bucataria inchisa, utilata si mobilata.
Casa dispune de 4 locuri de parcare in curte si 2 in afara.
Se pune la dispozitie si gradina din spate pentru ore de relaxare, gratar, etc. 

Vecinatati:
- Spitalul Judetean de Urgenta
- McDonald's
-Shopping City Timisoara
- Careffour, Lidl, Profi
- Mijloace de transport in comun

Pretul este usor negociabil.

Va asteptam cu drag la o vizionare!
ID intern: CP2667161

Solicită vizionarea proprietății

Alege o zi disponibilă

27 Decembrie
28 Decembrie
29 Decembrie
30 Decembrie

Alege un interval orar

8:00 - 12:00
12:00 - 15:00
15:00 - 18:00
18:00 - 21:00

Următoarele date de contact oferite de tine vor fi accesibile proprietarului:

Locație

Despre zona "Spitalul Judetean"

păreri exprimate de 27 de utilizatori, pe o scară de la 1 la 10

Află clasamentul acestui cartier
Sănătate și Siguranță

Sănătate și Siguranță

7.8

Sănătate 7.9

Siguranță 8.4

Calitate aer 7.6

Curățenie 7.5

Zone verzi 7.7

Cultură și Educație

Cultură și Educație

7.3

Cultură 6.5

Educație 7.3

Sport 8.1

Ambianță și Lifestyle

Ambianță și Lifestyle

6.9

Nivel de trai 7.6

Magazine 8.0

Localuri 6.8

Parcări 5.4

Zgomot 6.7

Transport în comun

Transport în comun

8.1

Autobuz 8.2

Tramvai 7.9

Metrou 0.0

Contactează utilizatorul

ID: 4026629

Casa cu 5 camere, 2 bai, pretabila pentru birouri. Girocului

150 m² | Timis / Timisoara

850 €


Vezi și alte anunțuri imobiliare
Apartamente închiriere Timisoara-tm - Aeroport Case-vile închiriere Timisoara-tm - Aeroport Garsoniere închiriere Timisoara-tm - Aeroport Terenuri închiriere Timisoara-tm - Aeroport Apartamente închiriere Timisoara-tm - Aradului Case-vile închiriere Timisoara-tm - Aradului Garsoniere închiriere Timisoara-tm - Aradului Terenuri închiriere Timisoara-tm - Aradului Apartamente închiriere Timisoara-tm - Baba-Dochia Case-vile închiriere Timisoara-tm - Baba-Dochia Garsoniere închiriere Timisoara-tm - Baba-Dochia Terenuri închiriere Timisoara-tm - Baba-Dochia