Ciprian Coman

Consultant imobiliar

Închiriere

3 camere | 110 m²

Casa cu gradina centru istoric

Brasov / Brasov
1.450 €

Specificații

Preț negociabil Nu

Suprafața utilă 110 m²

Suprafață teren 300 m²

Număr camere 3

Niveluri imobil 12+

An finalizare construcție 1935

Număr Băi 2

Ansamblu Rezidențial Nu

Posibilitate parcare Nu

Stare proprietate Bună

Utilități Curent, Apă, Canalizare, Gaz, Încălzire

Tip tranzacție Închiriere

Tip vânzător Companie

Ati accesat un imobil situat in centrul Brasovului.

LOCALIZARE:

Acest imobil este amplasat in centrul istoric la doar 100 m de Primaria Brasov si principalele obiective istorice si culturale din Brasov.

DATE TEHNICE:

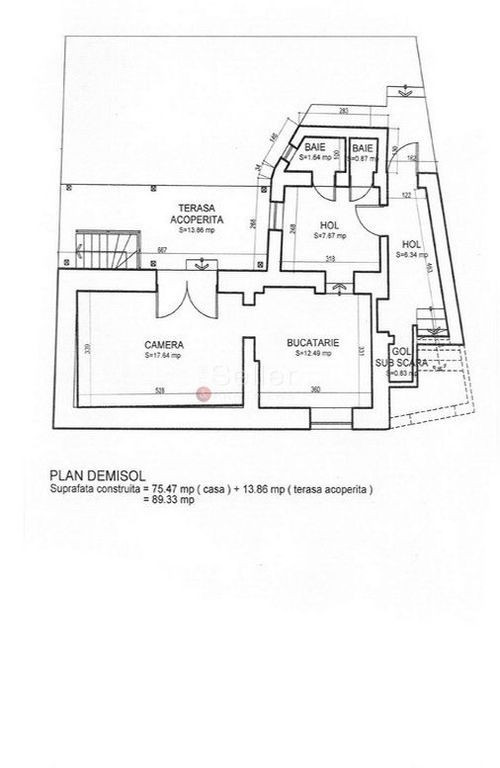
Proprietatea este dispusa pe subsol, demisol si parter, desfasurata pe 160 mp, fiind impartita pe 2 apartamente separate dupa cum urmeaza:
-  Parterul este compus din zona de living,  1 dormitor,, 1  baie , bucatarie cu acces pe un micut balcon si hol. 
-  Demisolul este format din holul de acces, baie, bucatarie si dormitorul, de aici exista acces spre o terasa acoperita si spre o curte de aproximativ 250 mp
- Subsolul care este reconditionat si poate fi amenajat ca si zona de depozitare sau o crama.


FINISAJE:

Imobilul a fost renovat complet, instalatie electrica si sanitara noua, usi de interior din lemn.


DOTARI:

Proprietatea detine:  centrala termica individuala pe fiecare nivel, tamplarie PVC, usi din lemn realizate pe comanda.

AVANTAJE:

-  pretabil pentru locuit sau activitate comerciala.
-  poate fi utilizata ca 2 spatii separate, existand acces din hol in fiecare dintre apartamente cat si in curte.
- contorizare separata
-  zona centrala, 
-  curte 
- aproape de Piata Sfatului, si principalele atractii turistice si nu numai.
 
IMPREJURIMI:

Proprietatea este situata intr-o zona de vile accesul fiind unul  facil .

OBSERVATII:

Zona rezidentiala de interes major;
Perioada minima acceptata este de 12 luni.
 Se accepta animale de companie de talie mica.

Solicită vizionarea proprietății

Alege o zi disponibilă

09 Aprilie
10 Aprilie
11 Aprilie
12 Aprilie

Alege un interval orar

8:00 - 12:00
12:00 - 15:00
15:00 - 18:00
18:00 - 21:00

Următoarele date de contact oferite de tine vor fi accesibile proprietarului:

Locație

Staţii de autobuz

Staţie autobuz 289 metri

Staţie autobuz 294 metri

Staţie autobuz 434 metri

Staţie autobuz 461 metri

Staţii de tren

Bartolomeu 2.4 kilometri

Gara Brașov 2.8 kilometri

Contactează utilizatorul

ID: 3989904

Casa cu gradina centru istoric

3 camere | 110 m² | Brasov / Brasov

1.450 €


Vezi și alte anunțuri imobiliare
Apartamente închiriere Brasov-bv - 13 Decembrie Case-vile închiriere Brasov-bv - 13 Decembrie Garsoniere închiriere Brasov-bv - 13 Decembrie Terenuri închiriere Brasov-bv - 13 Decembrie Apartamente închiriere Brasov-bv - 15 Noiembrie Case-vile închiriere Brasov-bv - 15 Noiembrie Garsoniere închiriere Brasov-bv - 15 Noiembrie Terenuri închiriere Brasov-bv - 15 Noiembrie Apartamente închiriere Brasov-bv - Astra Case-vile închiriere Brasov-bv - Astra Garsoniere închiriere Brasov-bv - Astra Terenuri închiriere Brasov-bv - Astra