Sandor Dorin

Consultant imobiliar

Vânzare

5 camere | 113 m²

Casa de vacanta nefinalizata (Gheorgheni, zona Magasbukk, km

Harghita / Gheorgheni
29.900 €

Rată estimată

644 Lei/lună

Avans (15%)

22.290 lei

Perioada împrumutului

30 ani

Specificații

Consum total de energie primară 0

Indicele de emisii echivalent CO2 0

Consum total din surse regenerabile 0

Număr camere 5

Număr Băi 1

Suprafața utilă 113 m²

Suprafață teren 1153 m²

An finalizare construcție 2000

Nu include TVA Nu

Comision cumpărător 0%

Mobilat și Utilat Nemobilat

Stare proprietate Bună

Utilități Curent

Tip tranzacție Vânzare

Tip vânzător Companie

Va propunem spre vanzare casa de vacanta in apropiere de orasul Gheorgheni, jud. Harghita, situata in zona Magasbuuml;kk-KM 5. Imobilul este situat intr-o zona linistita, totusi destul de aproape (la cca. 1 km) de DN12C, dintre Gheorgheni si Lacu Rosu.

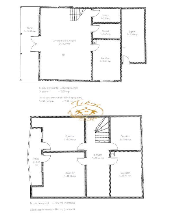
Casa are regimul de inaltime de S P M, cu amprenta la sol de 72,8 msup2; (suprafata totala construita 146 msup2;, suprafata utila 113 msup2;), terenul aferent avand suprafata de 1153 msup2;. Compartimentare: la subsol este amenajata o pivnita aproape pe intreaga suprafata a casei; la parter living, bucatarie, camara si baie; la mansarda hol si 4 dormitoare. La parter exista, de asemenea, o terasa acoperita avand suprafata de 12,9 msup2;, iar la mansarda o terasa de 4,32 msup2; cu acces din doua camere.

Casa a fost construita in 2000 din lemn pe fundatie din beton si piatra, fiind acoperita cu tigla de beton. Este nefinalizata, sunt montate ferestrele si usa de intrare (din lemn fara termopan), usile interioare sunt fabricate, dar nu sunt montate, pana la finalizare fiind necesare alte lucrari (montare podea de la parter, izolare, finisare etc.).

Casa nu are sistem de incalzire, dar dispune de un cos de fum. Proprietatea nu dispune de utilitati publice, racordarea la reteaua de electricitate se va face in viitorul apropiat (autorizatia a fost acordata), reteaua de apa si canalizare nu sunt disponibile in zona (alimentarea cu apa poate fi asigurata prin fantana forata, canalizarea prin fosa septica). Pe teren, langa casa, se gaseste o magazie din lemn.

Pret: 29.900 EUR - negociabil.

Solicită vizionarea proprietății

Alege o zi disponibilă

14 Aprilie
15 Aprilie
16 Aprilie
17 Aprilie

Alege un interval orar

8:00 - 12:00
12:00 - 15:00
15:00 - 18:00
18:00 - 21:00

Următoarele date de contact oferite de tine vor fi accesibile proprietarului:

Locație

Contactează utilizatorul

ID: 4159209

Casa de vacanta nefinalizata (Gheorgheni, zona Magasbukk, km

5 camere | 113 m² | Harghita / Gheorgheni

29.900 €