Adrian Nelega

Consultant imobiliar

Vânzare

4 camere | 109 m²

Casa Eco cu 4 camere, 2 bai, in Dumbravita

Timis / Dumbravita
265.727 €

Rată estimată

5.822 Lei/lună

Avans (15%)

198.099 lei

Perioada împrumutului

30 ani

Specificații

Preț negociabil Nu

Suprafața utilă 109 m²

Suprafață teren 316 m²

Număr camere 4

Niveluri imobil 1

An finalizare construcție 2023

Număr Băi 2

Numărul de locuri de parcare 2

Ansamblu Rezidențial Nu

Posibilitate parcare Da

Mobilat și Utilat Nemobilat

Stare proprietate Bună

Utilități Curent, Apă, Canalizare, Gaz, Încălzire, Climă

Tip tranzacție Vânzare

Tip vânzător Companie

APOSTU ESTATE va propune spre vanzare o casa eco, construita pe un designe in stil nordic, cu 4 camere, 2 bai, in Dumbravita.
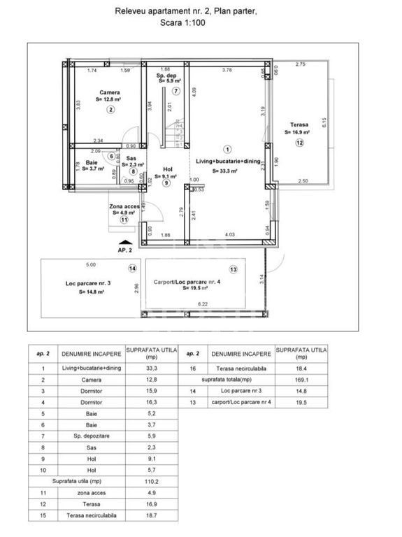
Imobilul dispune de o suprafata utila de 109mp şi 316mp de teren.

Dotari:
- Produsele alese pentru construcţia ansamblului sunt naturale, reciclabile şi nepoluante.
- 143 mp zona verde
- Constructia din zidarie portanta de caramida cu o grosime de 25cm, sustinuta de stalpi si planseu din beton armat.
- Acoperisul este realizat pe structura de lemn, acoperit cu tigla Bramac de culoare antracit. Izolatia termica de sub acoperis este realizata din spuma poliuretanica de 15 cm.
-Peretii exteriori sunt realizati din cărămidă de 25 cm si creeaza un confort termic superior, imbunatatit prin placarea cu sistem termoizolant cu polistiren de 15 cm grosime, finisat cu tencuiala decorativa Ceresit.
- Peretii interiori sunt construiti folosind caramida cu o grosime de 25 cm şi partial din gips-carton (4 placi), cu structura metalica de 10 cm şi izolatie cu vata minerala de 10 cm grosime.
-Geamuri termopan cu sticla tripan, cu o buna izolare fonica si termica.
-Usile interioare sunt realizate din lemn stratificat.
-Pompa de caldura aer-apa, cu sistem de incalzire in pardoseala, avand termostat de ambient, care va oferi posibilitatea de a regla individual temperatura in fiecare dintre camere.
-Racirea este asigurata de aparate de aer condiţionat moderne.
-Panouri fotovoltaice.
-Sistem de irigare pentru spatii verzi.
-Statie de incarcare destinata maşinilor electrice.
-Corpuri de iluminat cu senzori de mişcare.
- Videointerfon.
- 2 locuri de parcare dintre care unul cu carport.


Vecinatati:
- La gradina Ritei
- Profi
- Scoala internationala British School
- Kinderville Dumbravita
- Casa Bunicii
- WorldClass

Oferim consultanta si solutii financiare prin colaboratorii nostri.
Va invitam cu drag la o vizionare!
ID intern: CP2496174

Solicită vizionarea proprietății

Alege o zi disponibilă

07 Decembrie
08 Decembrie
09 Decembrie
10 Decembrie

Alege un interval orar

8:00 - 12:00
12:00 - 15:00
15:00 - 18:00
18:00 - 21:00

Următoarele date de contact oferite de tine vor fi accesibile proprietarului:

Locație

Contactează utilizatorul

ID: 3951812

Casa Eco cu 4 camere, 2 bai, in Dumbravita

4 camere | 109 m² | Timis / Dumbravita

265.727 €